EasyManua.ls Logo

Frick RXF Plus - Page 28

Frick RXF Plus
34 pages
Print Icon
To Next Page IconTo Next Page
To Next Page IconTo Next Page
To Previous Page IconTo Previous Page
To Previous Page IconTo Previous Page
Loading...
RXF PLUS MICROPROCESSOR CONTROL PANELS70-401 IOM
Page 28
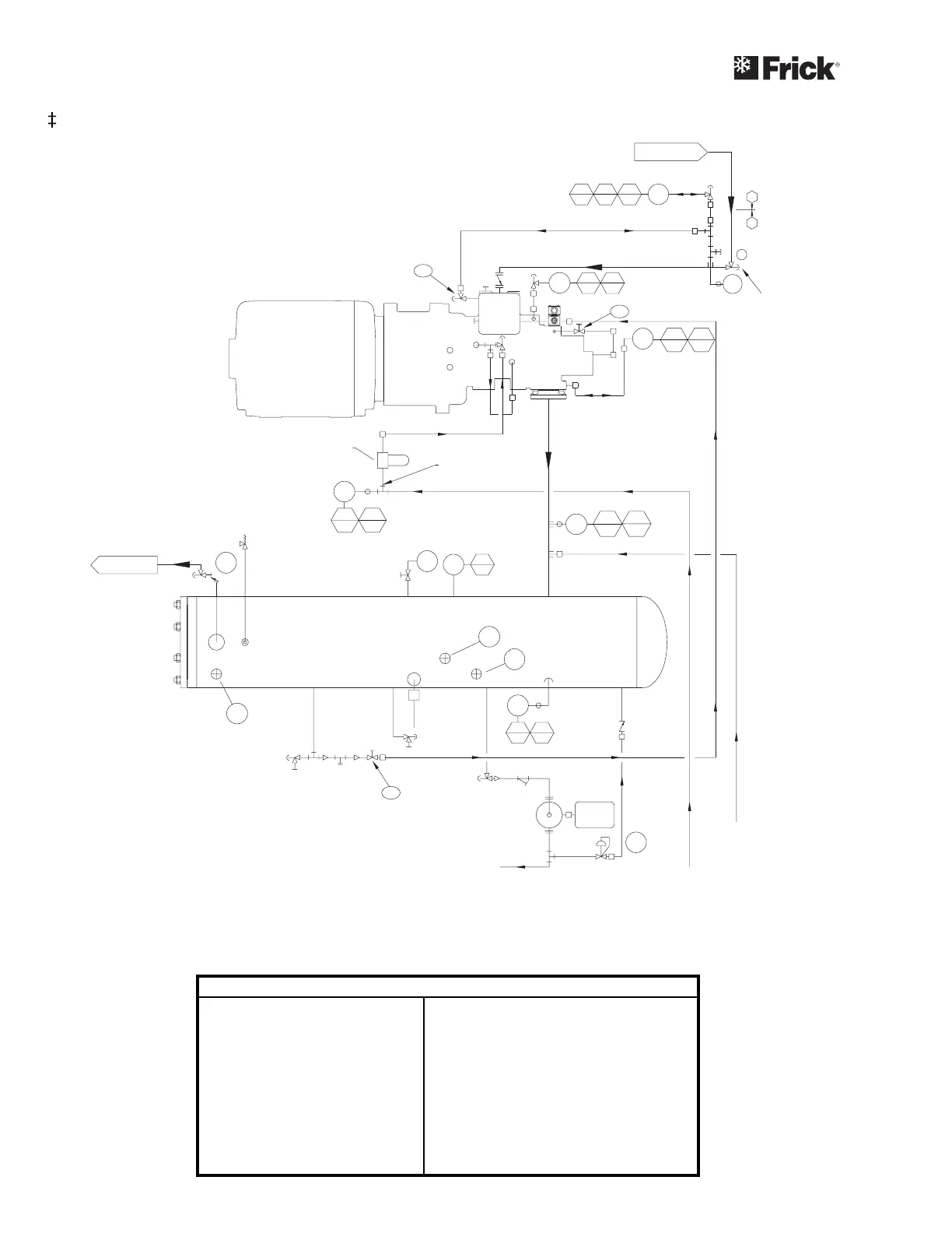
RXF PLUS MODELS 12, 15, & 19 with OIL PUMP (See OIL COOLING ADDITIONS)
1" XXH PIPE ADAPTER
TO RESTRICT OIL
FLOW AT START-UP
LSLL
CV-2
21
STR-1
PV-1
HTR-1
300 PSIG
PSV
1
LG
1
TE
2
PI
1
TE
3
LSL
1
1" SAE
OF-1
M-1 C-1
YY3
YY4
1
7
11
12
STR-2
P-1 PM-1
PCV
2
TA L
44
TA LL
LG
2
LG
3
TE
4
CV-4
2
TA H
2
TA HH
PA LL
18
10
20
1 11
PA L
PE
PE
3
PA H
3
PA HH
3
7
16
F
C
F
4 4
PA L PA L L
4
PIC
PE
4
DISCHARGE GAS
FROM UNIT
SUCTION VALVE
SHIPPED LOOSE
SUCTION GAS
TO COMPRESSOR
3
TA H
3
TA HH
1
TO OIL COOLER
FROM OIL COOLER
SAFETY VENT
FROM OIL COOLER
RXFP15PI
HV3
HV1
HV2
TE
1
MAINTENANCE
CONNECTIONS
1 MAIN OIL SUPPLY
3 LOW VI LIQUID INJECTION
4 HIGH VI LIQUID INJECTION
5 ECONOMIZER
7 SUCTION PRESSURE
8 CLOSED THREAD PRESSURE
10 DISCHARGE PRESSURE
11 LIQ. INJ. BLEED LINE
12 COALESCER BLEED LINE
16 THERMOWELL (SUCT. TEMP.)
18 MAIN OIL INJECTION
20 OIL PRESSURE
21 EVACUATION PORT
NOTES:
1. PRESSURE TRANSDUCERS INDICATE:
PE-1 OIL PRESSURE
PE-3 DISCHARGE PRESSURE
PE-4 SUCTION PRESSURE
2. TEMPRERATURE PROBES INDICATE:
TE-1 SUCTION GAS TEMPERATURE
TE-2 DISCHARGE GAS TEMPERATURE
TE-3 LUBE OIL TEMPERATURE
TE-4 SEPARATOR OIL TEMPERATURE
3. TERMINATIONS "A" THROUGH "C" REFER TO
CONNECTION POINTS FOR VARIOUS
OPTIONS.
LEGEND (Cont.)
Revised 6/96

Related product manuals