EasyManua.ls Logo

Friedrich 2007 - Troubleshooting Refrigerant Restrictions; Identifying Refrigerant Restrictions; Symptoms of Restricted Refrigerant Systems

Friedrich 2007
36 pages
Print Icon
To Next Page IconTo Next Page
To Next Page IconTo Next Page
To Previous Page IconTo Previous Page
To Previous Page IconTo Previous Page
Loading...
15
A quick check for either condition begins at the evaporator.
With a partial restriction, there may be gurgling sounds at the
metering device entrance to the evaporator. The evaporator
in a partial restriction could be partially frosted or have an ice
ball close to the entrance of the metering device. Frost may
continue on the suction line back to the compressor.
Often a partial restriction of any type can be found by feel,
as there is a temperature difference from one side of the
restriction to the other.
With a complete restriction, there will be no sound at the me-
tering device entrance. An amperage check of the compres-
sor with a partial restriction may show normal current when
compared to the unit speci cation. With a complete restriction
the current drawn may be considerably less than normal, as
the compressor is running in a deep vacuum (no load). Much
of the area of the condenser will be relatively cool since most
or all of the liquid refrigerant will be stored there.
The following conditions are based primar ily on a system in
the cooling mode.
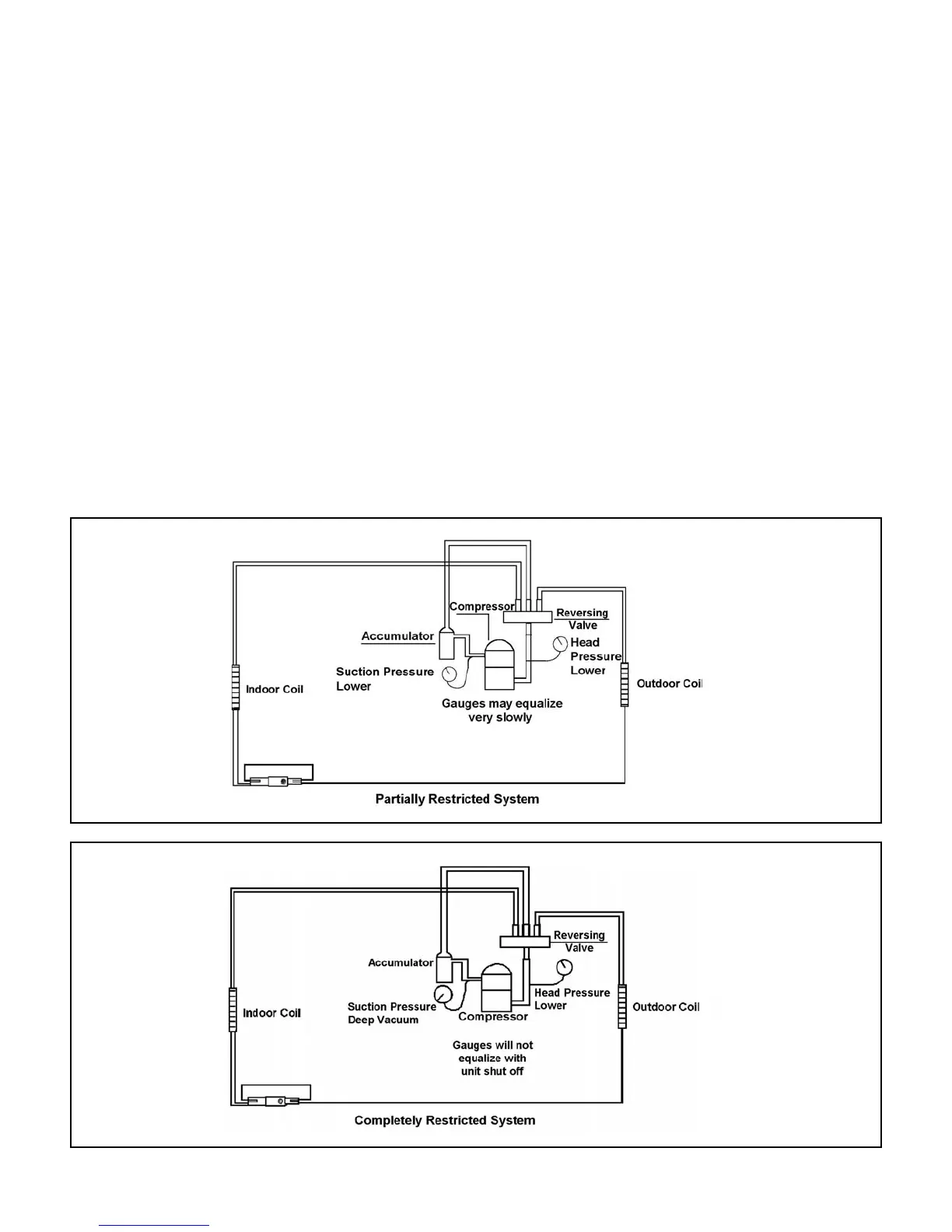
RESTRICTED REFRIGERANT SYSTEM
Troubleshooting a restricted refrigerant system can
be dif cult. The following proce dures are the more
common problems and solutions to these problems.
There are two types of refrigerant restrictions: Partial
restrictions and complete restrictions.
A partial restriction allows some of the refrigerant to
circulate through the system.
With a complete restriction there is no circulation of
refrigerant in the system.
Restricted refrigerant systems display the same
symptoms as a “low-charge condition.
When the unit is shut off, the gauges may equal ize very
slowly.
Gauges connected to a completely re stricted system
will run in a deep vacuum. When the unit is shut off, the
gauges will not equalize at all.
REFRIGERANT CHARGING cont’d

Related product manuals