EasyManua.ls Logo

Frigidaire FAC125P1A-D - TTW3 Cooling Wiring Diagram 202021890125

Frigidaire FAC125P1A-D
71 pages
Print Icon
To Next Page IconTo Next Page
To Next Page IconTo Next Page
To Previous Page IconTo Previous Page
To Previous Page IconTo Previous Page
Loading...
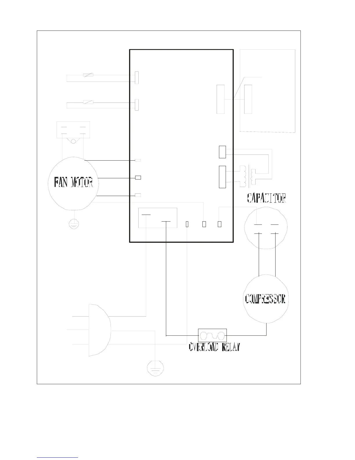
TTW3 Cooling --- 202021890125
3
P4
CN1
CN3
BLUE
BROWN
4
EVAPORATOR SENSOR
AMBIENT SENSOR
P2
P3
RED
WHITE
YELLOW
POWER
CN1
DISPLAY BOARD
TRANSFORMER
C1
BLUE
BLACK
RED
GREEN
BLACK
P7
P8
P9
BLACK
10
WHITE
CN4
CN6
CN5
CONTROL BOARD
BLUE
RY7
C
S
R
48

Table of Contents

Related product manuals