EasyManua.ls Logo

Frigidaire FAS257S2A-A - MED Electronic Without Ionizer Wiring Diagram 202021990028

Frigidaire FAS257S2A-A
71 pages
Print Icon
To Next Page IconTo Next Page
To Next Page IconTo Next Page
To Previous Page IconTo Previous Page
To Previous Page IconTo Previous Page
Loading...
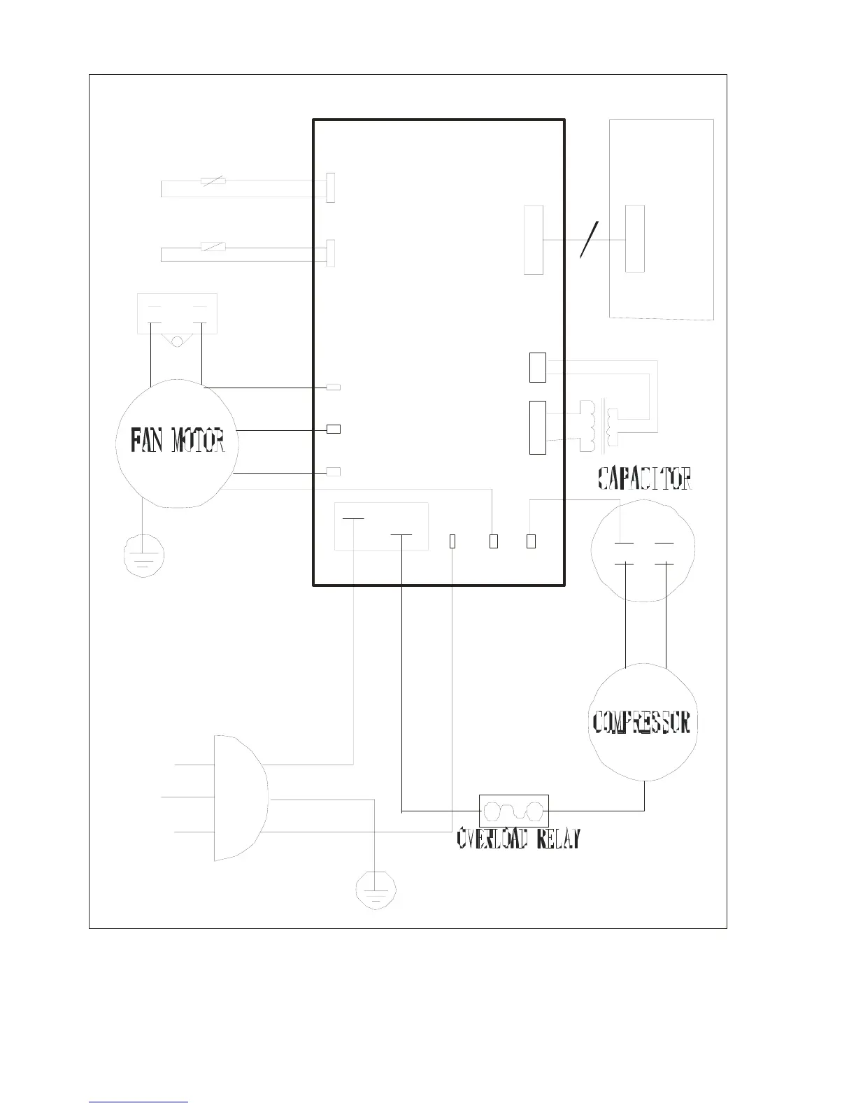
MED Electronic without Ionizer --- 202021990028
3
P4
CN1
CN3
BLUE
BROWN
4
EVAPORATOR SENSOR
AMBIENT SENSOR
P2
P3
RED
WHITE
YELLOW
POWER
CN1
DISPLAY BOARD
TRANSFORMER
C1
BLUE
BLACK
RED
GREEN
BLACK
P7
P8
P9
BLACK
BLACK
WHITE
CN4
CN6
CN5
CONTROL BOARD
BLUE
RY7
44

Table of Contents

Related product manuals