EasyManua.ls Logo

Frigidaire FFAD5033W1 - Location & How It Works; Location; How It Works

Frigidaire FFAD5033W1
11 pages
Print Icon
To Next Page IconTo Next Page
To Next Page IconTo Next Page
To Previous Page IconTo Previous Page
To Previous Page IconTo Previous Page
Loading...
Location & How It Works
3
2019 Electrolux Home Products, Inc. All rights reserved.
4. The dehumidifier must be installed on a level floor that will support it with a full bucket of
water.
5. There should be a minimum of 12 inches clearance around the dehumidifier. The unit will
produce heat while in operation and should not be operated in an enclosed small space like
a closet.
2. Place dehumidifier in a location that does not restrict the airflow of the air intake and air
outlet.
3. A dehumidifier operating in a basement will have little or no effect in drying an adjacent
enclosed storage area, such as a closet, unless there is adequate circulation of air in and out
of the area. lt may be necessary to install a second dehumidifier in the enclosed area for
satisfactory drying.
1. Dehumidifier must be operated in an enclosed area to be most effective. Close all doors,
windows, and other outside openings to the room. The effectiveness of the dehumidifier
depends on the rate at which new moisture-laden air enters the room.
Location
Selecting a Location
IMPORTANT:
How It Works
When the unit is started, the fan begins to pull moisture-laden air across the dehumidifying coils.
The coils condense or draw moisture from the air, and air flows through the air outlet louvers into
the room as dry, warm air. Moisture removed from air is collected in a bucket on the front of the
dehumidifier.
The "Compressor" circuit has an automatic 3 minute time delayed start if the unit is turned off
and on quickly. This prevents overheating of the compressor and possible circuit breaker tripping.
Make sure the tank is fitted correctly otherwise unit will not turn on.
The unit is designed to operate between 41 °F (5 °C), and 89 °F (32 °C). The unit will not work
properly if the temperature is out of this temperature range, or the performance of the unit will
fall greatly.
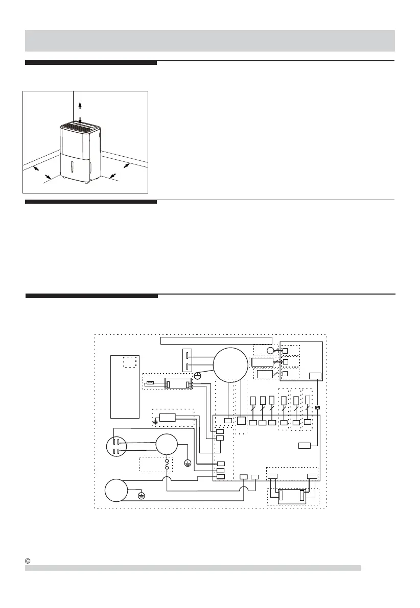
Wiring Diagram
DISPLAY
BOARD
MAIN BOARD
FAN
POWER
CN10
CN1
CN3
CN5
P8
CN4
CN2
WATER
SWITCHTEMP.
PIPE
HUMI.
SENSOR
BLACK(OR BROWN OR RED)(L)
RED
WHITE(OR BLUE OR BLACK)(N)
Y/G
Y/G(or GREEN)
BLUE
BROWN
FAN
CAPACITOR
Y/G
M
C
S
M
~
COMP.
BLUE
This symbol
indicates
the element
is optional,
the actual
shape shall
prevail
Notes:
OverLoad
Protector
P7
P4
RED
BLACK
ION
Y/G
P10
(or CN6/CN6A/CN6B/CN6C/CN10)
(or CN13)
Notes:
Display and Fan's conntors must be match the actual indicates.
CN11
TOUCH/LIGHT
PANEL
POWER
BOARD
CN1
CN2
CN14
CN15
13
12
3
1
1
2
CN7
SWITCH
P2
P1
CN10
WIFI
CN1
PUMP
DC POWER
BOARD
CN2
RED
OPTIONAL
P9
P6
BLACK(or BLUE)
BLACK(or BLUE)
WHITE
TOP
STEP
M
CN5
CN12
WIFI
16020100001654
COMP.
CAPACITOR
BLUE
BLACK
RED
CN6B
SWITCH
12"
12"
12"

Related product manuals