EasyManua.ls Logo

Fronius IG Plus 35 V-1 - Fronius IG Plus Connection Options

Fronius IG Plus 35 V-1
168 pages
Print Icon
To Next Page IconTo Next Page
To Next Page IconTo Next Page
To Previous Page IconTo Previous Page
To Previous Page IconTo Previous Page
Loading...
28
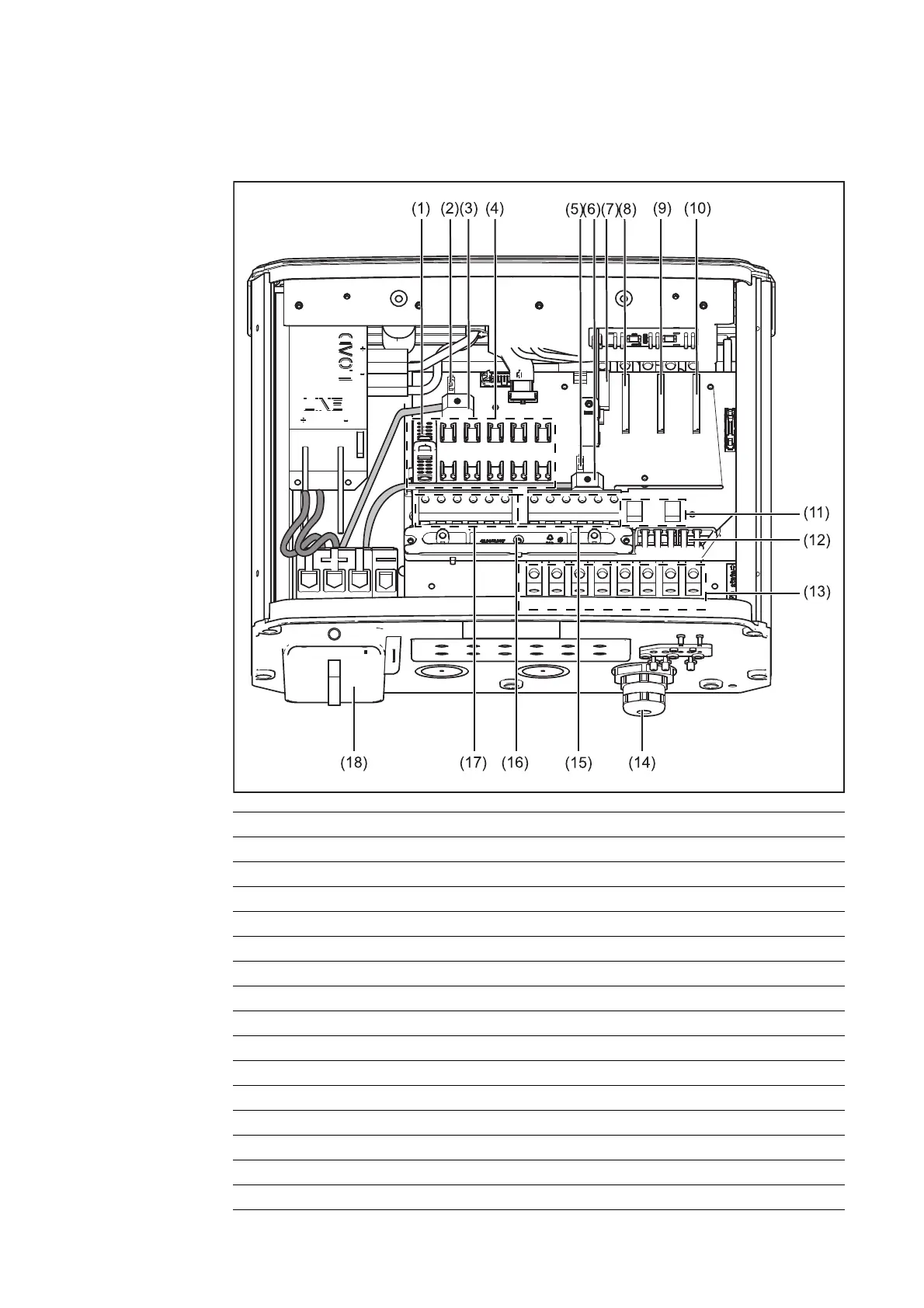
Fronius IG Plus Connection Options
Fronius IG Plus
connection op-
tions
Item Description
(1) Fuse cover (6 x for string fuses, 1 x for the solar module ground fuse)
(2) Jumper slot SMON
(3) DC+ main switch wire
(4) 6 DC+ fuse holders
(5) Jumper slot SMOFF
(6) DC- main switch wire
(7) Plug-in card for country setup (IG Brain)
(8) Open card slot for an option card
(9) Open card slot for a second option card
(10) Open card slot for a third option card
(11) Fuse holder for solar module ground
(12) Strain relief for plug-in card cable
(13) AC-side terminals
(14) Metric screw joint M32 or M40 (AC connection)
(15) 6 DC- terminals

Table of Contents

Related product manuals