EasyManua.ls Logo

Fronteq FS0507T - Page 20

Default Icon
48 pages
Print Icon
To Next Page IconTo Next Page
To Next Page IconTo Next Page
To Previous Page IconTo Previous Page
To Previous Page IconTo Previous Page
Loading...
FS0507T PN 60711000162
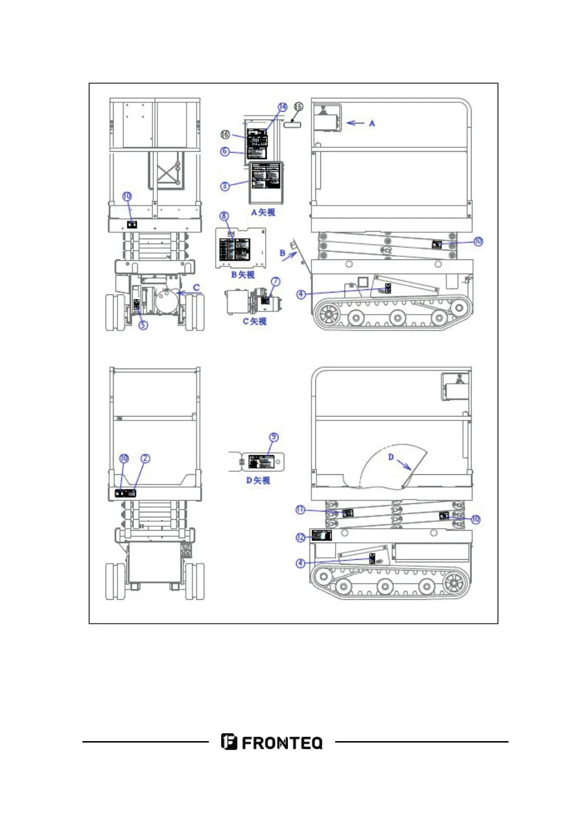
2. Names of each part