EasyManua.ls Logo

Fujitsu AGHG14LVCA - Page 386

Fujitsu AGHG14LVCA
413 pages
Print Icon
To Next Page IconTo Next Page
To Next Page IconTo Next Page
To Previous Page IconTo Previous Page
To Previous Page IconTo Previous Page
Loading...
6. SYSTEM DESIGN
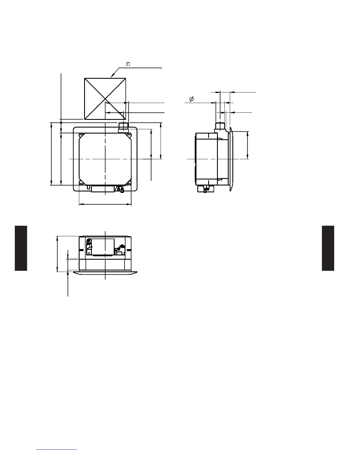
DIMENSIONS
Unit : mm
570
Min
.450
108
100
45
257
201
570
683
390
120
150 to 200
328
398
310
Ceiling opening space
Inspection hatch
(TOP VIEW)
(SIDE VIEW)
(SIDE VIEW)
When installing this kit, an inspection hatch is necessary. (For service and maintenance.)
- (06 - 138) -
SYSTEM
DESIGN
SYSTEM
DESIGN

Table of Contents

Related product manuals