EasyManua.ls Logo

Fujitsu ASHG18LFCA - Page 112

Fujitsu ASHG18LFCA
413 pages
Print Icon
To Next Page IconTo Next Page
To Next Page IconTo Next Page
To Previous Page IconTo Previous Page
To Previous Page IconTo Previous Page
Loading...
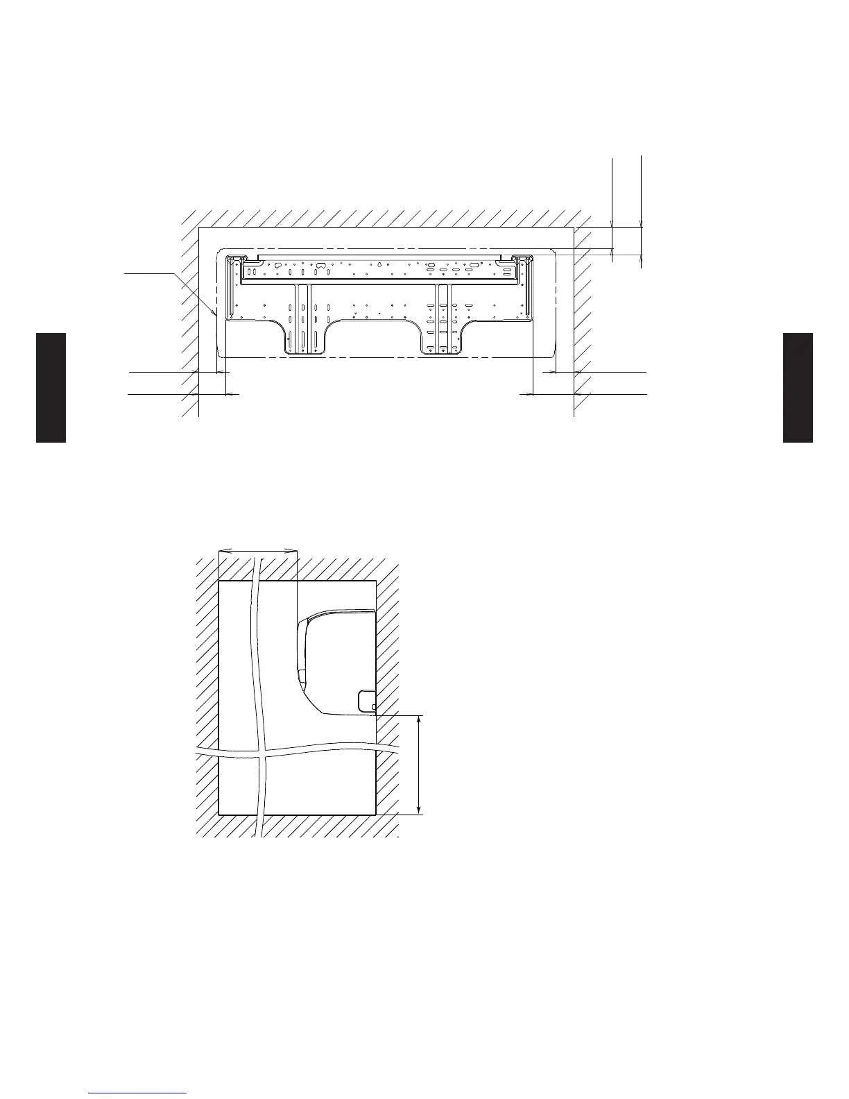
4. INDOOR UNITS
INSTALLATION PLACE
nit  
63 or more
80 or more
53 or more
52 or more
80 or more
Outline of unit
120 or more
1500 or more
1800 or more
    
INDOOR
UNITS
INDOOR
UNITS

Table of Contents

Related product manuals