EasyManua.ls Logo

Fujitsu ASU9RMLQ - MODEL: ARU12 R, ARU18 R

Fujitsu ASU9RMLQ
80 pages
Print Icon
To Next Page IconTo Next Page
To Next Page IconTo Next Page
To Previous Page IconTo Previous Page
To Previous Page IconTo Previous Page
Loading...
-
(
01 - 18
)
-
MULTI TYPE
3-4ROOMS TYPE
MULTI TYPE
3-4ROOMS TYPE
MODEL : ARU12R, ARU18R
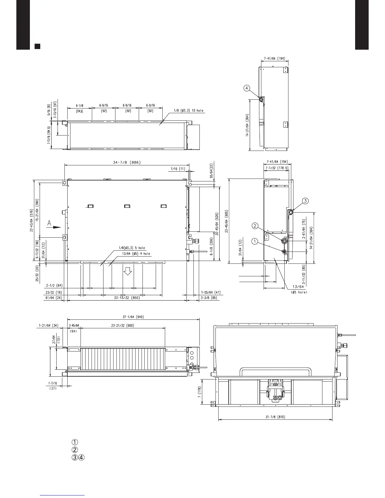
Refrigerant pipe flare connection (Liquid)
Refrigerant pipe flare connection (Gas)
Drain pipe connection
[Unit : Inch (mm)]
Bottom view
Front view
Side view (R)
Top view
Rear view View A
Bolt Pitch
Bolt Pitch
Outlet
6-9/64 (156)
5-33/64 (140) 5-33/64 (140) 5-33/64 (140)5-33/64 (140)
6-9/64 (156) 6-9/64 (156)
25/64 (10)
2-63/64 (76)
5-29/32 (150)
8-35/64 (217)
5-29/32 (150)

Other manuals for Fujitsu ASU9RMLQ

Related product manuals