EasyManua.ls Logo

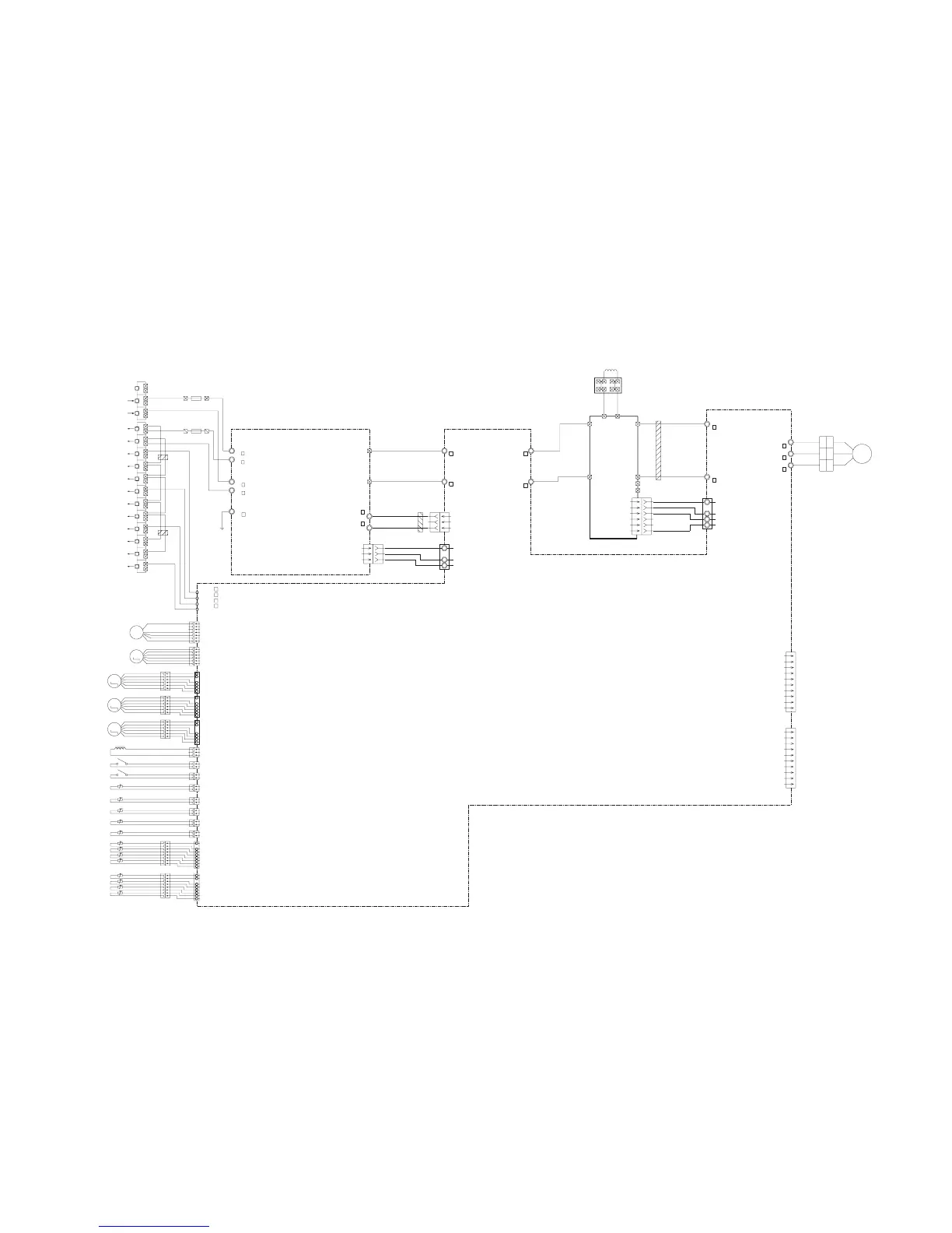
Fujitsu ASY18LBAJ - Outdoor PCB Circuit Diagram

Fujitsu ASY18LBAJ
29 pages
Print Icon
To Next Page IconTo Next Page
To Next Page IconTo Next Page
To Previous Page IconTo Previous Page
To Previous Page IconTo Previous Page
Loading...
CONTROLLER PCB ASSEMBLY
K04AW-0404HUE-C1
POWER SUPPLY PCB
K04BA-0402HUE-P0
W4
W6
W5
W7
W3 B
B
B
B
B
TM101
TM102
W10
B
B
B
B
W16
W17
L1 L2
P+
N1
N2
I O
-
B
W13
B
W12
B
B
B
W305
W304
W303
COMPRESSOR
C. M.
2
3
1 1
3
2
CN407
06 PH / 172520 1007 L480
WHITE
ACTPM CONTROL
1
3
4
5
UL1007 AWG24 BROWN
UL1007 AWG24 ORANGE
UL1007 AWG24 RED
UL1007 AWG24
YELLOW
UL1015 AWG14 x 3
RED
WHITE
BLACK
BLACK
WHITE
RED
UL1015 AWG14 YELLOW
UL1015 AWG14 BLUE
UL1015
AWG14
BROWN
UL1015
AWG14
WHITE
EMI FILTER
TFC25-15-12
2 TURN
1
5
4
3
2
6
UL1015
AWG14
BLACK
UL1015
AWG14
RED
1
3
1
3
4
UL1007 AWG24 RED
UL1007 AWG24 BROWN
UL1007 AWG24 BLACK1
2
3
EMI FILTER
TFC25-15-12
2 TURN
UL1015 AWG14 WHITE
UL1015 AWG20 WHITE
UL1015 AWG20 BLACK
B
B
W9
W8
03 VH / S I N
1015 L250
CN1
B3B-XASK-1-A
WHITE
CT OUT
UL1015 AWG14 BLACK
CN34
B2P3-VH-B-Y
YELLOW
AC I N
CN1
03 XA / 172520 1007 L180
WHITE
CT
CHOKE COIL
L=0.3mH 30A
ACTPM
I C404
SACT32010A
YELLOW
BROWN
WHITE
BLACK
RED
RED
BROWN
BLUE
ORANGE
YELLOW
WHITE
1
2
3
4
5
6
7
1
2
3
4
5
6
1
2
4
5
6
7
1
3
4
5
6
7
1
2
5
6
7
8
1
3
1
2
1
2
1
2
1
2
1
2
1
2
1
2
1
3
4
5
6
7
8
9
1
2
4
5
6
7
8
9
BLACK
WHITE
WHITE
WHITE
WHITE
WHITE
BLACK
GREEN
GREEN
GREEN
GREEN
GREEN
BLACK
BLUE
BLUE
BLUE
BLUE
BLUE
BLACK
BLACK
RED
RED
RED
RED
BROWN
BROWN
BLACK
BLACK
BROWN
BROWN
BLUE
BLUE
BLACK
BLACK
BLACK
BLACK
WHITE
WHITE
WHITE
WHITE
WHITE
WHITE
WHITE
RED
RED
RED
RED
RED
RED
RED
ORANGE
YELLOW
WHITE
BLUE
BROWN
RED
RED
BROWN
BLUE
ORANGE
YELLOW
WHITE
RED
BROWN
BLUE
ORANGE
YELLOW
WHITE
1
2
3
4
5
6
7
8
9
10
1
2
3
4
5
6
7
8
9
10
5V
GND
TAUX
TTXD
TRXD
TMODE
TAUX3
TCK
/ TRES
/ T I CS
5V
GND
TAUX
TTXD
TRXD
TMODE
TAUX3
TCK
/ TRES
/ T I CS
CN602
B10B-PASK-1
WHITE
CN601
B10B-PASK-1
WHITE
SUB-FLASH
MAIN-FLASH
M
M
M
M
F. M.
DC FAN MOTOR
EXPANSION VALVE-A
EXPANSION VALVE-B
EXPANSION VALVE-C
EXPANSION VALVE-D
4-WAY VALVE
PRESURE SWITCH-1
PRESURE SWITCH-2
COMP. TEMPERATURE
HEAT SINK TEMPERATURE
DISCHARGE TEMPERATURE
PIPE TEMPERATURE
OUTDOOR TEMPERATURE
2-WAY VALVE-A TEMP.
3-WAY VALVE-B TEMP.
2-WAY VALVE-B TEMP.
3-WAY VALVE-A TEMP.
RED
YELLOW
BLUE
BLACK
2-WAY VALVE-C TEMP.
3-WAY VALVE-D TEMP.
2-WAY VALVE-D TEMP.
3-WAY VALVE-C TEMP.
GRAY
BROWN
ORANGE
GREEN
CN40
08 XA / 172520 1007
RED
CN39
08 XA / 172520 1007
WHITE
CN23
B2B-XAEK-1-A BLUE
CN22
B2B-XH-AM RED
CN21
B2B-XH-AM YELLOW
CN25
B2B-XAKK-1-A BLACK
CN26
B2B-XAMK-1-A GREEN
CN36
B2B-XASK-1-A WHITE
CN37
B2B-XARK-1-A RED
CN30
179844-1 WHITE
CN52
06 XA / 172520 1007
BLUE
CN51
06 XA / 172520 1007
GREEN
CN50
06 XA / 172520 1007
WHITE
CN27
B6B-XARK-1-A
RED
CN800
B7B-XASK-1-A
WHITE
W200
W203
W202
W201
B
B
B
B
SERIAL-A
SERIAL-D
SERIAL-C
SERIAL-B
3
N
L
3
N
L
3
N
L
3
N
L
N
L
INDOOR UNIT-A
INDOOR UNIT-B
INDOOR UNIT-C
INDOOR UNIT-D
UL1015
AWG20
BROWN
UL1015
AWG20
PINK
UL1015
AWG20
WHITE
EMI FILTER
ZCAT1518-0730
1 TURN
E
UL1015
AWG16
GREEN
UL1015
AWG20
WHITE
UL1015
AWG20
RED
EMI FILTER
ZCAT1518
-0730
1 TURN
UL1015
AWG20
WHITE
UL1015
AWG20
YELLOW
UL1015
AWG20
BLACK
UL1015
AWG20
BLACK
UL1015
AWG20
WHITE
UL1015
AWG20
BLACK
UL1015
AWG20
BLACK
UL1015
AWG20
BLACK
UL1015
AWG14
BLACK
UL1015
AWG14
WHITE
UL1015
AWG14
BLACK
F201
TLC 25A-250V, B
<250V 25A>
F202
FSL 250 10 (EM)
<250V 10A>
AC230V
50Hz
INVERTER ASSEMBLY
EZ-004HHUE
92005.05.02
O U T D O O R P C B C I R C U I T D I A G R A M

Related product manuals