EasyManua.ls Logo

Fujitsu ASYG12LJCA - Page 37

Fujitsu ASYG12LJCA
119 pages
Print Icon
To Next Page IconTo Next Page
To Next Page IconTo Next Page
To Previous Page IconTo Previous Page
To Previous Page IconTo Previous Page
Loading...
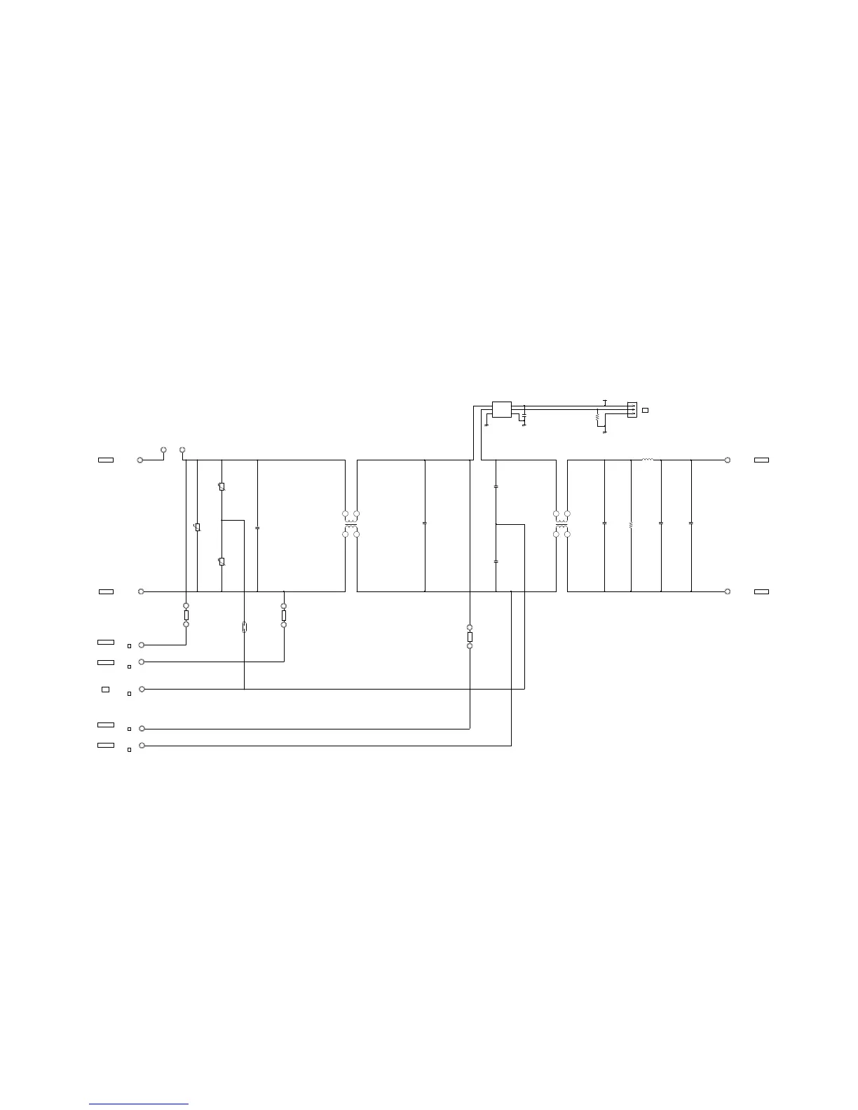
L502
FM-B304V212MBPF
C507
0.033
<ECQU>
C508
0.033
<ECQU>
1
3
2
4
C511
3.3
<ECQU>
R501
1.0M
<RN-1/2W>
C512
3.3
<ECQU>
C513
2.2
<ECQU>
TM508
F4100D
WHITE
N - OUT
TM507
F4100D
BLACK
L - OUT
F502
3.15A - 250V
C506
3.3
<ECQU>
L501
FM-B304V212MBPF
1 2
3 4
C501
3.3
<ECQU>
VA501
470V
<TNR>
VA502
470V
<TNR>
VA503
470V
<TNR>
F503
10A - 250V
<HTR>
SA501
RA-302M
F501
10A - 250V
L503
N300300K1D7C-01N
R502
33k
<1/4W>
5V
C515
0.1
<F>
1
2
3
CN501
2-1871843-3
CS
I C501
L18P050S05RK
5
6
1
3
4
2
+I N
-I N
GND
+VCC
OUT
GND
PROTECTOR
P501
45A - 500V
TM505
0042902B
TM506
0042902B
L - I N
TM501
F4100D
BLACK
N - I N
TM502
F4100D
WHITE
L - OUT 1
W504
B
BLACK
N - OUT 1
W505
B
WHITE
E
W503
B
GREEN
L - OUT 2
W506
B
BLACK
N - OUT 2
W507
B
WHITE
POWER SOURCE
AC230V
50Hz
AC POWER OUT for BRANCH BOX
AC POWER OUT for CONTROLLER PCB ASSY
AC POWER OUT for INVERTER PCB ASSY
FILTER PCB ASSEMBLY
K09CR-1000HUE-FL0
2010.09.16
OUTDOOR UNIT
AOYG45LAT8
TP00351-31 x 2
FH503
FH504
H0060 x 2
FH501
FH501
H0060 x 2
FH505
FH506
34

Other manuals for Fujitsu ASYG12LJCA

Related product manuals