EasyManua.ls Logo

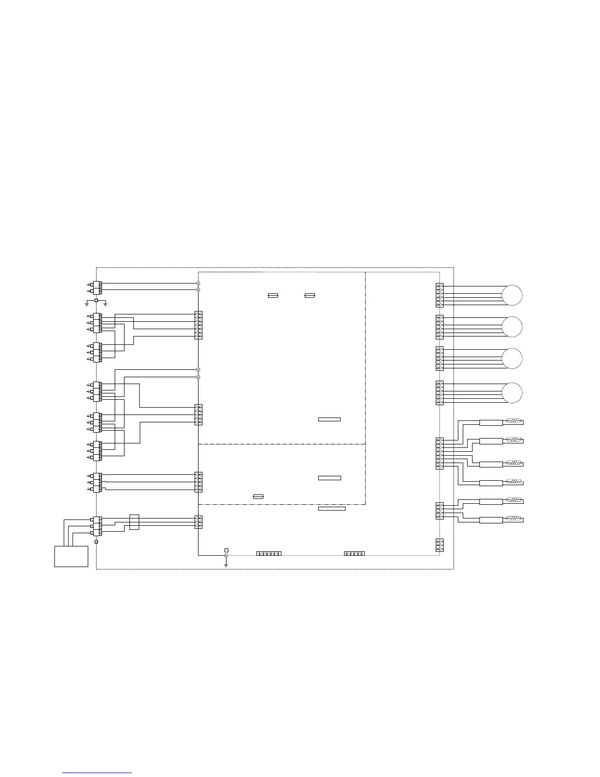
Fujitsu ASYG12LJCA - Branch Box Pcb Circuit Diagram

Fujitsu ASYG12LJCA
119 pages
Print Icon
To Next Page IconTo Next Page
To Next Page IconTo Next Page
To Previous Page IconTo Previous Page
To Previous Page IconTo Previous Page
Loading...
AWG26 RED
AWG26 BLUE
AWG26 ORANGE
AWG26 YELLOW
AWG26 WHITE
AWG26 RED
AWG26 BLUE
AWG26 ORANGE
AWG26 YELLOW
AWG26 WHITE
AWG26 RED
AWG26 BLUE
AWG26 ORANGE
AWG26 YELLOW
AWG26 WHITE
AWG26 RED
AWG26 BLUE
AWG26 ORANGE
AWG26 YELLOW
AWG26 WHITE
BLACK
BLACK
BLACK
BLACK
BLACK
BLACK
BLACK
BLACK
BLACK
BLACK
BLACK
BLACK
F101
AC250V 10A
F102
AC250V 3.15A
UL1015 AWG20 BLACK
UL1015 AWG20 WHITE
UL1015 AWG20 BLACK
UL1015 AWG20 WHITE
UL1015 AWG20 BROWN
UL1015 AWG20 BLUE
UL1015 AWG20 BLACK
UL1015 AWG20 WHITE
UL1015 AWG20 RED
UL1015 AWG20 YELLOW
UL1015 AWG20 PINK
UL1015 AWG20 BLACK
UL1015 AWG20 WHITE
UL1015 AWG20 VIOLET
UL1430 AWG22 BLACK
UL1430 AWG22 RED
UL1430 AWG22 WHITE
UL1015
AWG20
WHITE
UL1015
AWG20
WHITE
UL1015
AWG20
BLACK
UL1015
AWG20
BLACK
UL1015
AWG20
WHITE
UL1015
AWG16
GREEN
3
1
1
5
5
1
7
1
1
6
1
6
1
6
1
6
1
8
4
1
3
1
1
5
1 6
W101 L-I N
W102 N-I N
W103 L-OUT
W104 N-OUT
TEST
FLASH
F103
AC250V 3.15A
W201
E
CN303
B5B-PH-K-S
WHITE
CN301
B06B-PASK-1
WHITE
CN102
B4P7-VH-B
WHITE
CN104
B3P5-VH-B
WHITE
CN105
B3P5-VH-B-C
BLACK
CN304
B03B-XAKK-1-A
BLACK
CN305
B06B-XARK-1-A
RED
CN306
B06B-XASK-1-A
WHITE
CN307
B06B-XAMK-1-A
GREEN
CN308
B06B-XAEK-1-A
BLUE
CN309
B08B-PASK-1
WHITE
CN310
B04B-PASK-1
WHITE
CN311
B03B-PASK-1
WHITE
WIRED REMOTE CONTROL UNIT
( OPTION )
1
2
3
1
2
3
1
2
3
1
2
3
1
2
3
1
2
3
1
2
3
L1
L2
ELECTRIC EXPANSION VALVE 1
ELECTRIC EXPANSION VALVE 2
ELECTRIC EXPANSION VALVE 3
ELECTRIC EXPANSION VALVE 4
THERMISTOR ( GAS TEMP. ) - 1
THERMISTOR ( GAS TEMP. ) - 2
THERMISTOR ( LIQUID TEMP. ) - 1
THERMISTOR ( LIQUID TEMP. ) - 2
THERMISTOR ( GAS TEMP. ) - 3
THERMISTOR ( LIQUID TEMP. ) - 3
TH1 WHITE
TH2 WHITE
TH3 RED
TH4 RED
TH1 GREEN
TH2 GREEN
BRANCH PIPE - 2
BRANCH PIPE - 3
POWER SOURCE FOR INDOOR UNIT - 1
POWER SOURCE FOR INDOOR UNIT - 2
POWER SOURCE FOR INDOOR UNIT - 3
OUTDOOR UNIT
POWER SOURCE
AC230V
50Hz
EEV 1
EEV 2
EEV 3
EEV 4
EMI FILTER
ZCAT1518-0730
2 TURNS
PRIMARY 1
PRIMARY 2
SECONDARY
CONTROLLER PCB ASSEMBLY
K10CQ-1000HME-C1
CONTROL UNIT
EZ-0101HME
UTP-PY03A
2010.09.14
BRANCH BOX PCB
CIRCUIT DIAGRAM
36

Other manuals for Fujitsu ASYG12LJCA

Related product manuals