EasyManua.ls Logo

Fujitsu ASYG24KLCA - 2-1. Models: ASYG18 KLCA and ASYG24 KLCA

Fujitsu ASYG24KLCA
47 pages
Print Icon
To Next Page IconTo Next Page
To Next Page IconTo Next Page
To Previous Page IconTo Previous Page
To Previous Page IconTo Previous Page
Loading...
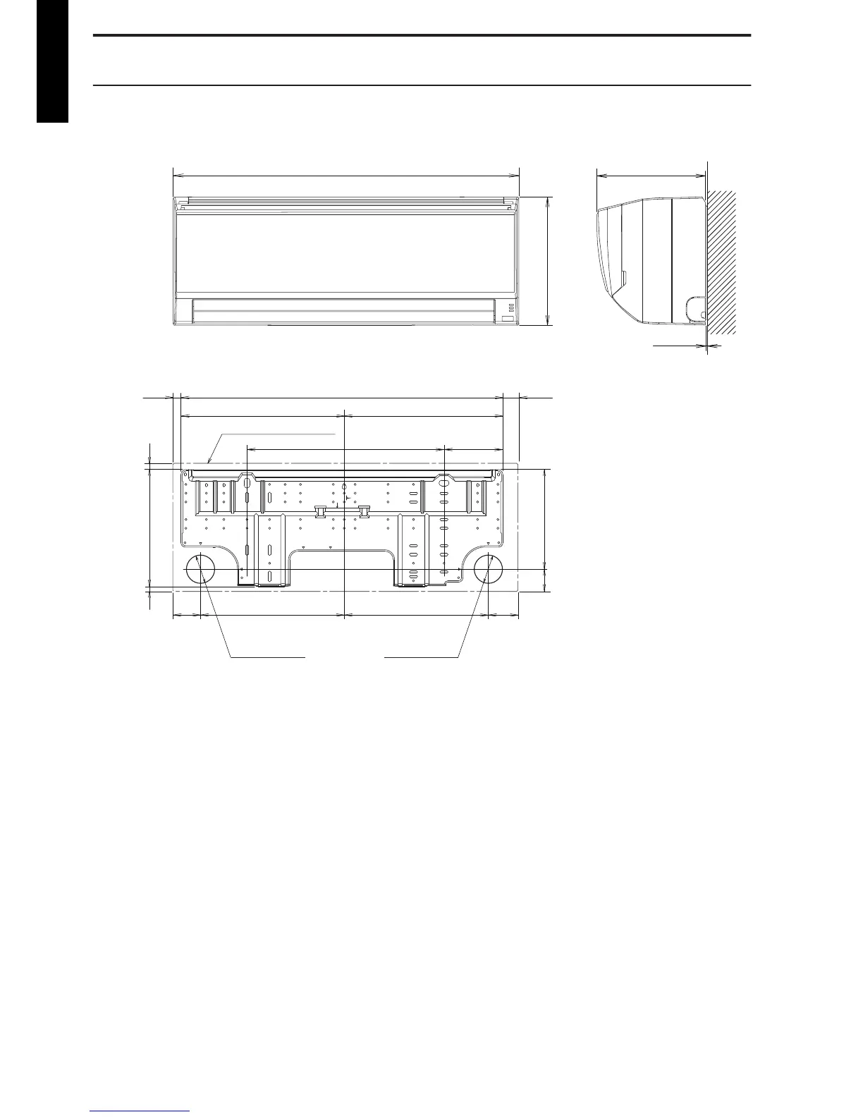
2. Dimensions
2-1. Models: ASYG18KLCA and ASYG24KLCA
Unit: mm
790
736
249
2.0
293
268718
22847
363373
18
450 135
37
Outline of indoor unit
for pipe inlet Ø65
for pipe inlet Ø65
330327
70
63
DESIGN & TECHNICAL MANUAL
- 4 -
WALL MOUNTED
ASYG18, 24KLCA

Related product manuals