EasyManua.ls Logo

Fujitsu D3003 - Page 5

Fujitsu D3003
Print Icon
To Next Page IconTo Next Page
To Next Page IconTo Next Page
To Previous Page IconTo Previous Page
To Previous Page IconTo Previous Page
Loading...
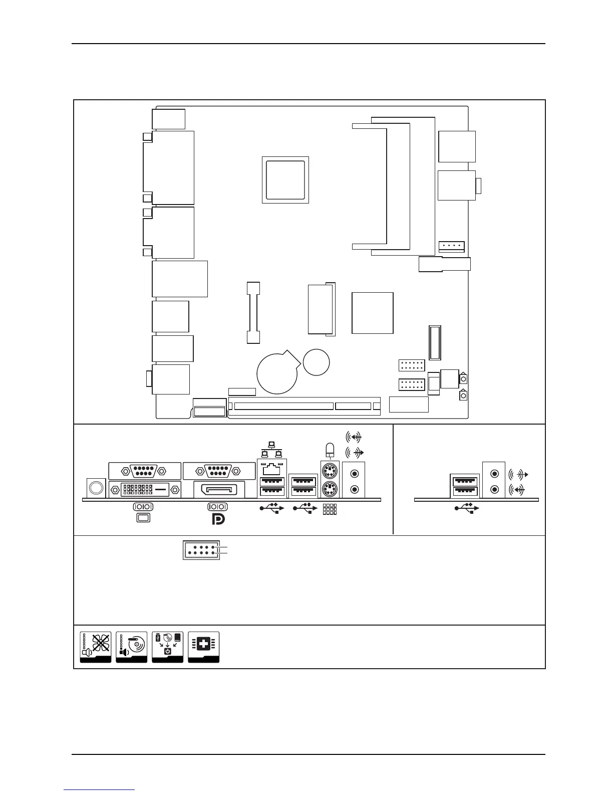
Internal connectors and slots
External connectors rear
A26361-D3003-Z330-1-8N19
External connectors front
D3003-A/B
RECO VERY BIOS
MULTIBOOT
SILENT DRIVES
FA N LES S
USB - dual channel
1
2
1 = VCC C
2 = VCC D
3 = Data negativ
e
C
4 = Data negative D
5=
6 = Data positive D
Data positive C
7 = GND
8 = GND
9= Key
10 = Not connected
Processor
mSATA
FCH Hudon E1
(A55E)
Intrusion
Drive
Power
Buzzer
Battery
Speaker
PoE
PCI
PCIe X1
USB
USB
RCV
SATA
Power
Button
LED HDD
LED Power
Memory Socket
DC Plug
COM 1
DVI-I
COM 2
Display Port
LAN
2x USB
2x USB
Mouse
Keyboard
Line IN
Line OUT
2x USB
Head OUT
Mic IN
Fujitsu Technology Solutions

Related product manuals