EasyManua.ls Logo

Fujitsu FGLair - UTY-CDPXZD Wiring

Fujitsu FGLair
58 pages
Print Icon
To Next Page IconTo Next Page
To Next Page IconTo Next Page
To Previous Page IconTo Previous Page
To Previous Page IconTo Previous Page
Loading...
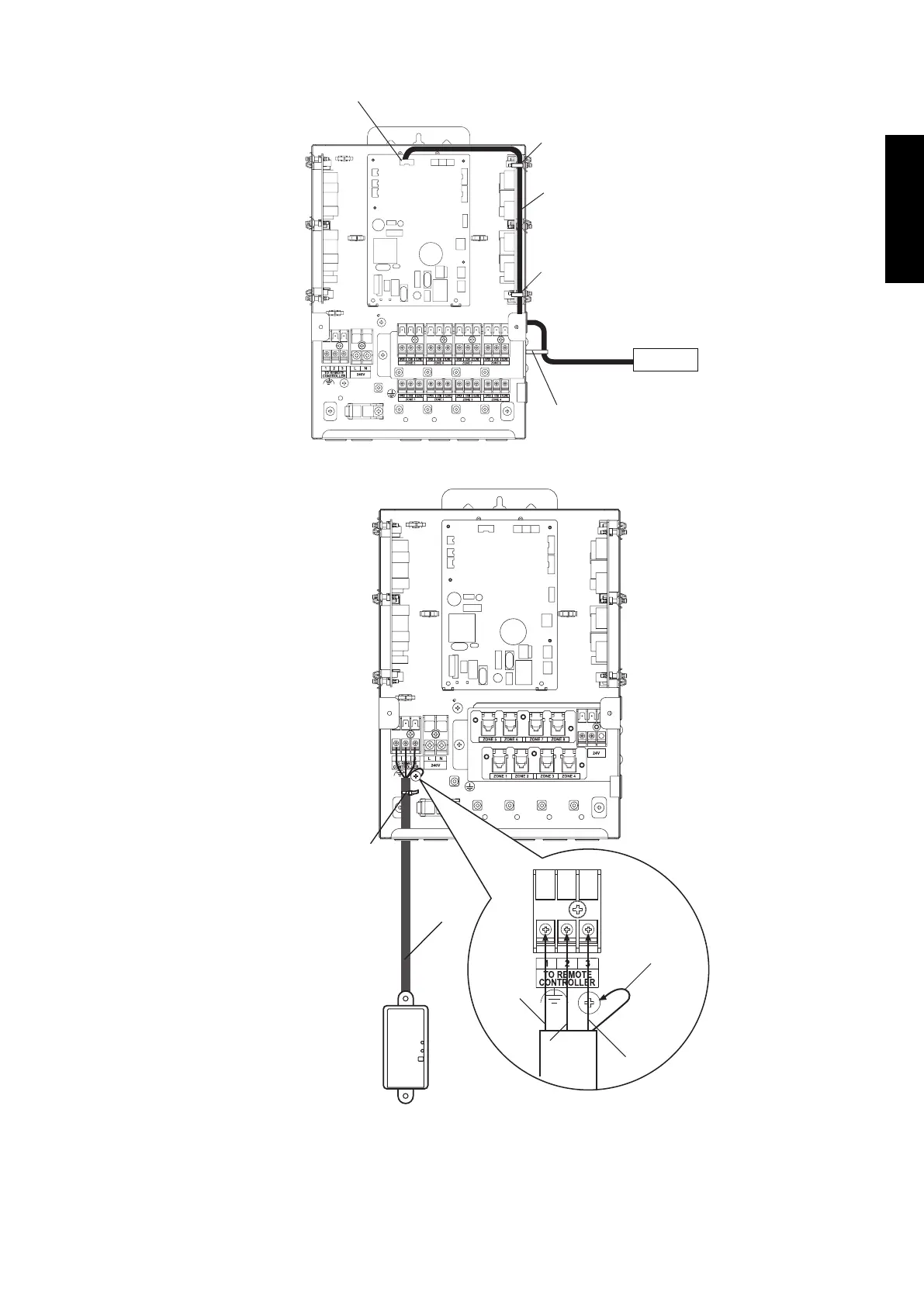
3) UTY-CDPXZD
1. Connecting with indoor unit
(accessory)
Cable tie (small)
(accessory)
Cable tie (small)
(accessory)
Cable tie (small)
Indoor unit
Zone control interface
connecting cable
CN6
2. Connecting with wireless LAN adapter
Cable tie
(accessory)
Wireless
cable
LAN adapter
(small)
Red
White
Black
Functional
earth (ground)
wire
- 49 -
ZONE CTRL SYSTEM
with WLAN ADAPTER

Related product manuals