EasyManua.ls Logo

Fujitsu PRIMERGY RX2530 M4

Fujitsu PRIMERGY RX2530 M4
88 pages
To Next Page IconTo Next Page
To Next Page IconTo Next Page
To Previous Page IconTo Previous Page
To Previous Page IconTo Previous Page
Loading...
66 Operating Manual
RX2530 M4
Starting up and operation
6.1.2 Server rear
6.1.2.1 Indicators on the I/O panel
ID, CSS and Global Error indicators
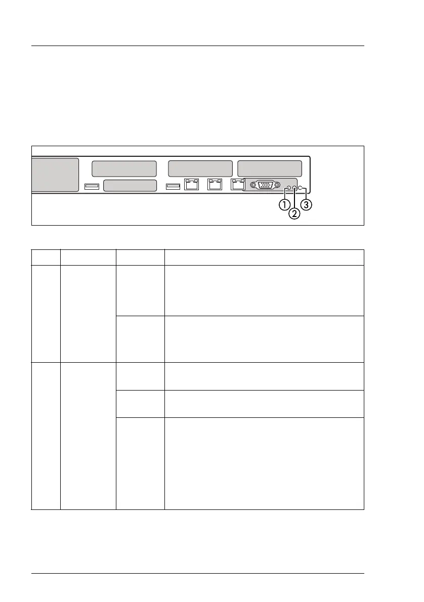
Figure 15: ID, CSS and Global Error indicators
Pos. Indicator Status Description
1
ID
indicator,
see also
"iRMC-
related
status
signals" on
page 67
blue on
The server has been highlighted using
ServerView Operations Manager, iRMC web
interface or the ID button on the front panel for
easy identification.
blue
flashing
The server has been highlighted for easy
identification using the iRMC (AVR) with
disabled local VGA output.
2
Global
Error
indicator,
see also
"iRMC-
related
status
signals" on
page 67
off
No critical event detected (non CSS
component).
orange
on
Prefailure event detected (non CSS
component).
orange
flashing
Non CSS component failure detected.
Possible causes:
System is out of the specified range
Defective sensor
CPU error
Error detected by server management
software

Table of Contents

Other manuals for Fujitsu PRIMERGY RX2530 M4

Related product manuals