EasyManua.ls Logo

FUNAI DPVR-2605 - Page 28

FUNAI DPVR-2605
99 pages
Print Icon
To Next Page IconTo Next Page
To Next Page IconTo Next Page
To Previous Page IconTo Previous Page
To Previous Page IconTo Previous Page
Loading...
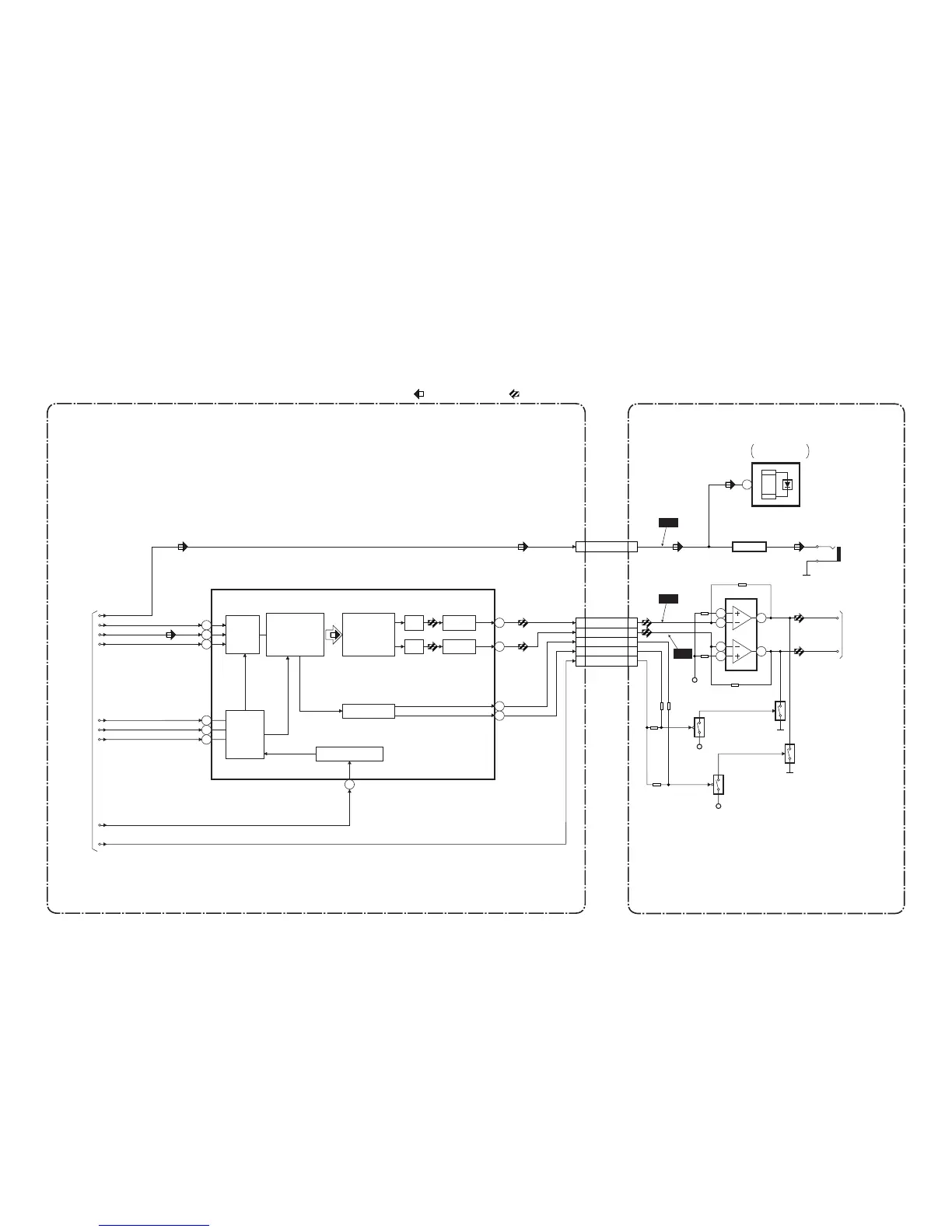
DVD Audio Block Diagram
H9300BLAD
1-9-19 1-9-20
IC801 (AUDIO DAC)
7
8
12
11
DIGITAL
AUDIO OUT
JK1202
BUFFER
Q1351
IC1201
Q1203
Q1201
Q1202
VREF
+3.3V
(AMP)
CN701
CN1601
CN701
CN1601
16 16
DVD-AUDIO-L
18 18
DVD-AUDIO-R
15 15
DVD-A-L-MUTE
17 17
DVD-A-R-MUTE
19 19
DVD-A-MUTE
DVD-A(L)
DVD-A(R)
1
2
3
13
14
15
16
FROM
DVD VIDEO
BLOCK
DIAGRAM
SERIAL
PORT
SERIAL
CONTROL
4X/8X
OVERSAMPLING
DIGITAL FILTER
/FUNCTION
CONTROLLER
ENPHANCED
MULTI-LEVEL
DELTA-SIGMA
MODULATOR
DAC LPF+AMP
L-CH
R-CH
LPF+AMP
DAC
ZERO DETECT
SYSTEM CLOCK
1
2
6
7
5
TO AUDIO
BLOCK DIAGRAM
<VCR SECTION>
PCM-BCK
SPDIF
PCM-DATA0
PCM-LRCLK
ADAC-MD
ADAC-MC
ADAC-ML
PCM-SCLK
MAIN CBA
DVD MAIN CBA UNIT
AUDIO SIGNALDATA(AUDIO) SIGNAL
21
21
SPDIF
A-MUTE
+3.3V
Q1204
WF6
3
WF4
WF5
FIBER OPTIC
TRANS MODULE
IC1204
3

Related product manuals