EasyManua.ls Logo

FUNAI WV806 - Page 28

FUNAI WV806
65 pages
Print Icon
To Next Page IconTo Next Page
To Next Page IconTo Next Page
To Previous Page IconTo Previous Page
To Previous Page IconTo Previous Page
Loading...
1-11-6
E8C1SBLD
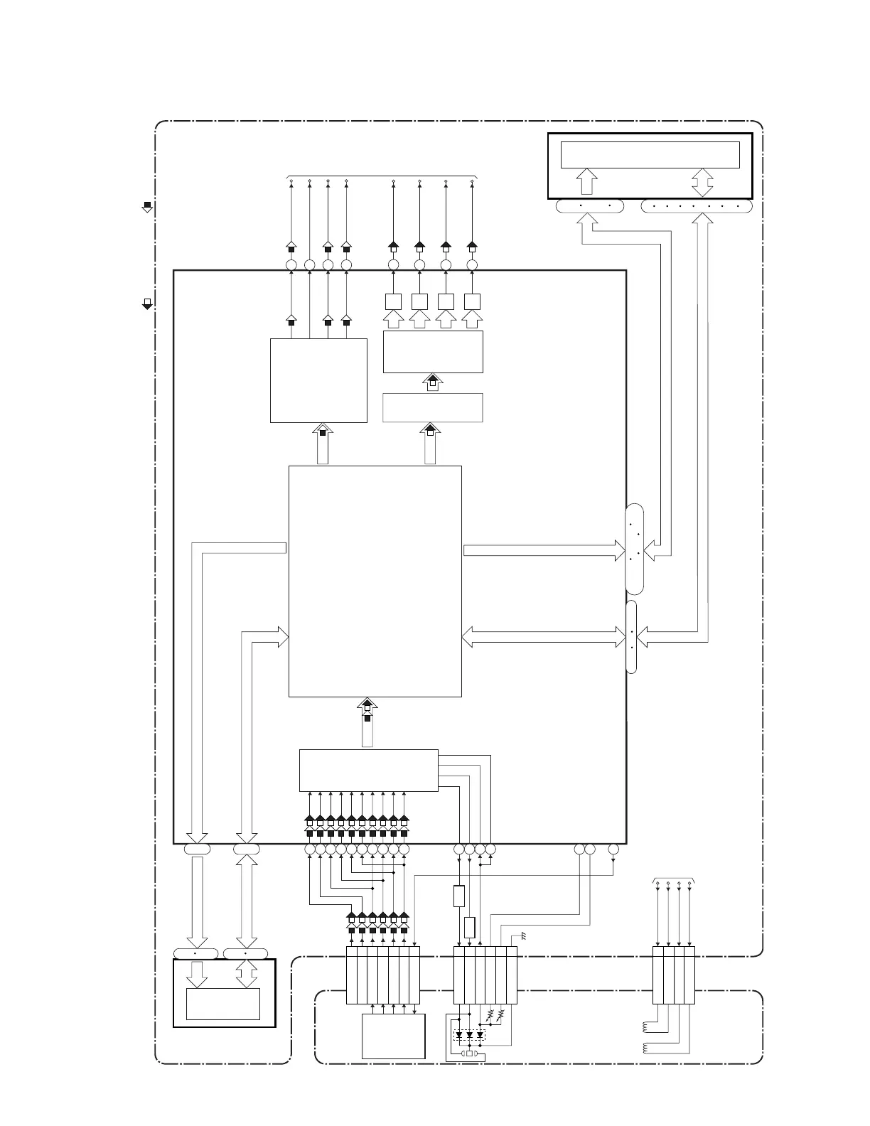
Digital Signal Process Block Diagram
C5
D3
E7
F9
A4
B6
DVD-LD 13
CD-LD 11
PD-MONI 14
FS(+) 19
FS(-) 18
TS(+) 20
TS(-) 17
CN301
CN301
CN301
IC101 (DIGITAL SIGNAL PROCESS)
FS
FS(+)
CD/DVD
FS(-)
TS(+)
TS(-)
TS
DETECTOR
CD/DVD 2
Q202
AMP
Q201
AMP
GND(DVD-PD)
15
GND(CD-PD)
16
GND(LD)
12
RF
SIGNAL
PROCESS
AUDIO
I/F
VIDEO
I/F
VIDEO
ENCODER
SDRAM
153
148
149
146
147
157
156
158
159
178
VR-CD
179
VR-DVD
180
97
95
91
89
IC103 (FLASH ROM)
FLASH
ROM
FDB (0-7)
FDA (0-18)
SDRAM DATA(0-15)
PICK-UP
UNIT
TO SYSTEM
CONTROL/SERVO
BLOCK DIAGRAM
DVD MAIN CBA UNIT
IC501 (SDRAM)
SDRAM DATA(0-15)
SDRAM ADDRESS(0-10)
3
17
~
2
12
39
49
~
~
20
24
27
32
~~
31
52
~
152
150
151
55~58
60 63~65
190~195 197~200 202
211 215204~209
154
29
31
33
35
38
40
42
44
1
8
25
16
48
~~
DIGITAL
SIGNAL
PROCESS
EXT MEMORY DATA(0-7)
EXT MEMORY ADDRESS(0-18)
155
SDRAM ADDRESS(0-10)
D/A
D/A
81
68
Y
C
VIDEO-Y
VIDEO-C
D/A 77
Pr/Cr
VIDEO-Pr/Cr
D/A 80
Pb/Cb VIDEO-Pb/Cb
SPDIF
DVD-AUDIO-MUTE
DVD-AUDIO(R)
DVD-AUDIO(L)
TO DVD
VIDEO/AUDIO
BLOCK
DIAGRAM
DVD AUDIO SIGNAL
DVD VIDEO SIGNAL

Related product manuals