EasyManua.ls Logo

Furrion FFG30FA - Installer Avec le Panneau de Porte Daccès Standard Furrion

Furrion FFG30FA
38 pages
Print Icon
To Next Page IconTo Next Page
To Next Page IconTo Next Page
To Previous Page IconTo Previous Page
To Previous Page IconTo Previous Page
Loading...


AVERTISSEMENT

maintenir la porte d'accès au four en place et sceller correctement.
Si nécessaire, construisez un cadre en bois ou en métal autour de


comme indiqué ci-dessous.
INSTALLATION HORIZONTALE INSTALLATION VERTICALE
INSTALLATION HORIZONTALE INSTALLATION VERTICALE
INSTALLATION HORIZONTALE
INSTALLATION VERTICALE
INSTALLATION HORIZONTALE INSTALLATION VERTICALE
X
Panneau extérieur
RV Floor
Mur de VR
Tubes d’évacuation et
d’entrée d’air
Mur de VR
Panneau amovible
Tubes d’évacuation et
d’entrée d’air
Mur extérieur du
véhicule récréatif
Mur de VR
Tubes d’évacuation et
d’entrée d’air
Mur extérieur du
véhicule récréatif
Mur de VR
X
Tubes d’évacuation et
d’entrée d’air
Panneau extérieur
Tube d’évacuation
Plancher du véhicule récréatif Plancher du véhicule récréatif
Mur de VR
Tube d’admission d’air
Panneau extérieur
Panneau amovible
Mur de VR
X
Tube d’évacuation
Tube d’admission d’air
Mur extérieur du
véhicule récréatif
Mur de VR
Tube d’évacuation
Tube d’admission d’air
Mur de VR
X
Tube d’évacuation
Tube d’admission
d’air
Mur extérieur du
véhicule récréatif
Panneau de la porte
d’accès de Furrion
Panneau de la porte
d’accès de Furrion
Panneau extérieur
INSTALLATION HORIZONTALE INSTALLATION VERTICALE
Mur extérieur du
véhicule récréatif
Mur de VR
Tubes d’évacuation et
d’entrée d’air
Mur de VR
Tube d’évacuation
Tube d’admission
d’air
Mur extérieur du
véhicule récréatif
X
X
Plancher du véhicule récréatif Plancher du véhicule récréatif
Plancher du véhicule récréatif
Plancher du véhicule récréatif
Plancher du véhicule récréatif Plancher du véhicule récréatif
Plancher du véhicule récréatif Plancher du véhicule récréatif
INSTALLATION HORIZONTALE INSTALLATION VERTICALE
INSTALLATION HORIZONTALE INSTALLATION VERTICALE
INSTALLATION HORIZONTALE
INSTALLATION VERTICALE
INSTALLATION HORIZONTALE INSTALLATION VERTICALE
X
Panneau extérieur
RV Floor
Mur de VR
Tubes d’évacuation et
d’entrée d’air
Mur de VR
Panneau amovible
Tubes d’évacuation et
d’entrée d’air
Mur extérieur du
véhicule récréatif
Mur de VR
Tubes d’évacuation et
d’entrée d’air
Mur extérieur du
véhicule récréatif
Mur de VR
X
Tubes d’évacuation et
d’entrée d’air
Panneau extérieur
Tube d’évacuation
Plancher du véhicule récréatif Plancher du véhicule récréatif
Mur de VR
Tube d’admission d’air
Panneau extérieur
Panneau amovible
Mur de VR
X
Tube d’évacuation
Tube d’admission d’air
Mur extérieur du
véhicule récréatif
Mur de VR
Tube d’évacuation
Tube d’admission d’air
Mur de VR
X
Tube d’évacuation
Tube d’admission
d’air
Mur extérieur du
véhicule récréatif
Panneau de la porte
d’accès de Furrion
Panneau de la porte
d’accès de Furrion
Panneau extérieur
INSTALLATION HORIZONTALE INSTALLATION VERTICALE
Mur extérieur du
véhicule récréatif
Mur de VR
Tubes d’évacuation et
d’entrée d’air
Mur de VR
Tube d’évacuation
Tube d’admission
d’air
Mur extérieur du
véhicule récréatif
X
X
Plancher du véhicule récréatif Plancher du véhicule récréatif
Plancher du véhicule récréatif
Plancher du véhicule récréatif
Plancher du véhicule récréatif Plancher du véhicule récréatif
Plancher du véhicule récréatif Plancher du véhicule récréatif

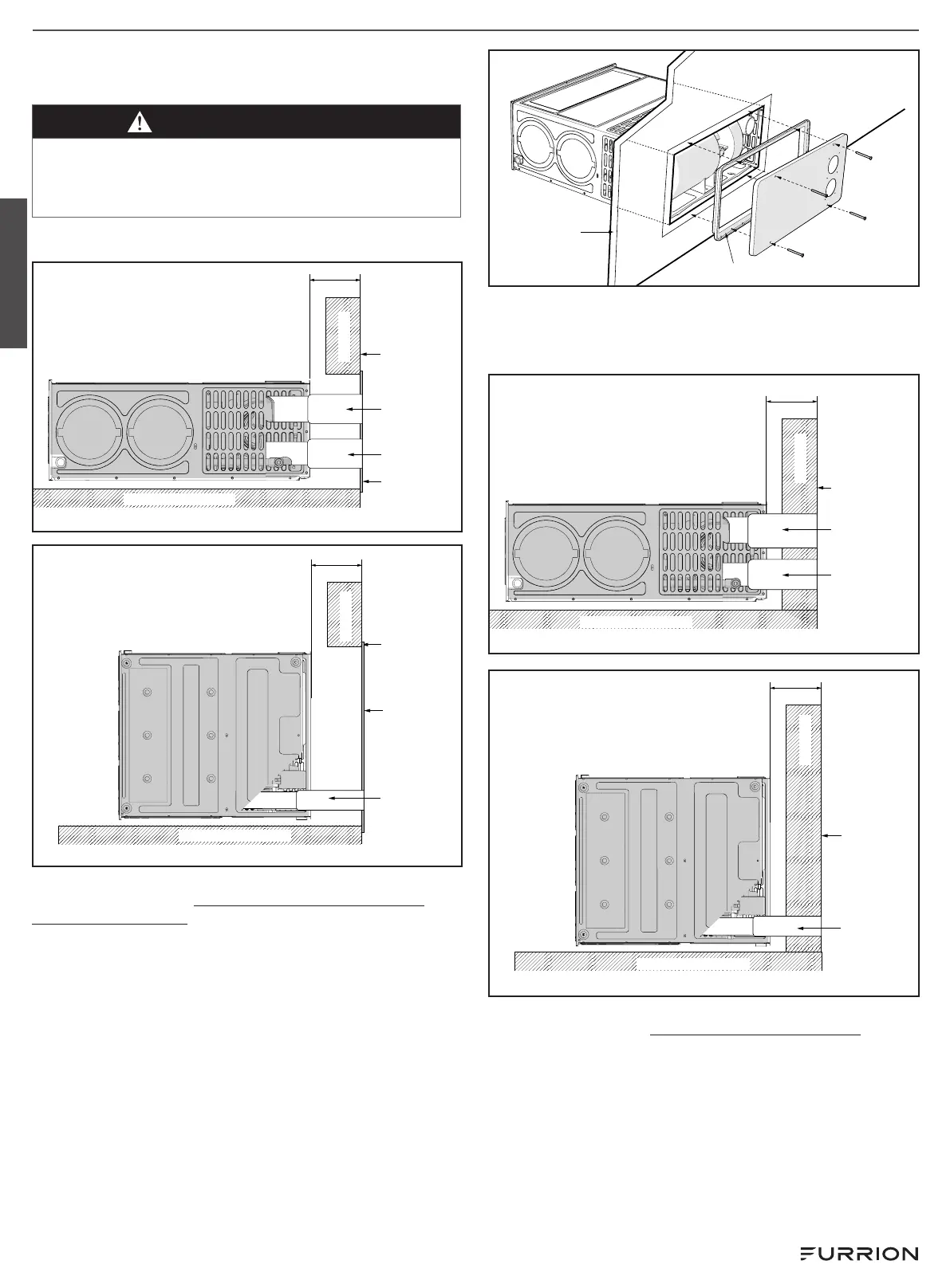
A. Installer avec le panneau de porte
d’accès standard Furrion
1. Appliquez un joint en butyle ou en mousse autour de toute la bride
arrière du cadre de porte.
2. 

3. 




4. Alignez et placez le cadre de la porte et la porte d’accès sur


5. Installez l'évent d'échappement et les tubes d'admission d'air. Voir la

Mur de VR
Cadre de porte


comme indiqué ci-dessous.
INSTALLATION HORIZONTALE INSTALLATION VERTICALE
INSTALLATION HORIZONTALE INSTALLATION VERTICALE
INSTALLATION HORIZONTALE INSTALLATION VERTICALE
INSTALLATION HORIZONTALE
INSTALLATION VERTICALE
X
Panneau extérieur
RV Floor
Mur de VR
Tubes d’évacuation et
d’entrée d’air
Mur de VR
Panneau amovible
Tubes d’évacuation et
d’entrée d’air
Mur extérieur du
véhicule récréatif
Mur de VR
Tubes d’évacuation et
d’entrée d’air
Mur extérieur du
véhicule récréatif
Mur de VR
X
Tubes d’évacuation et
d’entrée d’air
Panneau extérieur
Tube d’évacuation
Plancher du véhicule récréatif Plancher du véhicule récréatif
Mur de VR
Tube d’admission d’air
Panneau extérieur
Panneau amovible
Mur de VR
X
Tube d’évacuation
Tube d’admission d’air
Mur extérieur du
véhicule récréatif
Mur de VR
Tube d’évacuation
Tube d’admission d’air
Mur de VR
X
Tube d’évacuation
Tube d’admission
d’air
Mur extérieur du
véhicule récréatif
Panneau de la porte
d’accès de Furrion
Panneau de la porte
d’accès de Furrion
Panneau extérieur
INSTALLATION HORIZONTALE INSTALLATION VERTICALE
Mur extérieur du
véhicule récréatif
Mur de VR
Tubes d’évacuation et
d’entrée d’air
Mur de VR
Tube d’évacuation
Tube d’admission
d’air
Mur extérieur du
véhicule récréatif
X
X
Plancher du véhicule récréatif Plancher du véhicule récréatif
Plancher du véhicule récréatif Plancher du véhicule récréatif
Plancher du véhicule récréatif
Plancher du véhicule récréatif
Plancher du véhicule récréatif Plancher du véhicule récréatif
INSTALLATION HORIZONTALE INSTALLATION VERTICALE
INSTALLATION HORIZONTALE INSTALLATION VERTICALE
INSTALLATION HORIZONTALE INSTALLATION VERTICALE
INSTALLATION HORIZONTALE
INSTALLATION VERTICALE
X
Panneau extérieur
RV Floor
Mur de VR
Tubes d’évacuation et
d’entrée d’air
Mur de VR
Panneau amovible
Tubes d’évacuation et
d’entrée d’air
Mur extérieur du
véhicule récréatif
Mur de VR
Tubes d’évacuation et
d’entrée d’air
Mur extérieur du
véhicule récréatif
Mur de VR
X
Tubes d’évacuation et
d’entrée d’air
Panneau extérieur
Tube d’évacuation
Plancher du véhicule récréatif Plancher du véhicule récréatif
Mur de VR
Tube d’admission d’air
Panneau extérieur
Panneau amovible
Mur de VR
X
Tube d’évacuation
Tube d’admission d’air
Mur extérieur du
véhicule récréatif
Mur de VR
Tube d’évacuation
Tube d’admission d’air
Mur de VR
X
Tube d’évacuation
Tube d’admission
d’air
Mur extérieur du
véhicule récréatif
Panneau de la porte
d’accès de Furrion
Panneau de la porte
d’accès de Furrion
Panneau extérieur
INSTALLATION HORIZONTALE INSTALLATION VERTICALE
Mur extérieur du
véhicule récréatif
Mur de VR
Tubes d’évacuation et
d’entrée d’air
Mur de VR
Tube d’évacuation
Tube d’admission
d’air
Mur extérieur du
véhicule récréatif
X
X
Plancher du véhicule récréatif Plancher du véhicule récréatif
Plancher du véhicule récréatif Plancher du véhicule récréatif
Plancher du véhicule récréatif
Plancher du véhicule récréatif
Plancher du véhicule récréatif Plancher du véhicule récréatif

B. Installer sans panneau d'accès

1. 
Assurez-vous que le tube de ventilation d’échappement et le tube
d’admission d’air sont situés dans les trous découpés.
2. 




3. Installez l'évent d'échappement et les tubes d'admission d'air. Voir la

Français
CCD-0006025 Rév: 27-02-23
- 9 -