EasyManua.ls Logo

Furuno DRS4A - Page 48

Furuno DRS4A
52 pages
Print Icon
To Next Page IconTo Next Page
To Next Page IconTo Next Page
To Previous Page IconTo Previous Page
To Previous Page IconTo Previous Page
Loading...
2
43
A
1
B
C
1
2
4
5
6
3
7
8
NC
NC
E_TD-P
E_TD-N
E_RD-P
E_RD-N
RJ45J3
1
2
4
5
6
3
7
8
NC
NC
E_TD-P
NC
E_TD-N
E_RD-P
NC
E_RD-N
B2
アカ
クロ
RED
BLK
シロ
アオ
WHT
BLU
1
2
4
5
3
NET-S
NET-L
NET-H
NET-C
SHIELD
NMEA2000
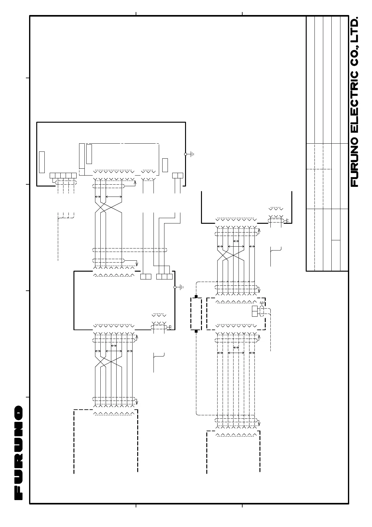
TB102
RJ45
P
P
GP-330B
SC-30
WS-200 etc.
J207
NETWORK
MOD-ASW0002,10/15/20/30m,φ6
航法装置またはセンサー
NAV.EQUIPMENT OR SENSOR
CB-05BFFM,1/2/6m
M12-05BFFM,1/2/6m
*2
空中線部
ANTENNA UNIT
RSB-118
1
2
(+)
J1
シロ WHT
(-)3クロ BLK
1
2
4
5
6
3
7
8
NC
NC
E_TD-P
E_TD-N
E_RD-P
E_RD-N
RJ45 J2
*3
P
P
PP
VL3P-VVS2x2C,5m
MOD-Z072,5m,φ6
(2/10m *2)
12/24VDC
POWER SUPPLY UNIT
パワーサプライユニット
PSU-013
MULTI-FUNCTION DISPLAY
マルチファンクションディスプレイ
1
2
4
5
6
3
7
8
NC
NC
E_TD-P
E_TD-N
E_RD-P
E_RD-N
RJ45
*3
MFDBB(MPU-001)
MFD8/12
DRAWN
CHECKED
APPROVED
DWG.No.
TITLE
NAME
名称
INTERCONNECTION DIAGRAM
相互結線図
REF.No.
SCALE MASS
kg
レーダーセンサー
RADAR SENSOR
T.YAMASAKI
DRS25A
SW-P
SW-N
SW-P
SW-N
SW-P
SW-N
1
J5
TXHV アカ RED
2
NOTE
1. SHIPYARD SUPPLY.
2. OPTION.
注記
1)造船所手配。
2)オプション。
3)コネクタは工場にて取付済み。
3. CONNECTOR PLUG FITTED AT FACTORY.
RW-4747,0.3m
1
2
3
TXHV
NC
J305
GNDアオ BLU
+48V
GND
1
2
J4
3GND
*1
IV-2sq.
1
2
48V-H
48V-Cクロ BLK
シロ WHT
TB101
POWER
1
2
4
5
6
3
7
8
NC
NC
E_TD-P
E_TD-N
E_RD-P
E_RD-N
*3
P
P
PP
RJ45
P
P
PP
1
2
4
5
6
3
7
8
RJ45
*3
1
2
4
5
6
3
7
8
J2
1
2
(+)
(-)
J3
12-24VDC
VVRx2C *1
1 (+)
J1
シロ WHT
VL3P-VVS2x2C,5m
12/24VDC
(-)クロ BLK
2
3
HUB-101
ETHERNET HUB
*2
JUNCTION BOX
または OR
MOD-Z072,5m,φ6
(2/10m *2)
TL-CAT-012 *2
RJ45RJ45
RJ45
*3
1
2
4
5
6
3
7
8
NC
NC
E_TD-P
E_TD-N
E_RD-P
E_RD-N
RJ45
*3
MFDBB(MPU-001)
MFD8/12
MOD-WPAS0001,3m
MOD-WPAS0001,3m
*2
MOD-Z072,2/5/10m,φ6(CROSS) OR
*2
PSU-013
SW-P
SW-N
SW-P
SW-N
H.MAKI
C3573-C01- B
RTR-095A
25/May/2011
25/May/2011
03-174-6003-4
25/May/2011 Y.NISHIYAMA
S-4

Related product manuals