EasyManua.ls Logo

Gallagher T30 - Mounting Dimensions

Gallagher T30
13 pages
Print Icon
To Previous Page IconTo Previous Page
To Previous Page IconTo Previous Page
Loading...
3Ennnn Gallagher T30 Reader Installation Note| DRAFT2 | July 2020
Copyright © Gallagher Group Limited Page 13
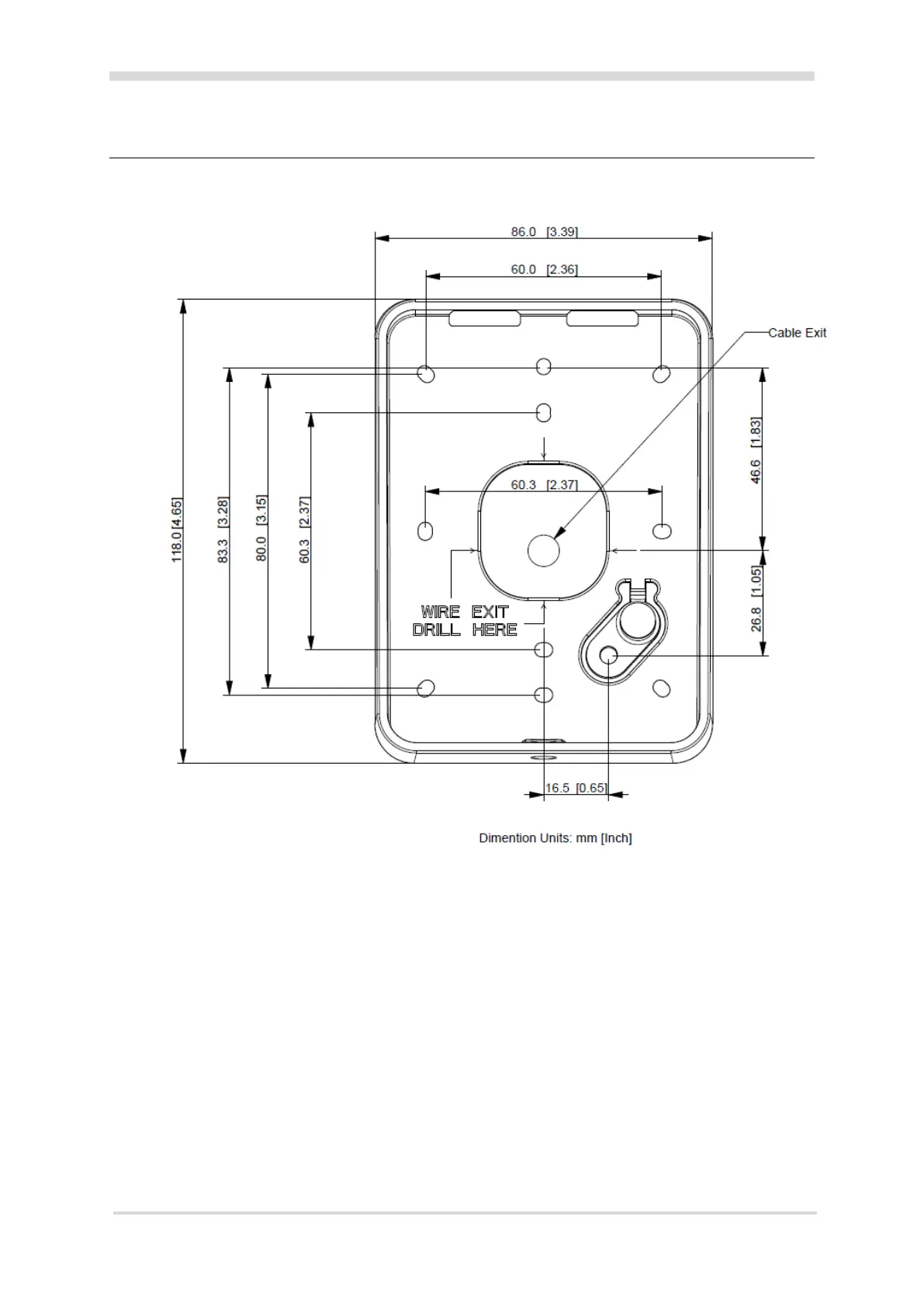
9 Mounting Dimensions
IMPORTANT
This picture is not to scale, therefore use the measurements provided.

Other manuals for Gallagher T30