EasyManua.ls Logo

Galletti LCA 080 - Page 31

Galletti LCA 080
36 pages
Print Icon
To Next Page IconTo Next Page
To Next Page IconTo Next Page
To Previous Page IconTo Previous Page
To Previous Page IconTo Previous Page
Loading...
LCA
RG66000986 – Rev.00
31
a
a
HMI
4
8
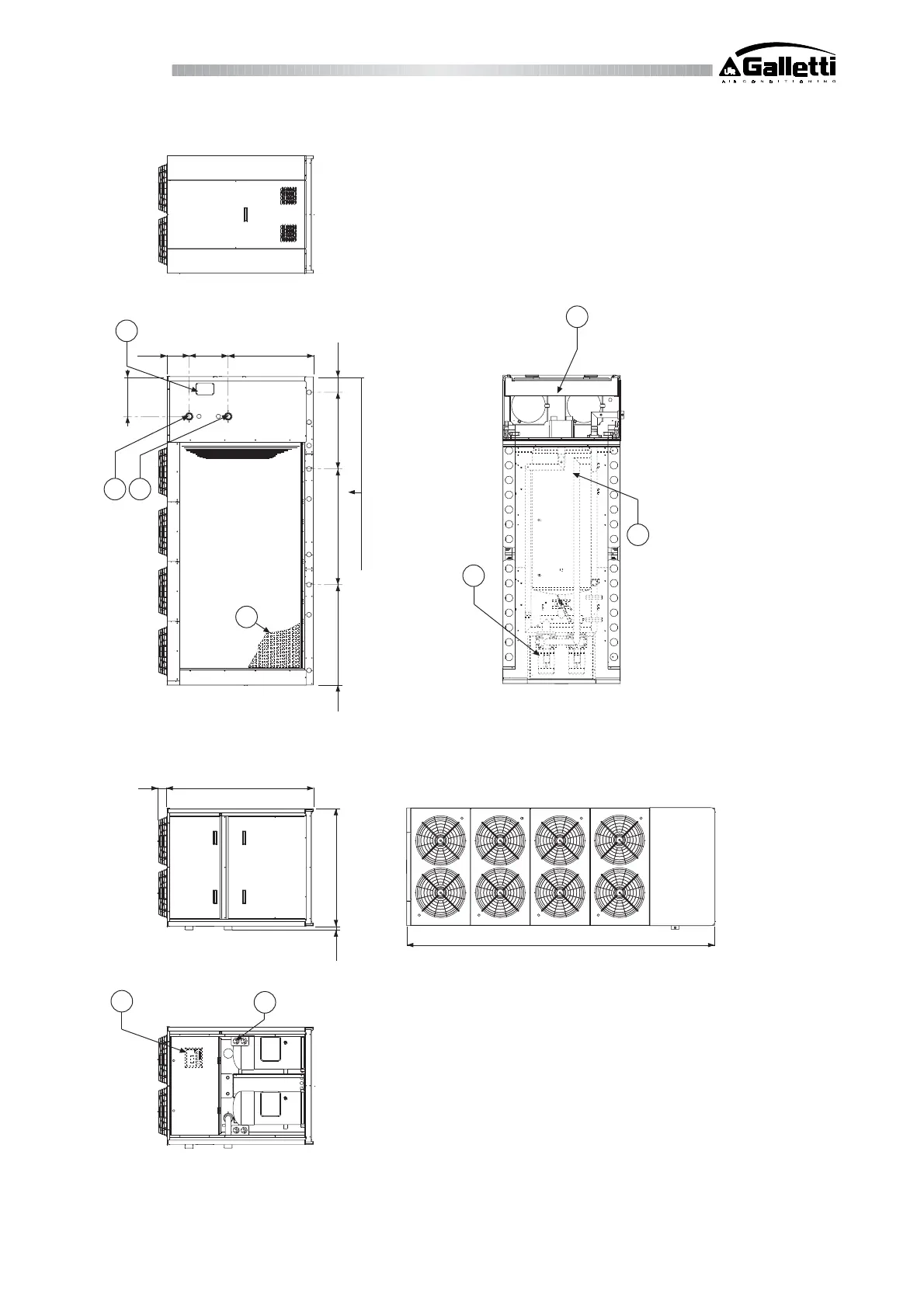
Fronte unità
Front unit
Retro
Rear side
Baricentro con
serbatoio vuoto
3
Fianco sinistro
Left side
150 1178 780 157,5
1218
228868 397
Vista dall'alto
Top view
3140
407
870,5
9
1
2
5
6
7
37,5 1197
1493,5 85
Center of gravity
with empty tank
1 Water inlet (2" gas)
2 Water outlet (2" gas)
3 Power supply input
4 Electric control board
5 Refrigerant pressure gauges (optional)
6 Advanced control microprocessor (optional)
7 pump system (optional)
8 Inertial storage reservoir (optional)
9 Condenser protection grilles (optional)
LCA 090 - 105

Related product manuals