EasyManua.ls Logo

Garland moisture+ - Specifications and Dimensions

Garland moisture+
36 pages
Print Icon
To Next Page IconTo Next Page
To Next Page IconTo Next Page
To Previous Page IconTo Previous Page
To Previous Page IconTo Previous Page
Loading...
Part # 1936601 Rev. 6 (01/08)Page 4
Notes:
1. Standard electrical
specications include motor
requirements.
2. All ovens have a ¾ HP, two
speed motor; 1140 and 1725
RPM, 60 Hz.
3. Garland recommends that a
separate 15 Amp circuit be
provided for each 120V oven
4. A 6 foot line cord is provided for
each 120V oven with a NEMA
5-15P plug.
5. Double stack installations
require an individual power
supply connection to each
oven.
Gas input ratings are for
installations up to 2000 feet
(610 m) above sea level. Specify
altitudes above 2000 feet.
Commercial cooking equipment
requires an adequate ventilation
system. For additional information
refer to the National Fire Protection
Associations standard NFPA96,
Vapors Removal from Cooking
Equipment” (Note: For North
America only)
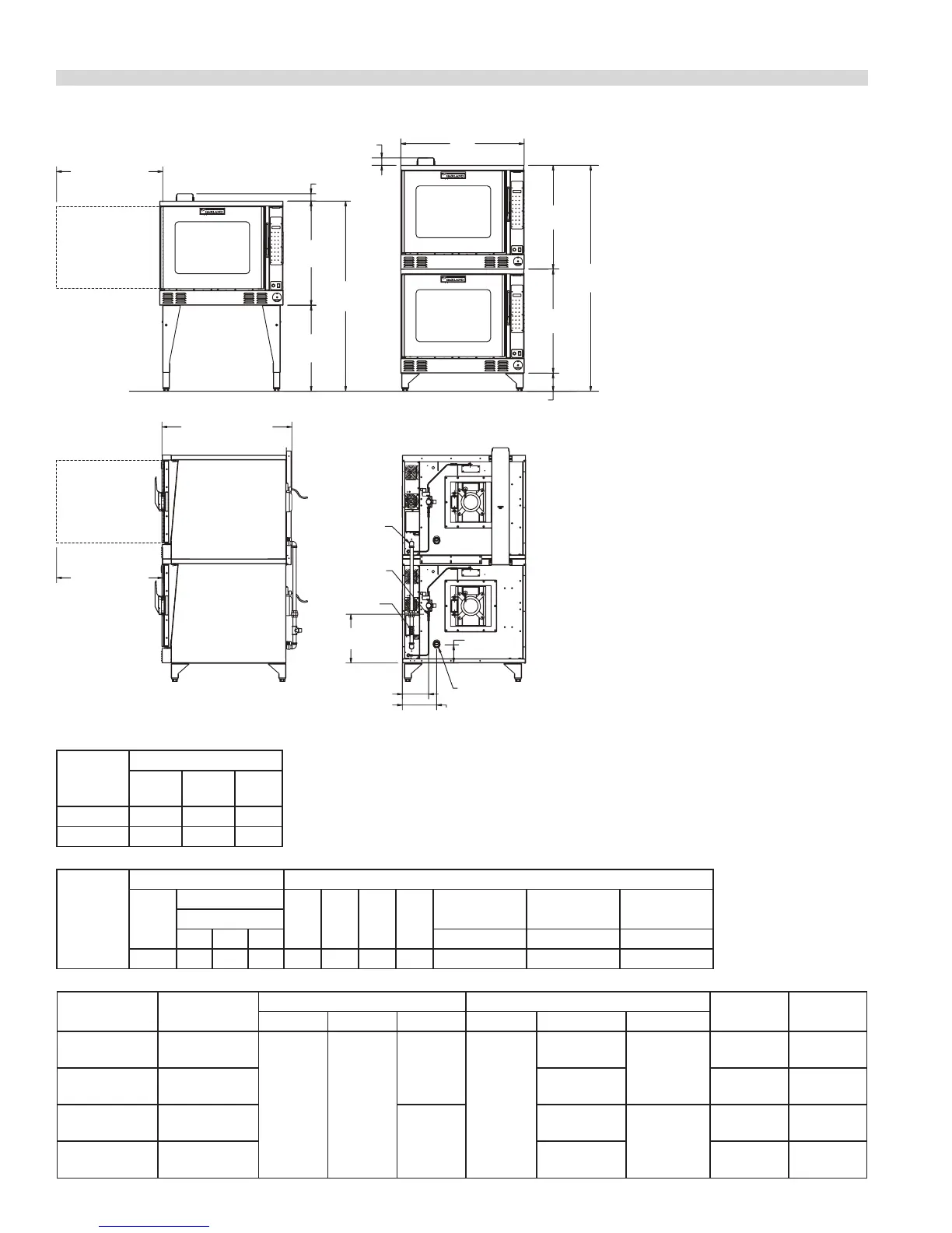
DIMENSIONS AND SPECIFICATIONS
38"
[965mm]
2-1/4"
[57mm]
2-1/4"
[57mm]
32-3/4"
[832mm]
DOOR OPENING
REQUIRED
32"
[813mm]
58.5"
[1486mm]
26-1/2"
[673mm]
FLOOR
LINE
40" [1015mm]
ADD 4" [102mm]
FOR DEEP OVENS
32-3/4"
[832mm]
DOOR OPENING
REQUIRED
32"
[813mm]
32"
[813mm]
70-1/4"
[1784mm]
5-1/2"
[140mm]
6-1/4"
[159mm]
SINGLE DECK
GAS SUPPLY
3/4" NPT
1/8" NPT
WATER SUPPLY
DOUBLE STACK
GAS SUPPLY
1" NPT
15"
[381mm]
8-1/4"
[210mm]
10-1/2"
[267mm]
1-1/2" NPT
DRAIN CONNECTION
Gas
Models
Input Ratings
Gas
Inlet
BTU
Hour
kW
Natural ¾” NPT 80,000 23.5
Propane ¾” NPT 60,000 17.6
Electric
Models
Input Ratings Nominal Amperes
kW
Total KW/Line
120V
1Ph
208V
1 Ph
240 V
1 Ph
460V
1 ph
208V 3 Ph 240V 3 Ph 460V 3 Ph
208/240/460
X-Y Y-Z X-Z X/Y/Z X/Y/Z X/Y/Z
11 3.33 3.33 4.33 N/A 53 46 24 31.8/27.7/31.8 27.6/24.0/27.6 10.5/9.5/10.5
Model Description
Interior Dimensions: in [mm] Exterior Dimensions: in [mm]
Weight
(lbs/kg)
Size
(Cu ft)
W H D W H D
MP-ES/GS-10-S
Std Depth,
Sgl Deck
29 [736] 24 [610]
24 [610]
38 [965]
60-3/4 [1543]
40 [1016]
510/232 42
MP-ES/GS-20-S
Std Depth,
Dbl Deck
72-1/2 [1842] 1024/464 84
MP-ED/GD-10-S
Deep Depth,
Sgl Deck
28 [711]
60-3/4 [1543]
44 [1118]
510/232 42
MP-ED/GD-20-S
Deep Depth,
Dbl Deck
72-1/2 [1842] 1024/464 84

Table of Contents

Related product manuals