EasyManua.ls Logo

GE Multilin 469 - 3.2 Electrical Installation

GE Multilin 469
338 pages
Print Icon
To Next Page IconTo Next Page
To Next Page IconTo Next Page
To Previous Page IconTo Previous Page
To Previous Page IconTo Previous Page
Loading...
CHAPTER 3: INSTALLATION
469 MOTOR MANAGEMENT RELAY – INSTRUCTION MANUAL 3–11
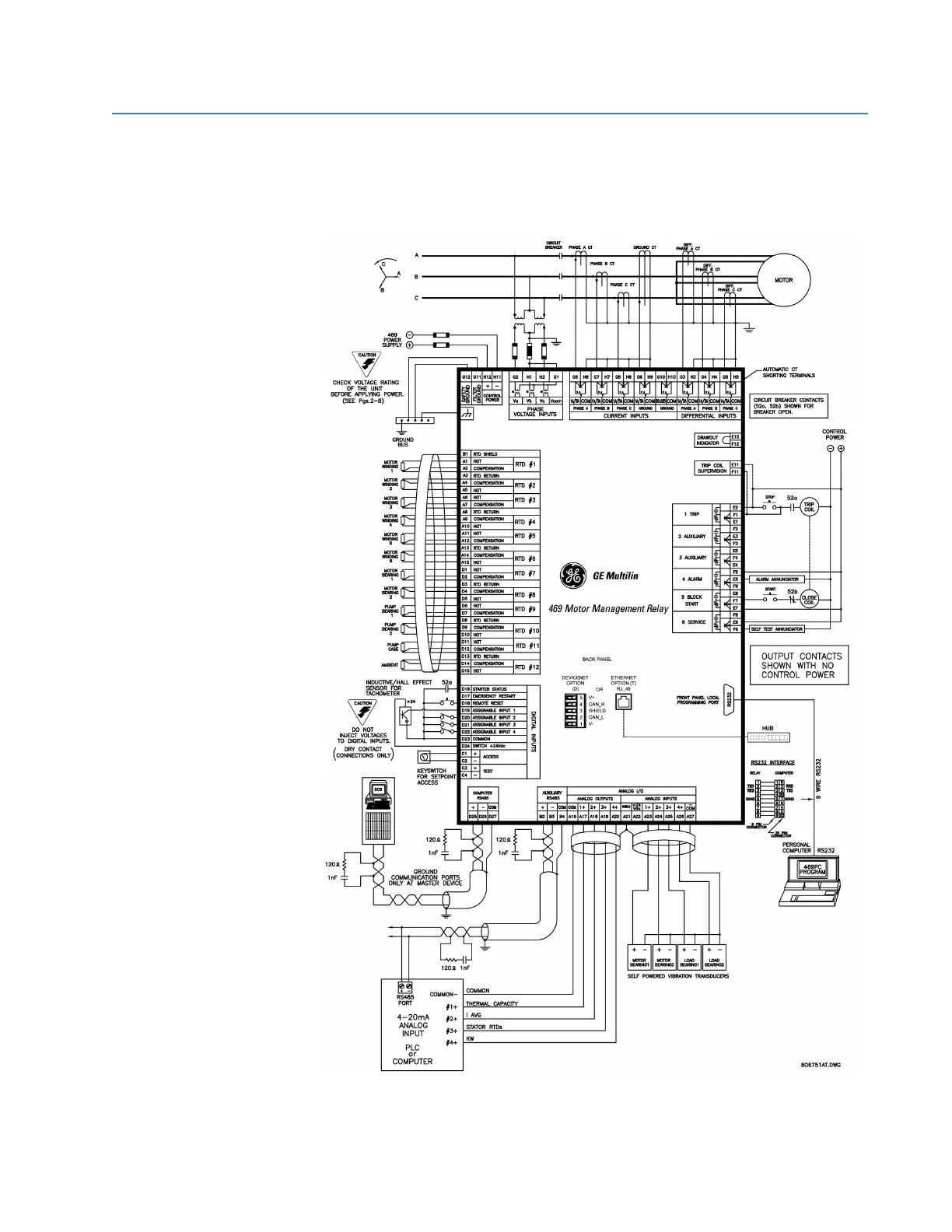
3.2 Electrical Installation
3.2.1 Typical Wiring
FIGURE 3–12: Typical Wiring Diagram

Table of Contents