EasyManua.ls Logo

GE Multilin 565 - Page 14

GE Multilin 565
198 pages
Print Icon
To Next Page IconTo Next Page
To Next Page IconTo Next Page
To Previous Page IconTo Previous Page
To Previous Page IconTo Previous Page
Loading...
INSTALLATION
2-10
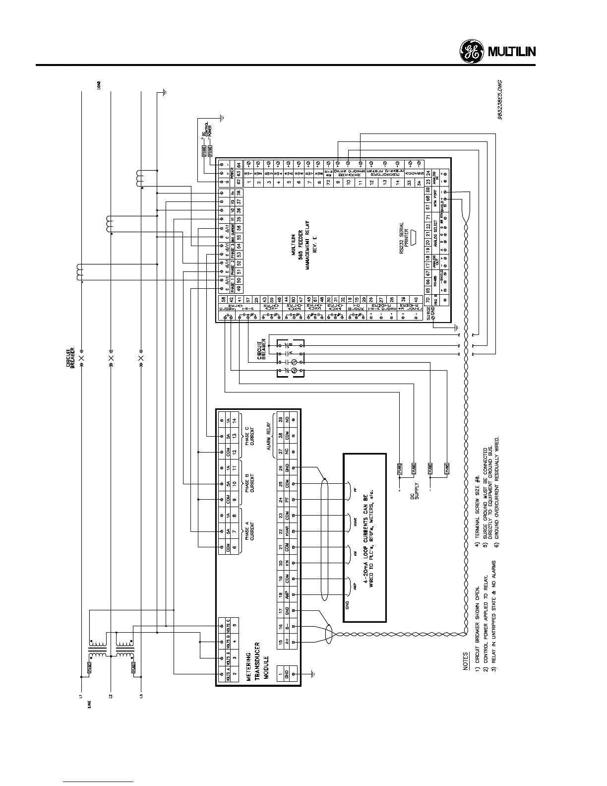
Figure 2.7A 565 with MTM CT and Open Delta VT Typical Wiring

Table of Contents

Related product manuals