EasyManua.ls Logo

GE Multilin 565 - Page 176

GE Multilin 565
198 pages
Print Icon
To Next Page IconTo Next Page
To Next Page IconTo Next Page
To Previous Page IconTo Previous Page
To Previous Page IconTo Previous Page
Loading...
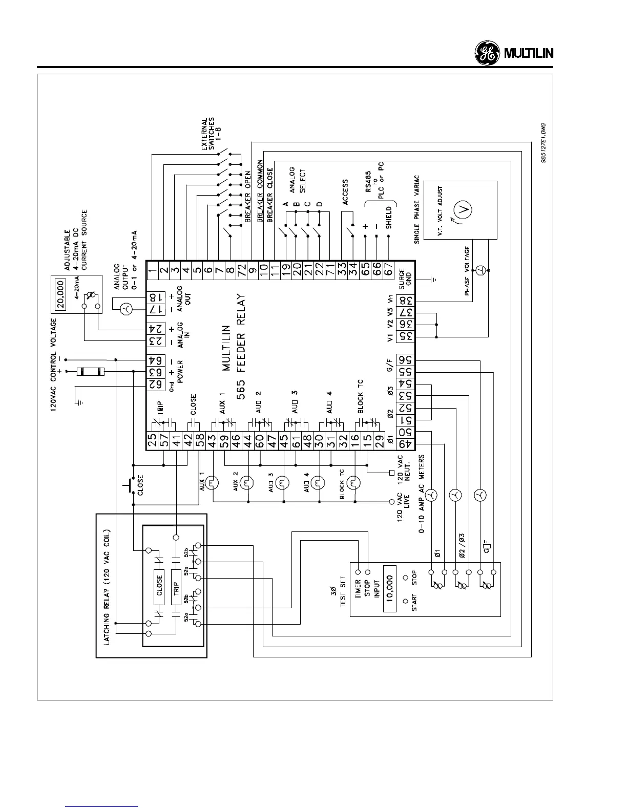
RELAY TESTING
8-2
Figure 8.1 Secondary Injection Test Setup

Table of Contents

Related product manuals