EasyManua.ls Logo

GE CGP650SETSS - Page 27

GE CGP650SETSS
32 pages
Print Icon
To Next Page IconTo Next Page
To Next Page IconTo Next Page
To Previous Page IconTo Previous Page
To Previous Page IconTo Previous Page
Loading...
6
Instructions d’installation
INSTALLATION—BRANCHEMENT DU GAZ
1
FOURNISSEZ UN BON
APPROVISIONNEMENT EN GAZ
Cette table de cuisson est conçue pour fonctionner au
gaz naturel à une pression de tubulure d’admission
de 4 po. de colonne d’eau et à une pression
d’approvisionnement de 5 po. de colonne d’eau. Elle
est expédiée de l’usine réglée pour le gaz naturel.
Le régulateur de pression convertible fourni avec
l’appareil doit être branché en série à la tubulure
d’admission de la table de cuisson et doit rester
branché sur la ligne d’approvisionnement qu’il
s’agisse de gaz naturel ou de gaz propane (LP). POUR
OBTENIR UN BON FONCTIONNEMENT, LA PRESSION
MAXIMALE D’ENTRÉE AU RÉGULATEUR NE DOIT PAS
ÊTRE SUPÉRIEURE À 14 po. DE COLONNE D’EAU. Pour
vérifier le régulateur, la pression d’entrée doit être
au moins de 1 po. de colonne d’eau (ou 3,4 KPA) plus
grande que celle de réglage de sortie du régulateur.
Si le régulateur est réglé à une pression de 5 po. de
colonne d’eau, la pression d’entrée doit être au moins
égale à 6 po.. Si le régulateur est réglé à une pression
de 10 po., la pression d’entrée doit être au moins
égale à 11 po. La ligne d’approvisionnement de gaz à
la table de cuisson doit être un tuyau de 1/2 po.
ou de 3/4 po.
2
INSTALLEZ LE RÉGULATEUR
N’utilisez jamais de vieux raccords quand vous
installez votre table de cuisson..
AVERTISSEMENT :
N’utilisez jamais des raccords flexibles usagés.
L’utilisation de raccords flexibles usagés peut
occasionner des fuites de gaz et des blessures
corporelles. Utilisez toujours des raccords flexibles
neufs quand vous installez un appareil à gaz.
Pour réduire la possibilité de fuites de gaz, posez un
ruban de téflon ou mettez de la graisse pour filetage
approuvée pour le gaz naturel ou butane sur tous les
raccords filetés.
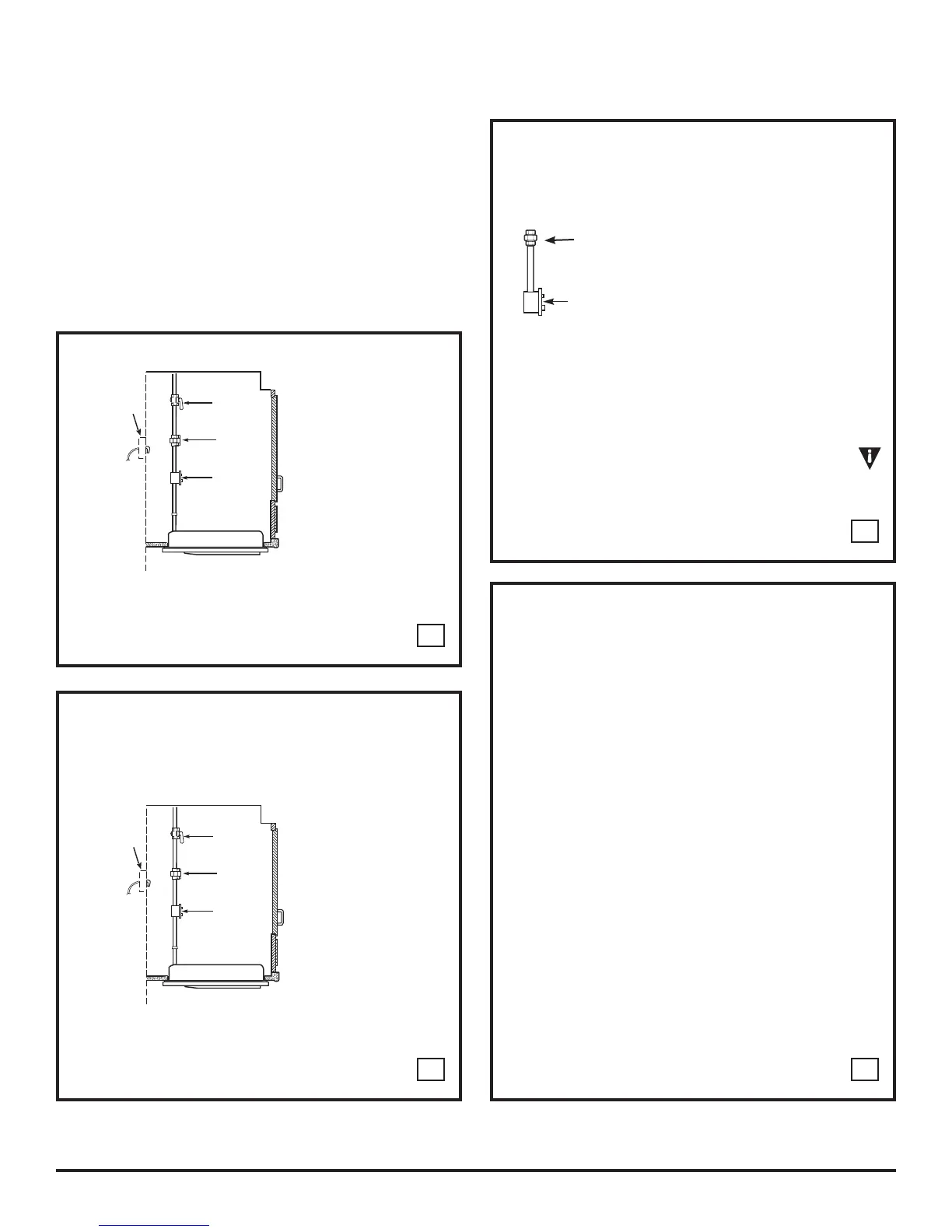
Vissez une section du tuyau dans
l’extrémité d’entrée du régulateur
de pression et installez le
raccord.
3
INSTALLEZ LE RÉGULATEUR EN
BAS DE LA BOÎTE DE BRÛLEURS
Vissez le régulateur dans
le raccord du bas de
la boîte de brûleurs.
Assurez-vous que le
haut du régulateur
soit face à l’avant
de l’armoire, et
soit facilement
accessible à
partir des portes
de l’armoire. Le
régulateur peut
aussi être installé
avant l’insertion de
la table de cuisson dans l’ouverture à condition
d’user d’une grande prudence afin de ne pas gêner
la connexion du régulateur.
4
TERMINEZ LE RACCORDEMENT
AVEC UN RACCORD
Terminez le raccordement entre le raccord du
tuyau du régulateur
et le robinet d’arrêt.
Régulateur de
pression
Raccord
Régulateur
de pression
Robinet
d’arrêt
Raccord
Prise électrique
12 po.
au-dessous du
comptoir
Régulateur
de pression
Robinet
d’arrêt
Raccord
Prise électrique
12 po.
au-dessous du
comptoir

Related product manuals