EasyManua.ls Logo

GE GTS16DTH - Top Mount Electronic Defrost

GE GTS16DTH
64 pages
Print Icon
To Next Page IconTo Next Page
To Next Page IconTo Next Page
To Previous Page IconTo Previous Page
To Previous Page IconTo Previous Page
Loading...
– 61 –
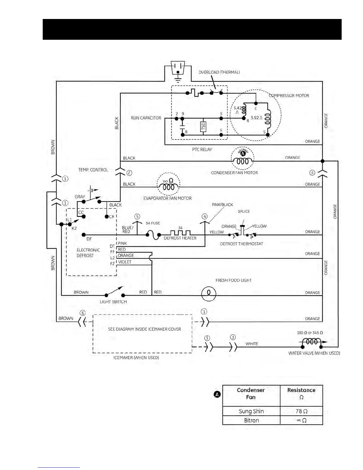
Top Mount Electronic Defrost

Related product manuals