EasyManua.ls Logo

GEZE Slimdrive SD - Page 10

GEZE Slimdrive SD
Print Icon
To Next Page IconTo Next Page
To Next Page IconTo Next Page
To Previous Page IconTo Previous Page
To Previous Page IconTo Previous Page
Loading...
10
Integrierte Schließfolgeregelung Slimdrive SD Türblattmontage Bandseite , Datei 88340 SD_IS-T-BS_180400.p65
English Page
Important:
This installation instruction is based on the mounting instructions for
Slimdrive SD
.
For dimensions, fastening, position of electric connections and starting operation please see mounting
instructions for Slimdrive SD.
The safety regulations described therein must also be observed. If the integrated closer control is used
for other fields of application than those herein described this does not comply with the use in
accordance with the regulations.
Fields of application
The integrated closer control
Slimdrive SD
controls the closing procedure of double-wing doors featuring
overlap (typical for fire-proof doors) in a fully mechanical way:
SD-automatic function on both wings
SD-servo function on both wings
SD-servo / automatic function on the 1st closing leaf and
TS 5000
on the 2nd closing leaf
(see example below)
The present system has been factory-designed for door leaf mounting on hinge side
The 1st closing leaf may be mounted left-hand or right-hand, which has to be taken into consideration
when following the below mounting instructions.
Application is suitable for the following hinge centres:
Slimdrive SD-IS / TS 5000
B3
min
= 1200 mm B3
max
= 2700 mm
Slimdrive SD-IS / Slimdrive SD
B3
min
= 1420 mm B3
max
= 2700 mm (without add-on module)
or minimum leaf width incl. add-on module 815 up to 1400 mm (mind overall width!)
Functional description
- When opening the 2nd closing leaf, an additional valve in the
Slimdrive SD-IS
of the 1st closing leaf,
which is located between the drives, is closed by means of a rope. The 1st closing leaf is ‘waiting‘.
- Once the 2nd closing leaf is nearly closed, the rope tightens, thus releasing the closing hydraulics of the
1st closing leaf.
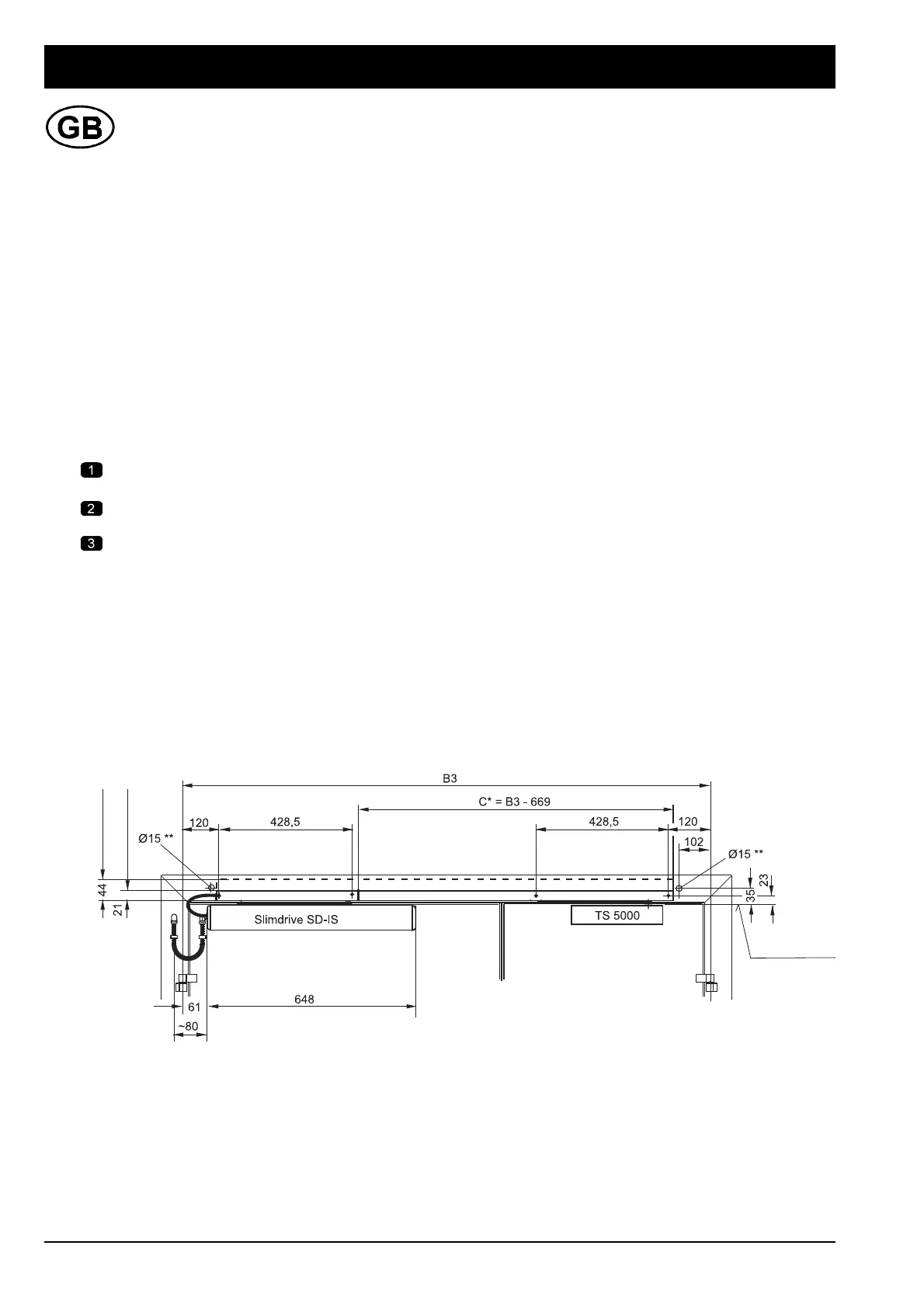
Illustration: Slimdrive SD mounted on top of active leaf (left), TS 5000 mounted on top
Top edge of
door leaf
* Dimension C, can be cut to size
by customer if required
** Power supply for electric guide rail
Electric rail
Space required
Guide rail

Related product manuals