EasyManua.ls Logo

Gilson TS-1 - TS-1;TS-2;TS-3 Wiring Diagram

Default Icon
28 pages
Print Icon
To Previous Page IconTo Previous Page
To Previous Page IconTo Previous Page
Loading...
28
Schematics
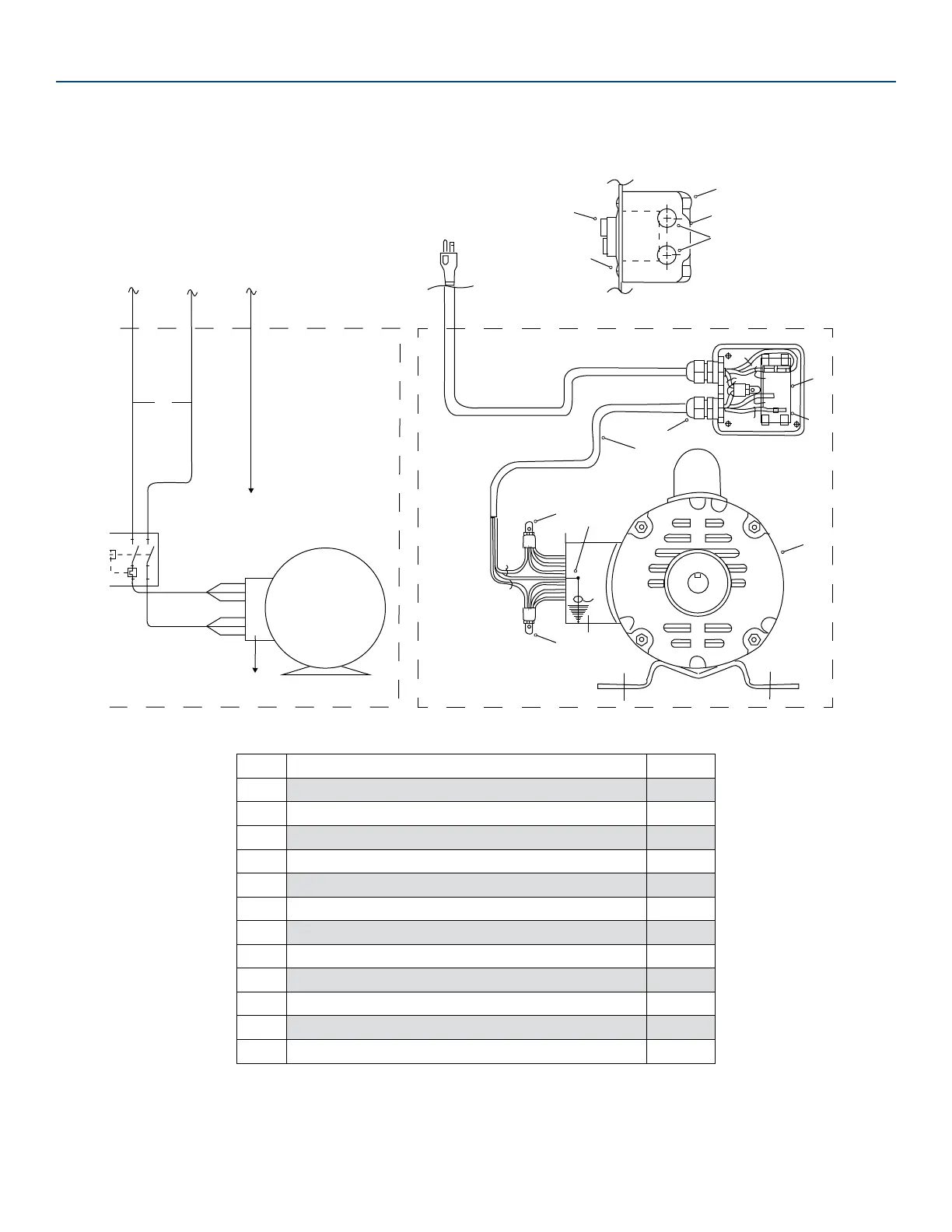
TS-1/TS-2/TS-3 Wiring Diagram
NOTE: For serial # 13825 and after
1
10
12
7
v
11
3, 4
2
5
1
6
13
6
9
BLACK
BLACK
WHITE
WHITE
GREEN
BACK VIEW
SWITCHED POWER
LOAD
115 VAC
SAFETY
GROUND
WHITE
BLACK
NEUTRAL
GREEN
LINE
TOP GUARD ENCLOSURE
TOP GUARD ENCLOSURE
LOAD
1
3
8
2
4
5
110 VAC
60 Hz
BLACK
WHITE
GREEN
LINE
NEUTRAL
1/2 HP
1725 RPM
115/230 VAC
60 HZ
56 FR
OPF
1
3
8
2
4
5
Description # Req.
1 Switch, Overload, 12A/115V 1
2 3in� ABS Cover 1
3 8/32in Nylon Stop Nut 4
4 #8 Flat Washer 4
5 #8 Panhead Screw 32x2�5in 4
6 Non-metallic Strain Relief Cord Grip and Lock Nut 2
7 Insulated Crimped Connector 4
8 Insulated Crimped Connector 4
9 Ring Connector 1
10 Motor, 1/2HP 1
11 Cord with Molded Plug 1
12 90 Insulated Connector 4
13 Corded Pigtail 28�75in 1

Table of Contents

Related product manuals