EasyManua.ls Logo

Glen Dimplex System 18 - Dimensions

Glen Dimplex System 18
24 pages
Print Icon
To Next Page IconTo Next Page
To Next Page IconTo Next Page
To Previous Page IconTo Previous Page
To Previous Page IconTo Previous Page
Loading...
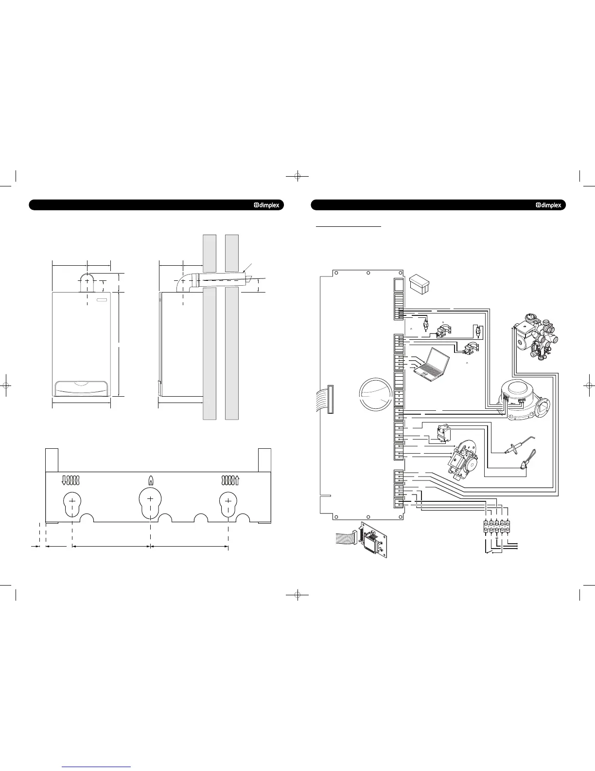
5.0 DIMENSIONS
10
© Dimplex Boilers 2008
125mm 125mm
10mm
Condensate
Drain
CH Flow
(22mm)
Gas Inlet
(22mm)
CH Return
(22mm)
Tap Rail
446mm
264mm 182mm
796mm
150mm
94mm
333mm
148mm185mm
1.5° - 3.0°
Tube Ø 100mm
Fig. 4
Fig. 5
14.0 ELECTRICAL
14.1 ILLUSTRATED WIRING DIAGRAM
© Dimplex Boilers 2008
39
br
b
g/y
bk
g
o
br
b
g/y
gr
br
b
br
b
g/y
r
L3
L2 L1N
LCD DISPLAY
RIBBON TO PCB
RIBBON TO
LCD DISPLAY
MAINS
POWER
GAS VALVES
230Vac
FAN
230Vac
RETURN TEMP
THERMISTER
(5K NTC)
BOILER
TO PC
COM PORT
FLOW TEMP
THERMISTER
(5K NTC)
BOILER PUMP
230Vac
DETECTION
ELECTRODE
IGNITION
ELECTRODE
SPARK GENERATOR
230Vac
ROOMSTAT OR LINK
X1B MAINS
X1C BOILER PUMP
X2A GAS VALVES
X3 FAN
X5 COM PORT
X6 FLOW N.T.C.
BOILER CHIP CARD BCC
X6 RETURN N.T.C.
X2B IGNITER / FLAME SENSOR
bk
bk
b
b
y
FLUE TEMP
THERMISTER
(5K NTC)
THERMAL FUSE
o
g
br
w
y
Key - Cable Colours
g Green
y Yellow
b Blue
r Red
bk Black
o Orange
g/y Green / Yellow
br Brown
gr Grey
w White
br
b
g/y
X8 FAN CONTROL
X8 FLUE
(IF FITTED)
X4 HYDROBLOCK DIVERTER
y
o b g/y r br
751262 MANUAL 19/10/10 08:41 Page 10

Other manuals for Glen Dimplex System 18

Related product manuals