EasyManua.ls Logo

golmar EL610D

golmar EL610D
60 pages
To Next Page IconTo Next Page
To Next Page IconTo Next Page
To Previous Page IconTo Previous Page
To Previous Page IconTo Previous Page
Loading...
26
INSTALLATION OF THE DOOR PANEL
NEXA MODULAR G2+ AUDIO AND VIDEO DOOR ENTRY SYSTEM - BUILDING
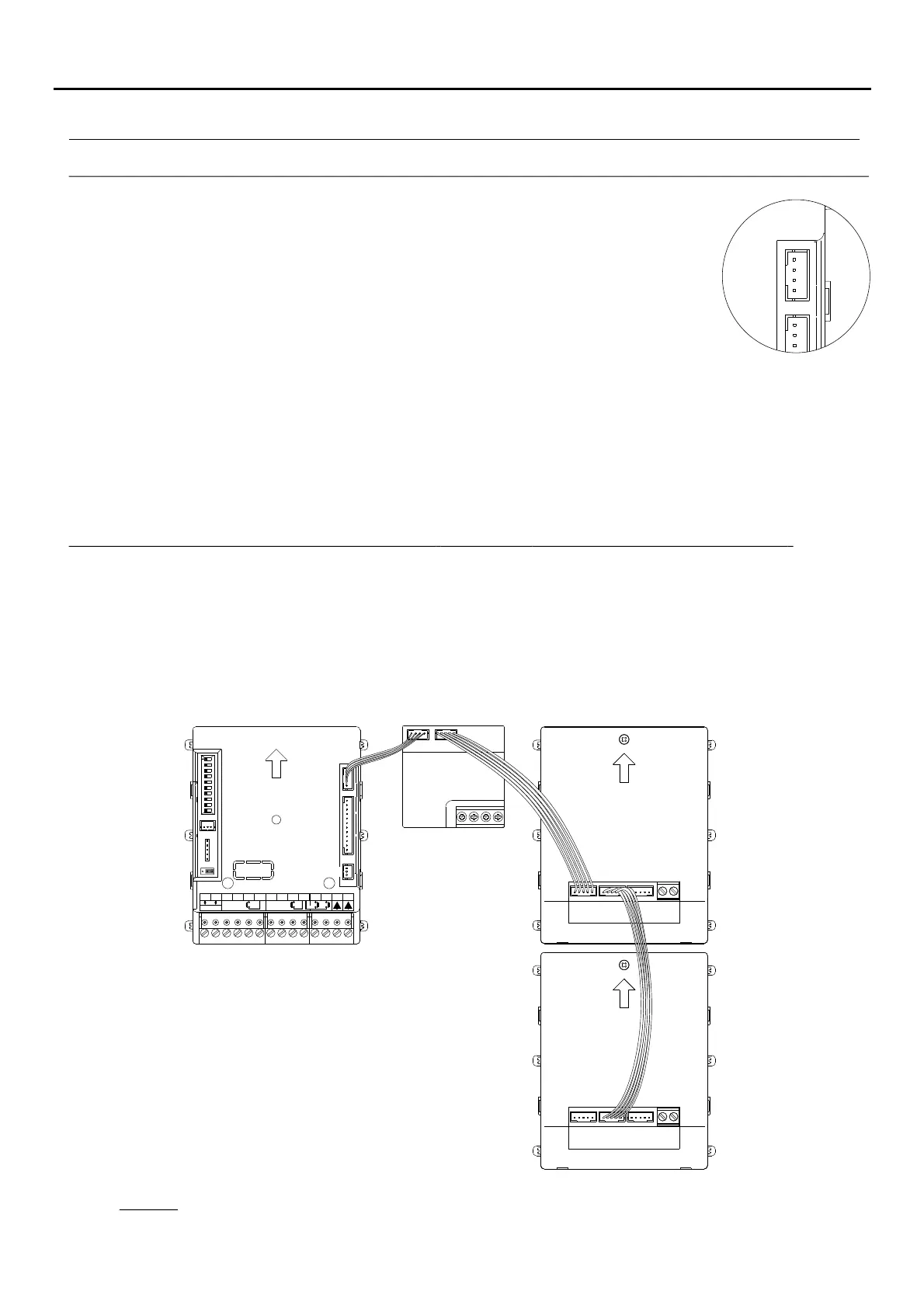
The connector to Nexa Bus through the , is located t the upper right
side of the back of the sound module.
CD-NEXA/G2+ converter
Insert the connection cable that it is supplied with the sound module and the other end of the
connection cable in the CD-NEXA/G2+ converter and from CD-NEXA/G2+ converter to connect
with the next Nexa modules:
.
ðN3403/AL: Connect to the module to add to the system with a graphic display module coded
panel.
ðN3301/AL: Connect to the module to add to the system with an access control module and
coded panel.
ðCD-NEXA/BT: Connect to the module to add to the system with a configuration RFC
interface (wireless deviceof 2,4 Ghz). Only for N3301 and N3403 modules.
ðN3301A/AL: Connect to the module to add to the system with an alphabetic module.
ðEL4502/NFC: Connect to the module to add the system with an NFC access control.
ðEL3002: Connect to power the illumination.
For more information contact with our technical support department.
Note: Up to 3 Nexa modules can be connected (without additional power supply).
Insert the connection cable that it is supplied with
CD-NEXA G2+ converter, in the sound module connector and the other end of
the connection cable in CN2 connector of the converter then insert the connection cable that is supllied withCD-NEXA G2+ ,
EL3002 illumination module in CN3 connector of the CD-NEXAG2+ converter and the other end of the connection cable in any
of the three connectors placed at the bottom of the EL3002 illumination module.
To connect to other illumination modules use any of the two free connectors.
NOTE: EL632 G2+ SE or EL642 G2+ sound module must be connected to power supply. The EL3002 illumination
module takes the power through it has been connected to the CD-NEXAG2+ converter and the sound module see above
connection drawing)
Only the
, (
.
Description of the connector to CD-NEXA/G2+ digital converter module (EL632 G2+ SE/ EL642 G2+:)
Connection with EL3002 illuminatiom modules (EL632 G2+ sound modules)SE/ EL642 G2+ :
COM
NA2
+
AP-
C1
NA1
AP+
C2
AP+ AP-
P1 P2
BUSBUS
Relé 2
Relé 1
_
12Vdc
1
2
ON
2 3 4 5 6 7 8 9 10
1 2 3
P1
P2
CN2 CN3
EL632 G2+ SE/
EL642 G2+
CD-NEXA G2+ EL3002

Table of Contents

Other manuals for golmar EL610D

Related product manuals