EasyManua.ls Logo

Goodman ARPF - Page 12

Goodman ARPF
42 pages
Print Icon
To Next Page IconTo Next Page
To Next Page IconTo Next Page
To Previous Page IconTo Previous Page
To Previous Page IconTo Previous Page
Loading...
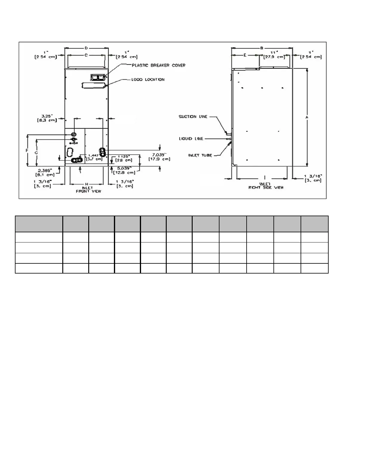
PRODUCT DIMENSIONS
12
AEPF
J
2 ȹ
[7.30 cm]
Model A B C D E F G H I J
AEPF18301/16
46 3/4" 22" 17 1/2" 19 1/2" 10' 14 1/2" 11 15/16" 17 1/8" 17 15/16" 2"
AEPF30361/16
53 1/4" 24" 20" 22" 12" 19 5/8" 11 15/16" 19 5/8" 19 15/16" 1 13/16"
AEPF31371/16
53 1/4" 24" 20" 22" 12" 19 5/8" 11 15/16" 19 5/8" 19 15/16" 1 13/16"
AEPF42601/16
53 1/4" 24" 20" 22" 12" 19 5/8" 11 15/16" 19 5/8" 19 15/16" 1 13/16"

Related product manuals