EasyManua.ls Logo

Goodman ARPF - Page 35

Goodman ARPF
42 pages
Print Icon
To Next Page IconTo Next Page
To Next Page IconTo Next Page
To Previous Page IconTo Previous Page
To Previous Page IconTo Previous Page
Loading...
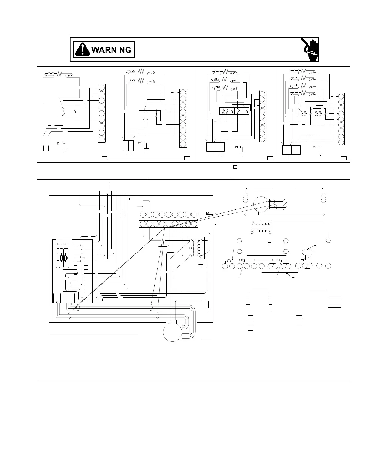
HIGH VOLTAGE!
DISCONNECT ALL POWER BEFORE SERVICING OR INSTALLING THIS
UNIT. MULTIPLE POWER SOURCES MAY BE PRESENT. FAILURE TO
DO SO MAY CAUSE PROPERTY DAMAGE, PERSONAL INJURY OR DEATH.
WIRING DIAGRAMS
35
Wiring is subject to change. Always refer to the wiring diagram on the unit for the most up-to-date wiring.
AEPF******CA
NO MARK INDICATES NO HEAT KIT INSTALLED
A
FTER INSTALLING OPTIONAL HEAT KIT, MARK A "X" IN THE PROVIDED ABOVE.
MARK ACCORDING TO NUMBER OF HEATER ELEMENT ROWS INSTALLED
BK
RD
BL
FIELD CONNECTION
* SEE NOTE 7
LOW VOLTAGE
VSTB
DS1
COPPER
(SEE RATING PLATE)
POWER SUPPLY
CONTROLS SHOWN WITH UTILITIES IN "ON" POSITION AND THERMOSTAT IN "OFF" POSITION.
PN. B1368270 REV. A
J1
BOX
THERMOST
A
TS
W2
HEATER
WH
CR
J3J2
BR
RD
BL
Y/Y2
24 VA C
Y1
O
RD
PU
HUMIDISTAT
HUM
RY1G
YL
GR
RD
BL
WH
BR
W1
THERMOSTAT
YCON
CON DEN SER
COM W2OED
W1
OUTDOOR
HEATPUMP
W/W2
R
WH
BL
OTC OT1 COT 2OE\W1
BR
BL
YL
BL
YL
YCON
TO
CONDENSER
C
PL2
312
BR
BK
PL1
PU
WH
BL
BR
RD
YL
GR
Y1C
W2
R
TO
Y/Y2
G
1
RD
23
BK
L1 L2
BK
BK
HTR 1
TL
HTR 1
RD
9
8
7
R
WH
BL
PU
TL
BK
5
6
3
4
PL 1
BK
RD
1
2
WH
RD
BK
BK
RD
BK
RD
R
HTR 2
TL
0140A00041-B
EM
2
24 VOLT
O
SEE NOTE 2
COLOR CODE
PROGRAM JUMPER
7. SEE COMPOSITE WIRING DIAGRAMS IN INSTALLATION INSTRUCTIONS FOR PROPER LOW VOLTAGE
CONNECTIONS AND DETAILS ON COMPATIBLE THERMOSTATS AND THEIR CONNECTIONS.
3. FOR OUTDOOR THERMOSTAT OPERATION OF SECOND STAGE HEAT, CUT PJ2 & ADD OT18-60 TO OTC & OT2.
2. FOR TWO STAGE ELECTRIC HEAT APPLICATIONS CUT PJ4. (USE ONLY ON 15 & 20 KW MODELS).
4. FOR SINGLE STAGE COOLING APPLICATIONS CONNECT THERMOSTAT TO Y/Y2 ONLY,
TAPE OR REMOVE Y1 CONNECTION. CONNECT CONDENSING UNIT TO YCON & C.
6. RED WIRES TO BE ON TRANSFORMER TERMINAL 3 FOR 240 VOLTS AND ON TERMINAL 2 FOR 208 VOLTS.
1. FOR
HEAT PUMP APPLICATIONS REMOVE ORANGE JUMPER WIRE BETWEEN O & Y1.
EVAPORATOR MOTOR
5. WHEN HUMIDSTAT IS PROVIDED CUT PJ6. THERMOSTAT OPENS ON HUMIDITY RISE.
NOTES:
EM
BK
RD
GR
PJ2,PJ4,PJ6
SEE NOTE 3
BLACKBK
PL
EM
YL
RD
BL
PLUG
RED
YELLOW
BLUE
WH WHITE
BL
456789
WH
RD
RD
BL
COM
3
BL
5
TR
240
2
208
1
24V
4
RD
456789
SEE NOTE 5
HUM
R
PJ6
2
OT
1
OT
PJ2
W2
OT
C
5
PL2
TR
4
PL2
2
1
PL1
2
FACTORY WIRING
WIRING CODE
FIELD WIRING
HIGH VOLTAGE
LOW VOLTAGE
HIGH VOLTAGE
LOW VOLTAGE
TERMINAL BOARD
VARIABLE SPEED TRANSFORMERVSTB TR
COMPONENT CODE
PU PURPLE
PINK
ORANGE
BROWNBR
PK
0R
GREENGR
SEE NOTE 1
NOTE DIODE
ON VSTB
*SEE NOTE 7
W1
W1
6
W2W E
PJ4
5
DIODE
IN4005
Y1
Y Y2
YCON
PL2
208/240 VOLTS
3
TO LOW VOLTAGE
TERMINAL BOARD
G
C
NOTE 4
SEE
4
PL2
1
PL2
1
PL1
BK
6
8
9
7
2
RD
PU
4
5
3
BK
BK
1
PL 1
BK
RD
YL
M1
M2
BK
RD
YL
RD
R1
M4
RD
BK
M3
HTR 3
TL
HTR 2
HTR 1
TL
TL
PU
M2
R2
YL
M1
BL
WH
BR
BL
RD
BK
RD
BK
TL
HTR 1
BK
HTR 4
HTR 3
HTR 2
BK
RD
9
7
8
2
5
6
3
4
PL 1
1
RD
M1
YL
BK
M2
BL
WH
6
BL
RD
BK
YL
8
9
7
M6
M5
M3
R1
M4
RD
PU
M7
R2
M8
BL
TL
TL
TL
YL
BL
RD
BK
RD
BL
BR
4
5
3
2
BK
PL 1
1
OT2
HUM
W1
OT1
W2
PJ2
PJ6
PJ4
SEE NOTE 8
8. DISCARD ORIGINAL "PL1" PLUG CONNECTOR WHEN INSTALLING OPTIONAL HEAT KIT.
RELAY
THERMAL LIMIT
R
HEAT ELEMENT
HTR
TL
ONE (1) ELEMENT ROWS TWO (2) ELEMENT ROWS THREE (3) ELEMENT ROWS FOUR (4) ELEMENT ROWS
O
W2
BR
OR
BR
RD
R
FL FUSE LINK
FL
M1
M2
FL
FL
M1
M2
M3
M4
FL
FL
FL
FL
FL
FL
FL
L1 L2
L1L1 L2 L2
L1 L2 L2L1
FOR HEAT
PUMPS ONLY
RD
OR
USE COPPER WIRE
EQUIPMENT GROUND
USE COPPER WIRE
EQUIPMENT GROUND
USE COPPER WIRE
EQUIPMENT GROUND

Related product manuals