EasyManua.ls Logo

Goodman ARPF - Page 37

Goodman ARPF
42 pages
Print Icon
To Next Page IconTo Next Page
To Next Page IconTo Next Page
To Previous Page IconTo Previous Page
To Previous Page IconTo Previous Page
Loading...
HIGH VOLTAGE!
DISCONNECT ALL POWER BEFORE SERVICING OR INSTALLING THIS
UNIT. MULTIPLE POWER SOURCES MAY BE PRESENT. FAILURE TO
DO SO MAY CAUSE PROPERTY DAMAGE, PERSONAL INJURY OR DEATH.
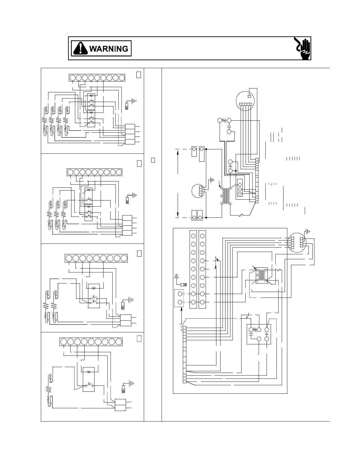
WIRING DIAGRAMS
37
Wiring is subject to change. Always refer to the wiring diagram on the unit for the most up-to-date wiring.
ASPF******BA
BK
BL
BK
L1 L2
BK
BK
HTR1
TLHTR2
RD
9
8
7
R
WH
BL
PU
TL
BK
5
6
3
4
PLM
BK
RD
1
2
WH
BK
L2L1
BK
RD
RD
RD
BK
R
HTR1 TL
L1
BK
6
8
9
7
2
RD
PU
4
5
3
BK
RD
1
PLM
BK
L2 L1 L2
RD
YL
M1
M2
BK
RD
YL
RD
R1
M4
RD
BK
M3
HTR3
TL
HTR2
HTR1
TL
TL
PU
M2
R2
YL
M1
BL
WH
BR
BL
RD
BK
RD
BK
TL
HTR1
BK
HTR4
HTR3
HTR2
BK
RD
9
7
8
L2L1 L1 L2
2
5
6
3
4
PLM
1
RD
M1
YL
BK
M2
BL
WH
6
BL
RD
BK
YL
8
9
7
M6
M5
M3
R1
M4
RD
PU
M7
R2
M8
BL
TL
TL
TL
YL
BL
RD
BK
RD
BL
BR
4
5
3
2
BK
PLM
1
ONE (1) ELEMENT ROWS TWO (2) ELEMENT ROWS THREE (3) ELEMENT ROWS
FOUR (4) ELEMENT ROWS
FL
M1
M2
FL
FL
M1
M2
M3
M4
FL
FL
FL
FL
FL
FL
FL
USE COPPER OR ALUMINUM WIRE
COPPER OR ALUMINUM
POWER SUPPLY
(SEE RATING PLATE)
USE MIN. 75°C FIELD WIRE
EQUIPMENT GROUND
BL
EM
YL
BL
5
BK
C
BK
PLF
BK
1
RD
2
3
240
24V
4
1 2
3
TR
RD
SEE
NOTE 4
BL
BR
4 5
WH
6789
PLM
GRD
1
BK
23
RD
L2
L1
4 5 678 9
0140A00037
REV B
4) Brown and white wires are used with Heat Kits only.
PLM
PLF
TR
FACTORY WIRING
FIELD WIRING
1) Red wires to be on transformer terminal "3" for 240 volts and on terminal "2" for 208 volts.
2) See composite wiring diagrams in installation instructions
for proper low voltage wiring connections.
Notes:
DELAY RELAY
RELAY
EVAPORATOR MOTOR
ELECTRONIC BLOWER TIME
TERMINAL BOARD
R
EM
EBTDR
TB
BK
RD
BL
YL
BLUE
BLACK
RED
YELLO W
COMPONENT CODE
BROWN
PURPLE
GREEN
PU
BR
GR
FEMALE PLUG CONNECTOR
MALE PLUG CONNECTOR
TRANSFORMER
HIGH VOLTAGE
LOW VOLTAGE
HIGH VOLTAGE
LOW VOLTAGE
PLF
2
COLOR CODE
TR
6
5
PLF
4
4
24V
5
SEE NOTE 1
1
2
3
EM
WIRING CODE
208/240 V OLTS
1
1
PLF
PLM
L1
PLM
2
L2
IF REPLACEMENT OF THE ORIGINAL WIRES
SUPPLIED WITH THIS ASSEMBLY IS NECESSARY,
USE WIRE THAT CONFORMS TO THE
NATIONAL ELECTRIC CODE.
SEE NOTE 1
FL FUSE LINK
TL
THERMAL LIMIT
HTR HEAT ELEMENTS
CR CONTROL RELAY
TERMINAL BLOCK SHOWN
FOR 50HZ MODELS ONLY
3) Confirm speed tap selected is appropriate for application. If speed tap needs
to be changed, connect purple wire from terminal 4 of CR relay to appropriate tap
at TB
MARK ACCORDING TO NUMBER OF HEATER ELEMENT ROWS INSTALLED. NO MARK INDICATES NO HEAT KIT INSTALLED.
KIT COMBINATION ON THIS UNIT'S S&R PLATE. AFTER INSTALLING OPTIONAL HEAT KIT, MARK AN "X" IN THE PROVIDED ABOVE.
NOTE: WHEN INSTALLING HEATER KIT, ENSURE SPEED TAP DOES NOT EXCEED MINIMUM BLOWER SPEED (MBS) SPECIFIED FOR THE AIRHANDLER/HEATER
WHITE
WH
1 3
52
4
CR
SEE NOTE 2
21 43 5
NC GL
RD
PU
BL
BR
WH
BL
RD
GR
RD
BL
RD
BK
RD
C LGN
W2R W1C G 4Y1 OY2 1DH 32 5
3 1
1
C
EM
2
4
3
5
2
4
CR
W2R W1C G 4Y1 OY2 1DH 32 5
RD
PU
BR
WH
OR
WH
WH
BL
GR
SEE
NOTE 3
RD
BL
FUSE
HOLDER
FUSE
HOLDER
5
COPPER POWER SUPPLY
(SEE RATING PLATE)
USE MIN. 75°C FIELD WIRE
EQUIPMENT GROUND
USE COPPER WIRE

Related product manuals