EasyManua.ls Logo

Goodman MH8 - Iagram

Goodman MH8
48 pages
Print Icon
To Next Page IconTo Next Page
To Next Page IconTo Next Page
To Previous Page IconTo Previous Page
To Previous Page IconTo Previous Page
Loading...
45
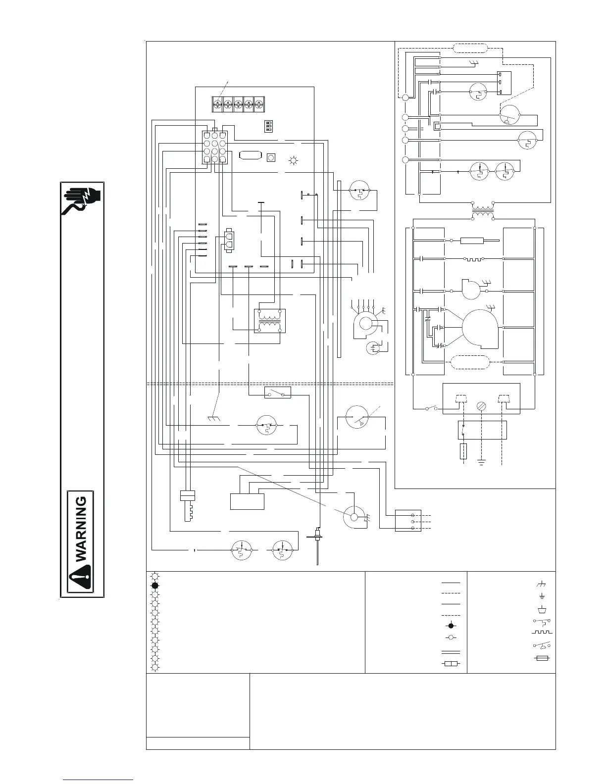
*(M,D)H8 W
IRING
D
IAGRAM
CAP
BK(HI)
AUXILIARY
PROPERLY POLARIZED AND GROUNDED.
SERVICING.WIRING TO UNIT MUST BE
WARNING:DISCONNECT POWER BEFORE
XFMR
BK
115V
24V
BR
LIMITS
WH(N)
RD(LOW)
OR(MEDLOW)
BL(MED)
BLOWER
CICULATOR
24VTHERMOSTATCONNECTIONS
RO2 (11)
LIMIT
GND (8)
HUMIDIFIER
XFMR (6)
GND
G
C
W
Y
TO
MICRO
R
MVL (2)
MVC (9)
AUXILIARY
LIMIT CONTROLS
PS (10)
PSO (4)
HLI (7)
HLO (1)
CONTROL MODULE
INTEGRATED
NO
SWITCH
PRESSURE
ID BLOWER
VALVE
M1
GAS
C2
C
AUTO RESET
PRIMARY
MANUAL RESET ROLLOUT
LIMIT CONTROL(S)
115 VAC
FLAME SENSOR
FP
XFMR-H
XFMR (3)
RO1 (5)
24 VAC
HOT SURFACE
IGNITER
INTEGRATEDCONTROLMODULE
BR
BR
COOL-H
IGN
IND
ID
BLWR
CIRCULATOR
H
E
A
T
-
H
BLWR
TRANSFORMER
40 VA
CONTROL
XFMR-N
INTEGRATEDCONTROLMODULE
CIR-N
0140F00662 REV. A
5. UNIT MUST BE PERMANENTLY GROUNDED AND CONFORM TO N.E.C. AND LOCAL CODES.
ON SOME MODELS
HUMIDIFIER
24 VAC
INDUCED DRAFT
°C. USE COPPER CONDUCTORS ONLY.
BLOWER COMPARTMENT
BURNER COMPARTMENT
REPLACED, IT MUST BE REPLACED WITH WIRING MATERIAL HAVING A TEMPERATURE
3. IF ANY OF THE ORIGINAL WIRE AS SUPPLIED WITH THE FURNACE MUST BE
CORRECT COOLING CFM. (SEE SPEC SHEET FOR AIR FLOW CHART)
REQUIREMENTS SO AS TO PROVIDE THE CORRECT HEATING TEMPERATURE RISE AND THE
4. BLOWER SPEEDS SHOULD BE ADJUSTED BY INSTALLER TO MATCH THE INSTALLATION
INTEGRATED CONTROL
INTERNAL TO
2. MANUFACTURER'S SPECIFIED REPLACEMENT PARTS MUST BE USED WHEN SERVICING.
1. SET HEAT ANTICIPATOR ON ROOM THERMOSTAT AT 0.7 AMPS.
BLOWER
PRIMARY LIMIT
WH
GR
BK
IGNITER
SURFACE
HOT
PU
RD
15 PIN PLUG
C
NO
SWITCH
PRESSURE
BR
SENSOR
FLAME
BK
W
H
ROLLOUT LIMITS
RAPID FLASHES = REVERSED 115 VAC POLARITY/VERIFY GND
SYSTEM LOCKOUT (RETRIES/RECYCLES EXCEEDED)
7 FLASHES = LOW FLAME SIGNAL
5 FLASHES = FLAME SENSE WITHOUT GAS VALVE
4 FLASHES = OPEN HIGH LIMIT
3 FLASHES = PRESSURE SWITCH STUCK OPEN
2 FLASHES = PRESSURE SWITCH STUCK CLOSED
STEADY ON = NORMAL OPERATION
OFF = CONTROL FAILURE
5
1 FLASH =
0
1
2
3
4
PU
6 FLASHES =
OPEN ROLLOUT OR OPEN FUSE
COLOR CODES:
PU PURPLE
OR ORANGE
YL YELLOW
6
7
8
BK BLACK
GR GREEN
BR BROWN
PK PINK
RD RED
GY GRAY
BL BLUE
WH WHITE
PU
RATING OF AT LEAST 105
NOTES:
OVERCURRENT PROTECTION DEVICE
JUNCTION BOX
MUST BE
WARNING:
SWITCH
WIRING TO UNIT
BEFORE SERVICING.
DISCONNECT POWER
LINE-H
DOOR
AND GROUNDED.
POLARIZED
PROPERLY
LGND
LINE-N
DISCONNECT
N
SWITCH (TEMP.)
FIELD SPLICE
SWITCH (PRESS.)
PROT. DEVICE
OVERCURRENT
EQUIPMENT GND
TERMINAL
JUNCTION
HI VOLTAGE FIELD
HI VOLTAGE (115V)
LOW VOLTAGE FIELD
LOW VOLTAGE (24V)
PLUG CONNECTION
IGNITER
FIELD GND
IND-N
IGN-N
JUNCTION
BOX
OVERCURRENT PROTECTION
POWER SUPPLY WITH
TO 115 VAC/ 1/60HZ
GND
LINE-N
LINE H
DEVICE
DOOR SWITCH
WH
BK
SWITCH LOCATED IN BLOWER
COMPARTMENT ON SOME MODELS
RD
RD
BL
PU
YL
OR
BR
(SINGLE CONTROL ON SOME MODELS)
(SINGLE CONTROL ON SOME MODELS)
DIAGNOSTI C
LED
LOHEAT-H
PA RK
SEE NOTE 6
COOL-HHIHEAT-H
978
654
12
CGRWY
5 MIN
2 STG
100 SEC
1 STG
AUTO
150 SEC
MODE
2
N
D
S
T
G
D
L
Y
H
T
O
F
F
D
L
Y
2
1
EAC-HLINE-HXFMR-H
LINENEUTRAL
FS
1110
321
CONTROL MODULE
INTEGRATED
FUSE
PM
1
HIC
23
2 STAGE
GAS VALVE
(HONEY WELL)
WH
24 VAC
HUMIDIFIER
RD
HI
MVH (12)
H
I
L
O
H
E
A
T
-
H
AIR CLEANER
ELECTRONIC
EAC-N
EAC-H
6. TO RECALL THE LAST 5 FAULTS, MOST RECENT TO LEAST RECENT, DEPRESS SWITCH
FOR MORE THAN 2 SECONDS WHILE IN STANDBY(NO THERMOSTAT INPUTS).
WH
BL
BR
WH
BL
BK
BK
YL
YL
RD
YL
YL
PU
OR
WH
WH
WH
WH
YL
BL
RD
C
8 FLASHES = CHECK IGNITER OR IMPROPER GROUND
HIGH VOLTAGE!
D
ISCONNECT
ALL
POWER
BEFORE
SERVICING
OR
INSTALLING
THIS
UNIT
.
M
ULTIPLE
POWER
SOURCES
MAY
BE
PRESENT
. F
AILURE
TO
DO
SO
MAY
CAUSE
PROPERTY
DAMAGE
,
PERSONAL
INJURY
OR
DEATH
.

Table of Contents

Related product manuals