EasyManua.ls Logo

Grasslin Talento 471 plus - Page 79

Grasslin Talento 471 plus
Print Icon
To Next Page IconTo Next Page
To Next Page IconTo Next Page
To Previous Page IconTo Previous Page
To Previous Page IconTo Previous Page
Loading...
79
E
Prog.
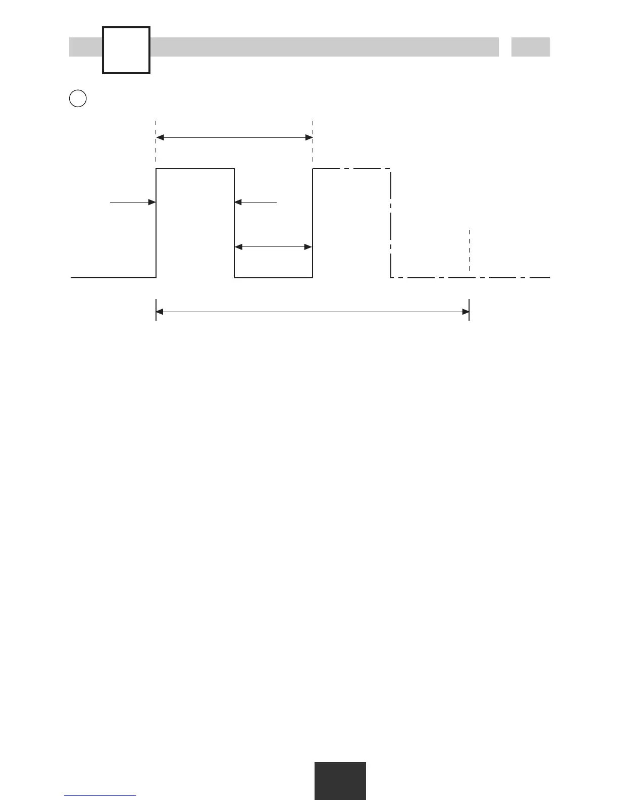
Programación de ciclos
9.00 h 17.00 h
Duración
Pausa
Duración del ciclo
Hora de inicio
Canal OFFCanal ON
Un comando de ciclo se compone de: · Hora de inicio
· Duración = Duración ON
· Período = Duración ON + pausa
· Duración del ciclo = Intervalo de tiempo entre canal ON y
canal OFF
Nota
El intervalo entre la hora de inicio y la hora de fin no puede ser inferior a la duración del período.
No se pueden programar ciclos dentro de programas de ciclo.
Ejemplos
De lunes 9:00 h a viernes 19:00 h, el equipo se conecta cada 60 minutos durante 10 minutos.
Hora de inicio lunes 9:00 h
Duración ON 10 min.
Duración del ciclo 60 min.
Hora de fin viernes 19:00 h
B
Período

Related product manuals