EasyManua.ls Logo

GRE VSG75 - Page 103

GRE VSG75
174 pages
Print Icon
To Next Page IconTo Next Page
To Next Page IconTo Next Page
To Previous Page IconTo Previous Page
To Previous Page IconTo Previous Page
Loading...
103
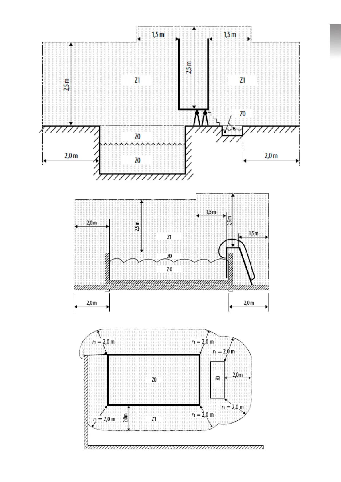
INSTALLATIEZONES:
NEDERLANDS
Gebruiksaanwijzing - ZWEMBADPOMP MET VARIABELE SNELHEID

Table of Contents

Related product manuals