EasyManua.ls Logo

GRE VSG75 - Page 119

GRE VSG75
174 pages
Print Icon
To Next Page IconTo Next Page
To Next Page IconTo Next Page
To Previous Page IconTo Previous Page
To Previous Page IconTo Previous Page
Loading...
119
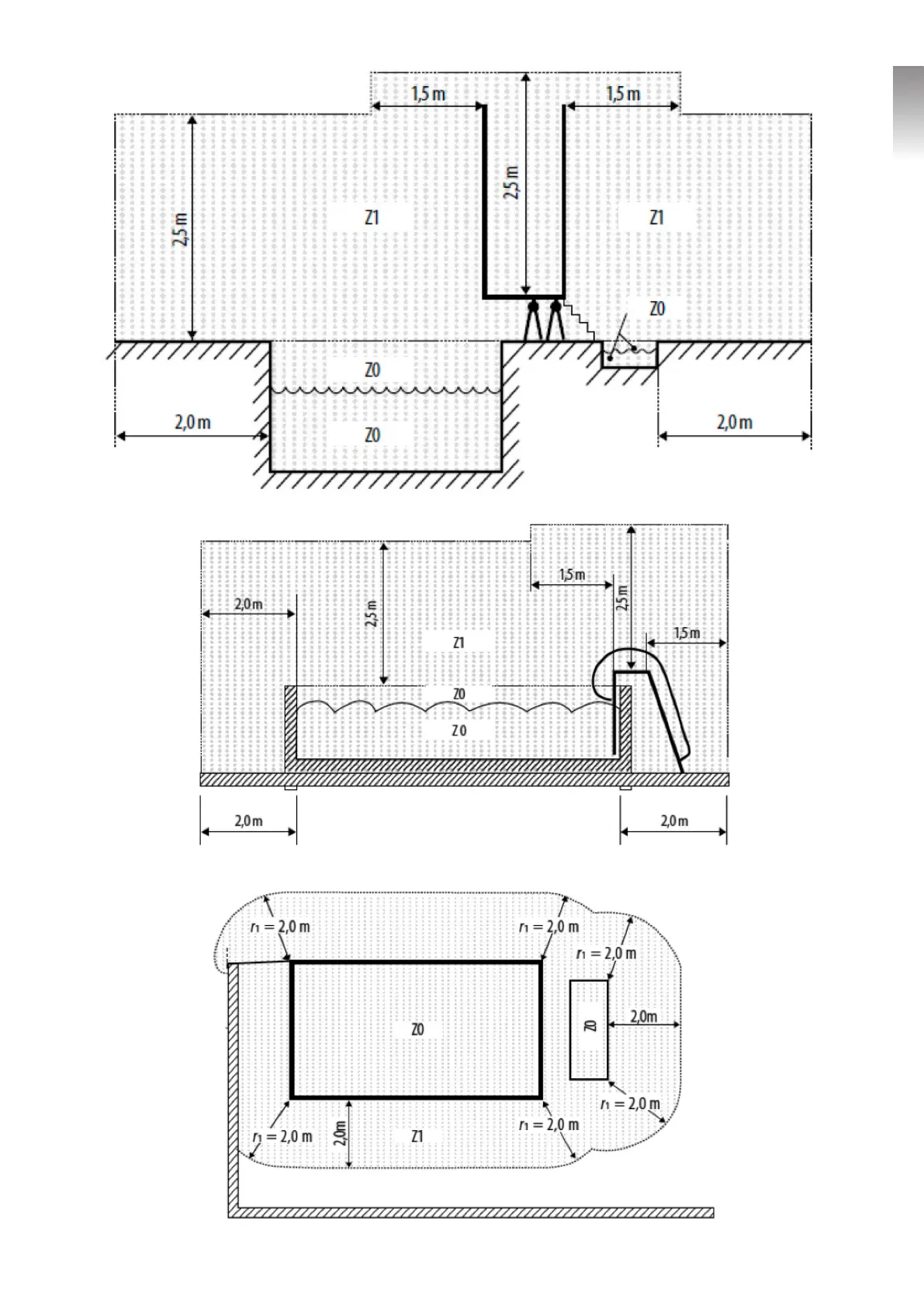
INSTALLATIONSZONER:
Bruksanvisning - POOLPUMP MED VARIABEL HASTIGHET
SVENSKA

Table of Contents

Related product manuals