EasyManua.ls Logo

GRE VSG75 - Page 71

GRE VSG75
174 pages
Print Icon
To Next Page IconTo Next Page
To Next Page IconTo Next Page
To Previous Page IconTo Previous Page
To Previous Page IconTo Previous Page
Loading...
71
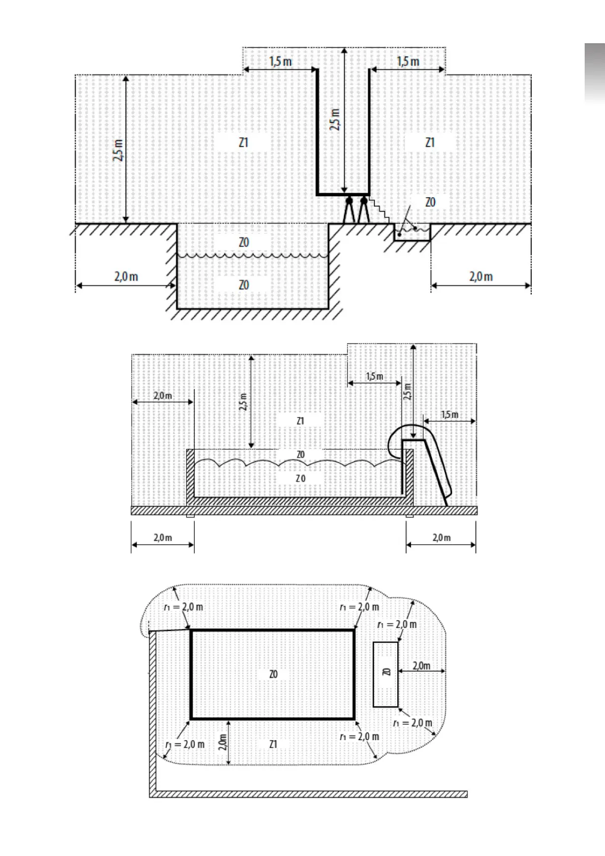
INSTALLATIONSZONEN
DEUTSCH
Betriebsanleitung - SCHWIMMBADPUMPE MIT VARIABLER DREHZAHL

Table of Contents

Related product manuals