EasyManua.ls Logo

Gree GMV-224WL/C-X

Gree GMV-224WL/C-X
173 pages
To Next Page IconTo Next Page
To Next Page IconTo Next Page
To Previous Page IconTo Previous Page
To Previous Page IconTo Previous Page
Loading...
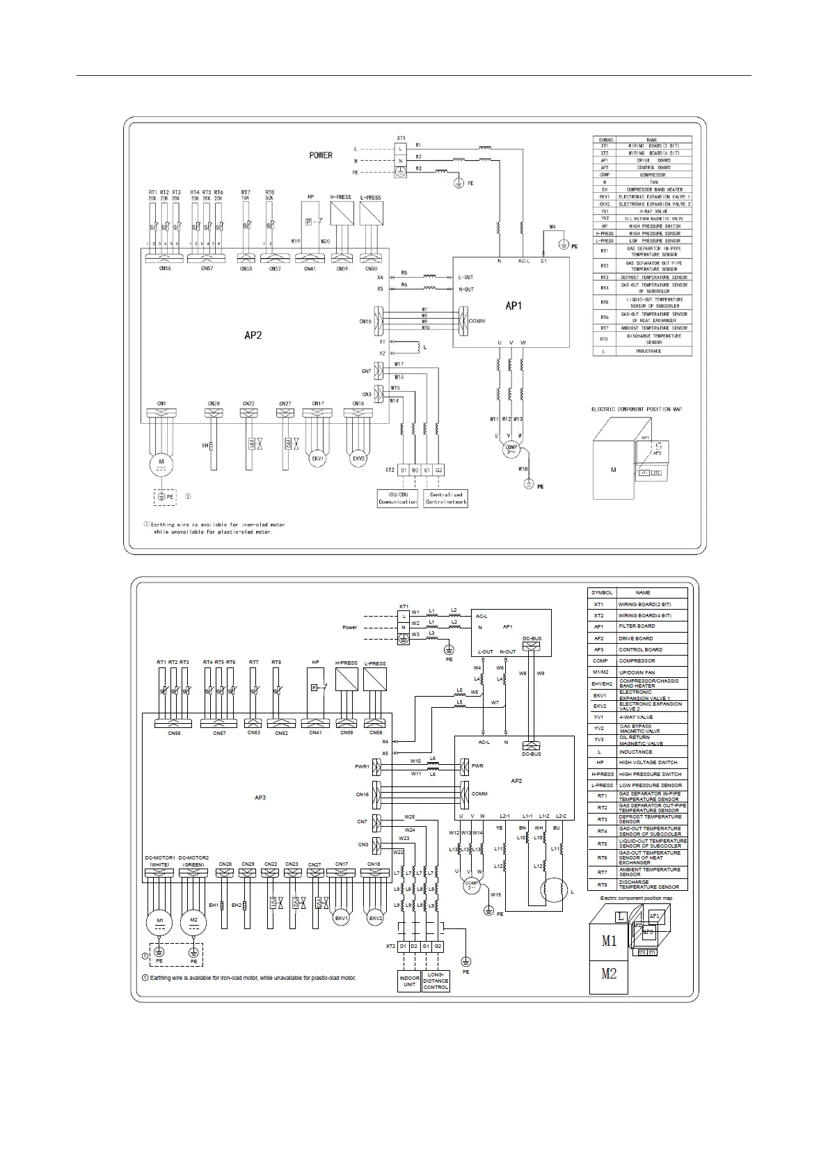
GREE DC Inverter Multi VRF System II Service Manual
100
GMV-141WL/C-T
GMV-120WL/A-T, GMV-140WL/A-T, GMV-160WL/A-T

Table of Contents

Other manuals for Gree GMV-224WL/C-X

Related product manuals