EasyManua.ls Logo

Gree GMV-H224WL/A-X

Gree GMV-H224WL/A-X
173 pages
To Next Page IconTo Next Page
To Next Page IconTo Next Page
To Previous Page IconTo Previous Page
To Previous Page IconTo Previous Page
Loading...
GREE DC Inverter Multi VRF System II Service Manual
13
GMV-224WL/C-X GMV-H224WL/A-X
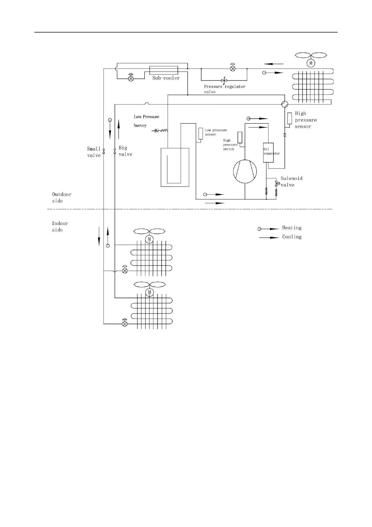
In cooling, the low-temperature and low-pressure refrigerant gas from each indoor heat exchanger
will be merged and inhaled by the compressor and then become high-temperature and high-pressure
gas, which will later be discharged into outdoor heat exchangers. By exchanging heat with outdoor air,
refrigerant will turn to liquid and flow to each indoor unit via Y-type branch or manifold. Pressure and
temperature of the refrigerant will then be lowered by throttle elements before it flows into indoor heat
exchangers. After exchanging heat with indoor air, refrigerant wil become low-temperature and
low-pressure gas again and repeat the circulation so as to realize the cooling effect. In heating, 4-way
valve will be energized to make refrigerant circulate in a reverse direction of cooling. Refrigerant will
release heat in indoor heat exchangers (electric heating elements will also work under certain
circumstance and release heat) and absorb heat in outdoor heat exchangers circularly so as to realize
the heating effect.

Table of Contents

Other manuals for Gree GMV-H224WL/A-X

Related product manuals