EasyManua.ls Logo

Gree GMV-H224WL/A-X

Gree GMV-H224WL/A-X
173 pages
To Next Page IconTo Next Page
To Next Page IconTo Next Page
To Previous Page IconTo Previous Page
To Previous Page IconTo Previous Page
Loading...
GREE DC Inverter Multi VRF System II Service Manual
67
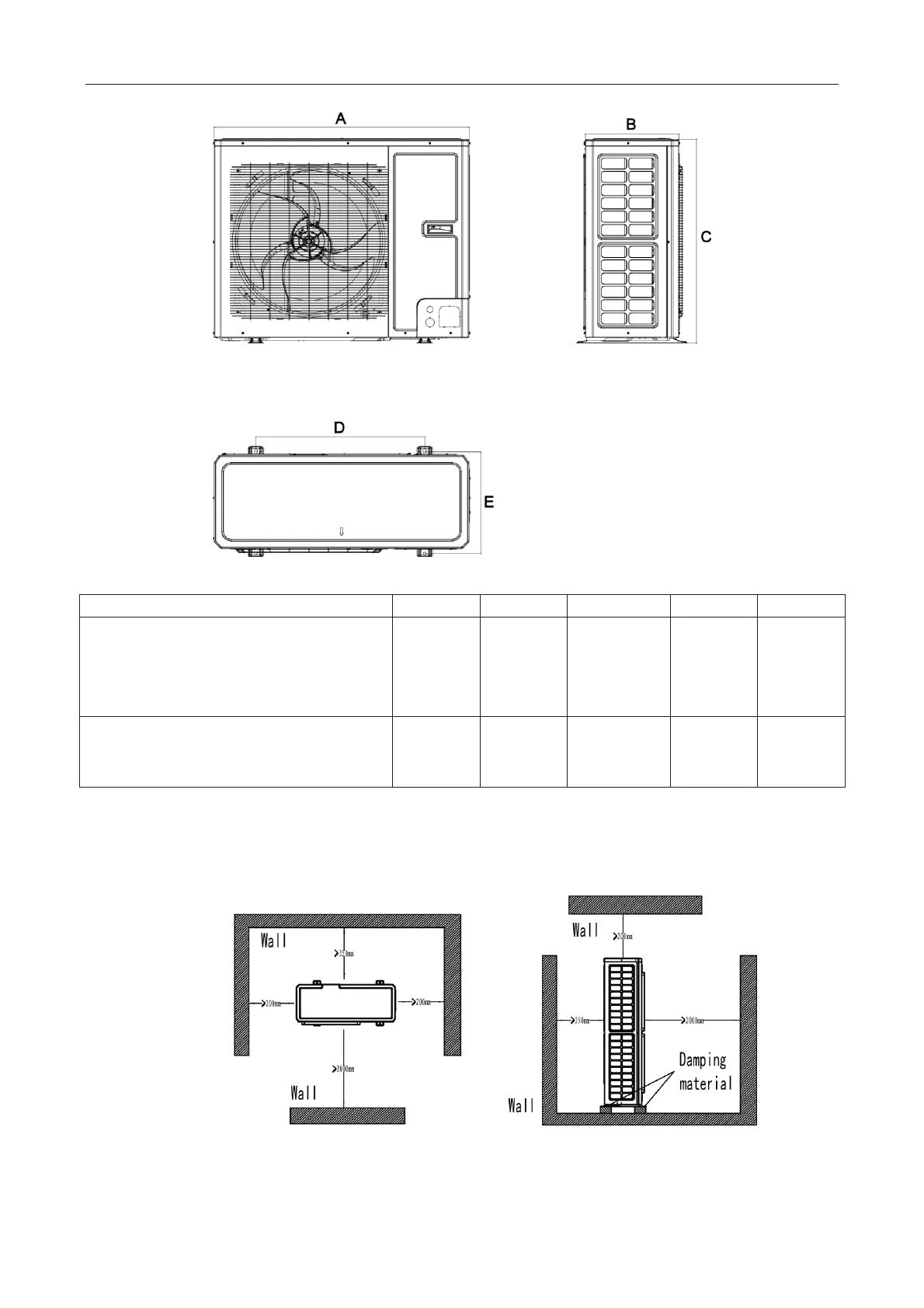
Unit: mm
Model
A
B
C
D
E
GMV-80WL/A-T
GMV-100WL/A-T
GMV-121WL/A-T
GMV-80WL/C-T
GMV-100WL/C-T
GMV-121WL/C-T
980
360
790 650
395
GMV-141WL/C-T 940
460
820 610
486
3.7 Installation space requirement
If all sides of the ODU (including the top) are surrounded by walls, process according to the following
requirements for installation space:

Table of Contents

Other manuals for Gree GMV-H224WL/A-X

Related product manuals