EasyManua.ls Logo

Gree GMV-ND160T/A-T

Gree GMV-ND160T/A-T
227 pages
To Next Page IconTo Next Page
To Next Page IconTo Next Page
To Previous Page IconTo Previous Page
To Previous Page IconTo Previous Page
Loading...
MULTI VRF- INDOOR UNIT SERVICE MANUAL EUROPEAN/LATIN AMETICA (R410A)
88
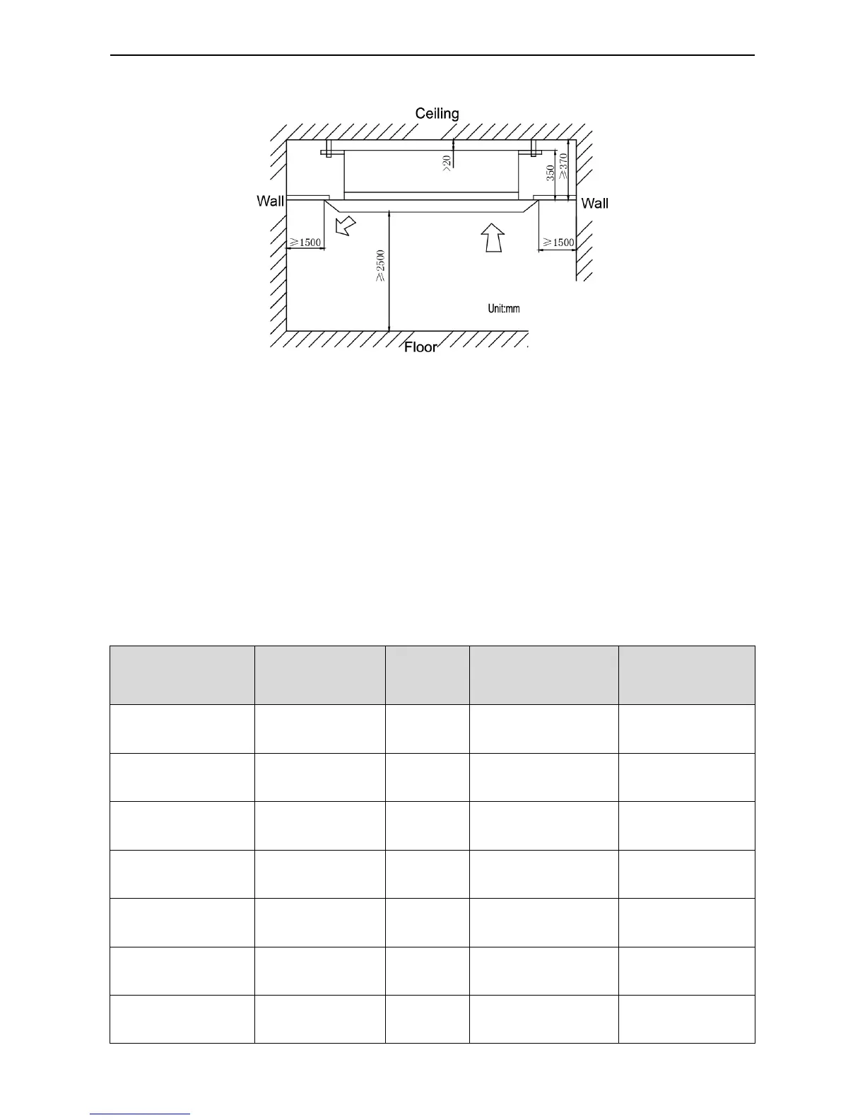
3.6.2 Installation space
3.6.3 Installation notice
The unit shall be installed by the professional personnel according to this installation instruction to
ensure proper use.
Please contact the local Gree appointed service center before installation. Any malfunctioncaused by
the unit that is not installed by the Gree appointed service center would probably not be dealt with on
time because of the inconvenience of the business contact.
It should be guided under the professional personnel when the air conditioner unit is moved to other
place.
The unit shall be installed in accordance with national standards or local regulations.
Only qualified personnel can carry out installation work, please contact with local dealer before
installation..
Make sure all the installation work completed before energizing.
3.6.4 Selection of air switch and power cord
Model
Power Cord Size
Air Switch
apacity
(A)
Minimum Sectional Area
of
Ground Wire
(mm
2
/AWG)
Minimum Sectional
Area of Power
Cord
(mm
2
/AWG)
GMV-ND28TS/A-T
220~240V/50Hz
208~230V/60Hz
6
1.0/AWG18
1.0/AWG18
GMV-ND36TS/A-T
220~240V/50Hz
208~230V/60Hz
6
1.0/AWG18
1.0/AWG18
GMV-ND45TS/A-T
220~240V/50Hz
208~230V/60Hz
6
1.0/AWG18
1.0/AWG18
GMV-ND50TS/A-T
220~240V/50Hz
208~230V/60Hz
6
1.0/AWG18
1.0/AWG18
GMV-ND56TS/A-T
220~240V/50Hz
208~230V/60Hz
6
1.0/AWG18
1.0/AWG18
GMV-ND63TS/A-T
220~240V/50Hz
208~230V/60Hz
6
1.0/AWG18
1.0/AWG18
GMV-ND71TS/A-T
220~240V/50Hz
208~230V/60Hz
6
1.0/AWG18
1.0/AWG18

Table of Contents

Other manuals for Gree GMV-ND160T/A-T

Related product manuals