EasyManua.ls Logo

Gree GRS-CQ16Pd/NhG-K - 9 Thermostat

Gree GRS-CQ16Pd/NhG-K
180 pages
To Next Page IconTo Next Page
To Next Page IconTo Next Page
To Previous Page IconTo Previous Page
To Previous Page IconTo Previous Page
Loading...
Air-to-water Heat Pump
25
MONOBLOC
TYPE
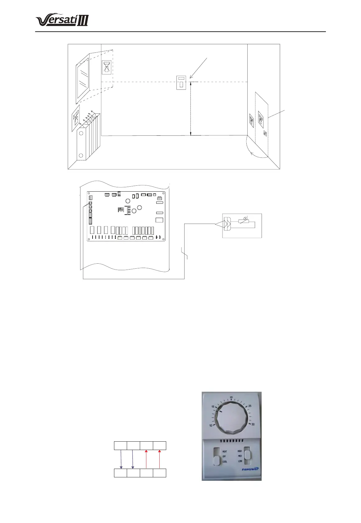
Remote Air Temperature Sensor
Doors
NO
NONO
NO
1.5 Meters
YES
AP
RT6
CN1
15K
CN8
Remote Air Environmen
Temp sensor
Electric box
PCB
2
Notes
(a) Distance between the indoor unit and the remote air temperature sensor should be less than 15m due to
length of the connection cable of remote air temperature sensor;
(b) Height from oor is approximately 1.5m;
(c) Remote air temperature sensor cannot be located where the area may be hidden when door is open;
(d) Remote air temperature sensor cannot be located where external thermal inuence may be applied;
(e) Remote air temperature sensor should be installed where space heating is mainly applied;
(f) After the remote air temperature sensor is installed, it should be set to “With” through the wired controller so
as to set the remote air temperature to the control point.
9. Thermostat
Installation of the thermostat is very similar to that of the remote air temperature sensor.
23 24 25 26
1 2 3 4
XT4
HEAT
COOL
N
L(220VAC)
Versati III
Thermostat

Table of Contents

Other manuals for Gree GRS-CQ16Pd/NhG-K

Related product manuals