EasyManua.ls Logo

Gree GWH12KF-D3DNA6A

Gree GWH12KF-D3DNA6A
78 pages
To Next Page IconTo Next Page
To Next Page IconTo Next Page
To Previous Page IconTo Previous Page
To Previous Page IconTo Previous Page
Loading...
88
4
1
2
3
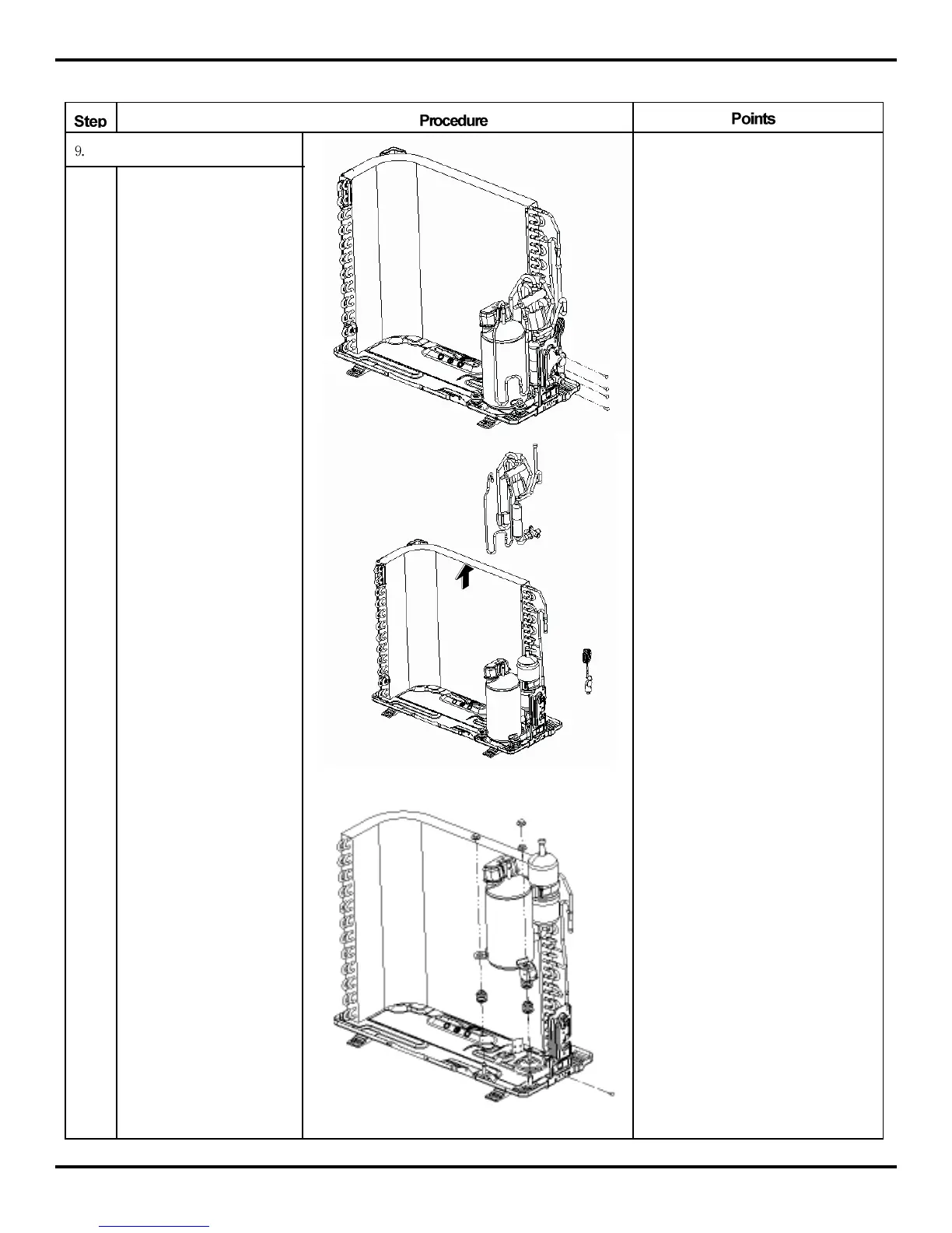
Removal Procedure
Solder off the welding spot of
capillary and valve and outlet
pipe of condenser.
Remove the 2 screws fixing the
gas valve. Solder off the weld
spot connecting gas valve and
air return pipe and remove the
gas valve.
(Note: it is necessary to warp
the gas valve when soldering
off the welding spot.)
Remove the 2 screws fixing
liquid valve. Solder off the
welding spot connecting liquid
valve and remove the liquid valve.
Solder off the pipe connected
with the compressor.
Remove compressor
Remove the 3 footing
screws of the compressor
and remove the
com
p
ressor.

Related product manuals