EasyManua.ls Logo

Gree JKFD15QSR/Na-M

Gree JKFD15QSR/Na-M
142 pages
To Next Page IconTo Next Page
To Next Page IconTo Next Page
To Previous Page IconTo Previous Page
To Previous Page IconTo Previous Page
Loading...
GREE Air-ccoled Closed Control Unit Service Manual
106
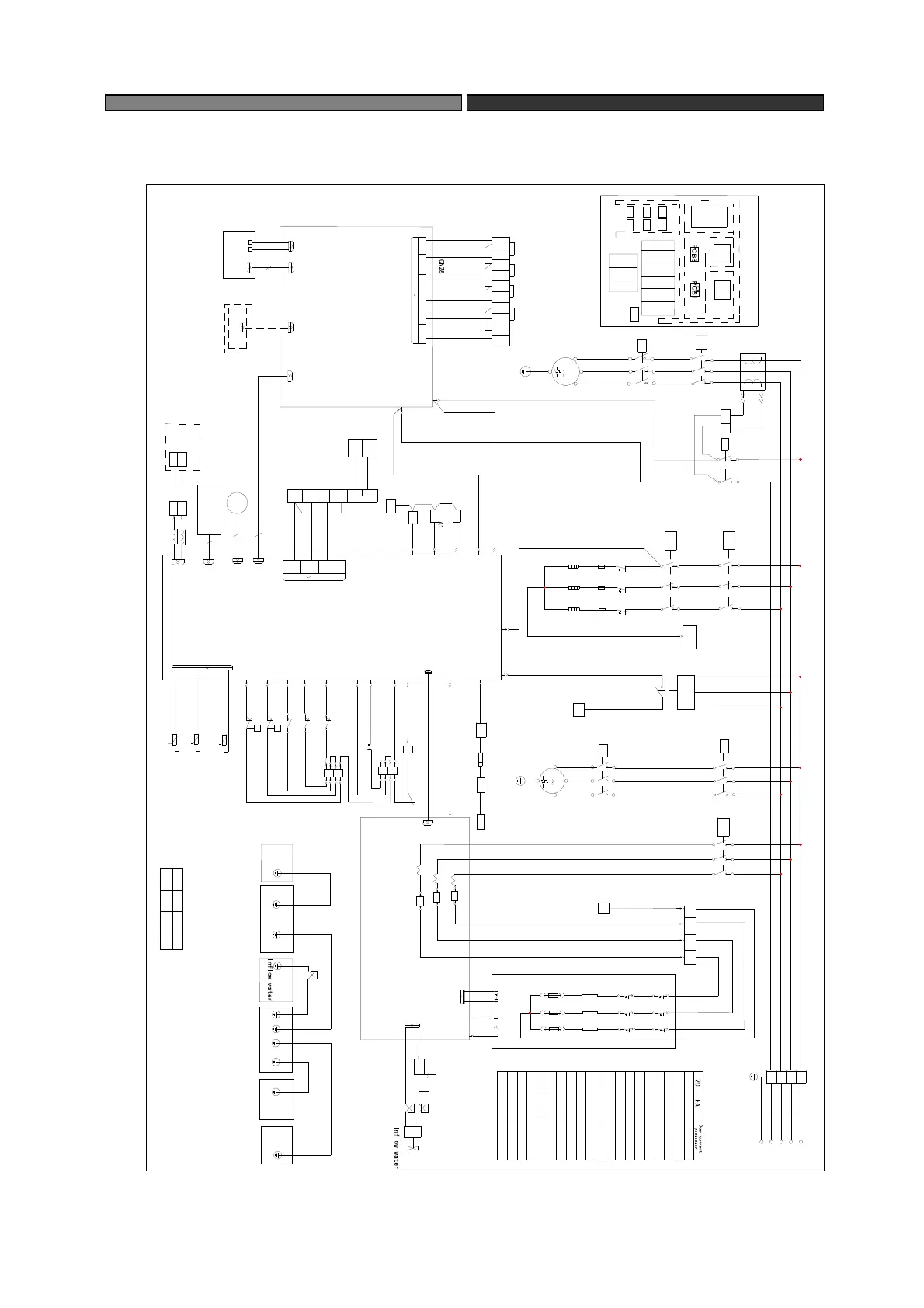
4.2.2 Indoor Unit JKFD7XXX(I)
1
2
LP
P
M
3
PHASE
W15
PM
W14W13
L1
W35
W36
PM
2
XT3
COMP
3
G
G
G
EKV1
FY
5
FA
CN17
W80
W81
W82
W85
XT5
2
N(1)
COM
SENSOR
S2
VIN
GND
NC
GN
W55
W102
W100
W99
W97
W96
W16
W17
W18
SW-FILTER
(L1)
KM1
KM2
KM3
W49
W47
W48
B
FA
A
W7
W6
PCB2
OVC-FAN1
HPP1
EH1
KM1
ST
+12V
1
2
SAT11
XT3
W93
COMP1
E
53
6
1
2
4
5
1 3
AC-L
N
A1
W50
XT1
L3
L2
L1
N
L3
L2
L1
W54
W10
W12
W11
HEAT1
FAN1
W51
A2
A2
W52
G
N
A2
W53
A1
W3
W1
W2
POWER
OVC-COMP1
2
1
HEATING
XT4
3
XT5
L2 L3
64
2
15
18
(L2)(L3)
θ
2
1
PF
FA
1
2
W98
W101
1
3
W103
P-WIND
LPP1
1
2
HP
P
2
1
3
4
5
6
KM2
FUT
FUT
FUT
SAT3
SAT2
5
6
4
31
2
SAT1
KM3
SAT10
FUT1
SAT7
SAT4
L1
CN64
COM-AW
N
N
LMT1
W19
W20
W21
W61
W62
PCB3
W58
YV1
W59
V-Awin
W60
CN14
GND
+12
WATER
HEAT-TIE1
W84
W83
AC-L
N
YE
W118W117
W116
W115
W114
W113
W112
W111
4
3
21+12
FIRE
XT6
10
98
7
6
5
432
1
W123
W124
W122
W121 W120
W119
CN36
COM-INNER
COM-INNER
2
+
RS485
-
24V
CN27
COM-MANUAL
2
PCB1
XT1
N
XT2
HEAT1_ CK
TA3
TA2
TA1
W46
W90
W91
W73
W74
SWP-1
SWP-2
W75
W76
W77
W92
2
1
3
4
6
QF2
5
3
5
1
QF1
2
4
6
2
1
3
4
6
QF3
5
W4
X1
X2
EHC1
XT2
W8
W23
W24
W25
W32
W34
W33
W37
W38
W39
W41
W42
W43
W321
W63
CN18
4
θ
θ
600007000834
QF5
N(1)
2
XT2
W110
W5
W9
W26
W27
W28
W29
1
3
2
4
T1
N(1)
2
N(1)
XT7
N(1)
XT7
2
K1
K2
K3
2
1
3
4
6
5
QF4
W64
W70
W67
W-IN
W-OUT
V-IN V-OUT
U-IN
U-OUT
W87
W88
XT2
N(1)
W107
721
722
W312 W313
W314
W315
W316
W317
W318
W319
W320
W125
W126
T1
T2
T3
FUT2
SAT8
SAT5
L2
T2
W65
W71
W68
FUT3
SAT9
SAT6
L3
T3
W66
W72
W69
W106
X3
779
780
XT1
N
L1
L2
L3
N
XT9
W108
W128
W129
W130
W131
PCB2
XT1
PM
XT2
XT7
XT5
XT6
KM1
KM2
KM3
XT3XT4
QF5
QF4 QF3
QF2
QF1
EH2
W94
CN12
RS+
RS-
RS+
RS-
XT2
XT8
L
W132
W133
L
XT8
RD
RDRD
RD
RD
RD
RD
RD
RD
RD
RD
RD
RD
RD
RD
RD
RD
RD
RD
RD
RD
RD
RD
RD
RD
RD
RD
RD
RD
RD
RD
RD
RD
RD
RD
RD
RD
BK
BK
BK
BK
BK
BK
BK
BK
BK
BK
BK
BK
BK
BK
BK
BK
BK
BK
BK
BK
RD
BU
BU
BU
BU
BU
BU
BU
BU
BU
BU
BU
BU
BU
BU
BU
BU
BK
WH
WH
WH
WH
WH
WH
WH
WH
WH
WH
WH
WH
WH
WH
WH
WH
WH
WH
WH
WH
WH
WH
WH
WH
WH
WH
WH
WH
WH
WH
WH
WH
WH
WH
WH
BU
BU
BK
RD
BN
BN
BN
BN
BN
BN
JSQ
HUMIDIFIER
Waterlevel
switch
OG
TOUCH SCREEN
monitor
Remote
WATERLOGGING
SWITCH
HUMIDITY AND
RETURN AIR
TEMP SENSOR
valve
YEGN
YEGN
YEGN
YEGN
YEGN
YEGN
YEGN
YE
INDOOR UNIT
FAN
RT1
EXHAUST TEMP SENSOR
RT2
EVAPORATOR OUTLET TEMP
SENSOR
RT3
EVAPORATOR INLET TEMP
SENSOR
OUTDOOR
UNIT
Light
Humidifier's electric box
Humidifier
Electric
valve
board
box
Electric door
Heating
Comp
Heat
ing
Indoor
Fan
Humid
ifier
Main
board
ELECTRIC CONTROL BOARD
Indoor
Fan
Heat
ing
Comp
FAN PROTECT
SWITCH
TEMP LIMITER
ELECTRONIC
EXPANSION VALVE 1
S2
SAT
FUT
EKV
QF
PF
1
2
3
4
7
8
9
10
11
12
13
14
RT
HP
LP
YV
XT
EH
KM
COMP
5
NO.
15
16
FY
EHC1
17
6
18
19
L
TA(n)
Current
NAME.MODEL
CODE NAME
Compressor
Breaker
AC contactor
Terminal board
Valve
FAN air pressure
Filter air
Compressor
heating belt
expansion valve
High pressure
switch
Low pressure
switch
Electronic
TEMP limiter
TEMP sensor
Heat fuse
Waterlogging
switch
switch
pressure switch
Magnetic ring
transformer
heating
Electronic
REMARK:
1.
OFF
ONON
ON
4
3
2
1
3.
2. Humidifier electrical boxes,wiring board(XT9),is located in the
Facing the direction of touch screen as the front of the whole machine.
The dial requirements of phase sequence protector:
humidifier to the lower right of the side.
PM
Phase protector

Table of Contents

Related product manuals