EasyManua.ls Logo

Gree JKFD15QSR/Na-M

Gree JKFD15QSR/Na-M
142 pages
To Next Page IconTo Next Page
To Next Page IconTo Next Page
To Previous Page IconTo Previous Page
To Previous Page IconTo Previous Page
Loading...
GREE Air-ccoled Closed Control Unit Service Manual
105
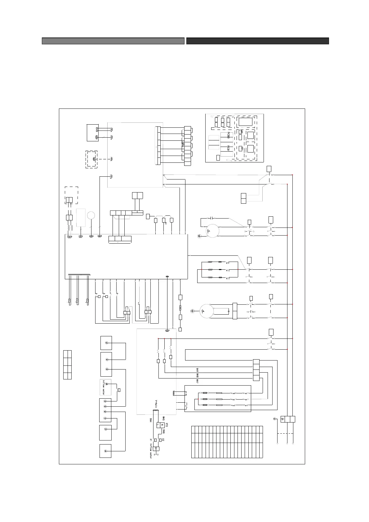
4.2 Circuit Diagram (The circuit diagram is for reference only and the circuit diagram on the unit is
the standard.
)
4.2.1 Indoor Unit JKFD5XXX(I)
1
2
LP
P
PHASE
G
EKV1
FY
5
FA
CN17
RT2
W70
W71
W72
W75
XT5
2
N(1)
COM
SENSOR
S2
VIN
GND
NC
W67
W95
W93
W91
W89
W88
W7 W8
SW-FILTER
KM1
KM2
KM3
W51
PCB2
OVC-FAN1
HPP1
EH1
KM1
+12V
1
2
SAT11
XT3
W85
COMP1
53
6
1
2
4
AC-L
N
A1
W62
L
N
L
W66
W5
W6
HEAT1
FAN1
W63
A2
A2
W64
N
A2
W65
A1
RT1
W1
POWER
OVC-COMP1
2
1
XT4
REMARK:
1.
OFF
ONON
ON
4
3
2
1
θ
2
1
PF
W92
1
3
W94
P-WIND
LPP1
1
2
HP
P
2
1
3
4
5
6
KM2
FUT
FUT
FUT
SAT3
SAT2
5
6
4
3
1
2
SAT1
JSQ
SAT10
SAT7
SAT4
L1
Light
CN64
COM-AW
N
N
LMT1
W9
W10
W27
W28
PCB3
CN14
GND
+12
WATER
HEAT-TIE1
W74
W73
AC-L N
OG
W106W105
W104
W103
W102
W101
W100
W99
4
3
21+12
FIRE
XT6
10
98
7
6
5
432
1
W111
W112
W110
W109 W108
W107
CN36
COM-INNER
COM-INNER
2
+
RS485
-
24V
CN27
COM-MANUAL
2
PCB1
PCB2
XT1
XT2
XT7
XT5
XT6
KM1
KM2
KM3
HEAT1_ CK
TA3
TA2
TA1
W50
W82
W83
W39
W40
SWP-1
SWP-2
W42
W43
W84
S2
SAT
FUT
EKV
QF
PF
1
2
3
4
7
8
9
10
11
12
13
14
RT
HP
LP
YV
XT
EH
KM
COMP
5
NO.
15
2
1
3
4
6
QF2
5
3
5
1
QF1
2
4
6
2
1
3
4
QF3
W2
EHC1
XT2
W17
W18
W19
W21
W22
W23
W26
W29
CN18
4
θ
θ
RT3
QF5
Electric
Electric door
Heating
W120
W13 W14
W60
W61
1
3
2
4
T1
N
16
FY
XT7
N(1)
XT7
2
K1
K2
K3
2
1
3
4
6
5
QF4
W30
W36
W-IN
W-OUT
V-IN V-OUT
U-IN
U-OUT
W80
W81
XT2
N
W118
EHC1
17
721
722
W312
W313
W314
W315
W316
W317
W318
W319
W320
W114 W115
SAT8
SAT5
L2
T2
W31
W37
SAT9
SAT6
L3
T3
W32
W38
XT3XT4
QF5
QF4 QF3 QF2 QF1
Indoor
3.
CN12
OUTDOOR
RS+
RS-
G
XT1
G
M1
C2
1
2
FAN
1
KM3
4
6
2
3
5
2
N(1)
XT2
W57
W58
COMP
E
R
C
S
2
1
C1
G
W86
L
N
XT2
W3
W4
W15
W16
W20
W24
W25
W52
W54
W55
600007000831
6
C
FUT1
FUT2
FUT3
W33
W34
W35
W321
X3
W119
779
780
N
L3
L2
L1
XT9
W41
Humidifier's electric box
W121
2. Humidifier electrical boxes,wiring board(XT9),is located in the
RS+
RS-
XT2
XT8
L
EH2
W87
18
19
L
TA(n)
Current
XT8
W122
W123
L
RD
RD
WH
RD
WH
WH
RD
RD
RD
YEGN
RD
WH
WH
RD
RD
WH
RD
RD
RD
RD
WH
WH
WH
WH
WH
WH
WH
WH
WH
WH
WH
WH
WH
WH
WH
WH
WH
WH
WH
WH
WH
WH
WH
WH
WH
WH
WH
WH WH WH
WH
WH
WH
WH
WH
WH
WH
WH
WH
RD
RD
RD
RD
RD
RD
RD
RD
RD
RD
RD
RD
RD
RD
RD
RD
RD
RD
RD
RD
RD
RD
RD
RD
RD
RD
RD
RD
BK
BK
BK
BK
BK
BK BK
BK
BU
BK
BU
BU
BU
BU
BU
BK
BK
BK
BK
BU
YEGN
YEGN
YEGN
YEGN
YEGN
YEGN
BN
BN
BN
BN
BN
BN
BN
YE
TOUCH SCREEN
monitor
Remote
HUMIDITY AND
RETURN AIR
TEMP SENSOR
UNIT
WATERLOGGING
SWITCH
ELECTRONIC
EXPANSION VALVE 1
EXHAUST TEMP SENSOR
EVAPORATOR OUTLET TEMP
SENSOR
EVAPORATOR INLET TEMP
SENSOR
Facing the direction of touch screen as the front of the whole machine.
The dial requirements of phase sequence protector:
INDOOR UNIT
ELECTRIC CONTROL BOARD
Fan
Comp
Humid
ifier
Indoor
Fan
Main
board
Heat
ing
Heat
ing
Comp
HUMIDIFIER
Humidifier
NAME.MODEL
CODE NAME
Compressor
Breaker
AC contactor
Terminal board
Valve
FAN air pressure
Filter air
Compressor
heating belt
expansion valve
High pressure
switch
Low pressure
switch
Electronic
TEMP limiter
TEMP sensor
Heat fuse
Waterlogging
switch
Capacitance
switch
pressure switch
Magnetic ring
Waterlevel
switch
valve
valve
board
box
humidifier to the lower right of the side.
transformer
heating
Electronic

Table of Contents

Related product manuals