EasyManua.ls Logo

Gree JKFD5QSR/Na-E - Page 27

Gree JKFD5QSR/Na-E
142 pages
Print Icon
To Next Page IconTo Next Page
To Next Page IconTo Next Page
To Previous Page IconTo Previous Page
To Previous Page IconTo Previous Page
Loading...
GREE Air-ccoled Closed Control Unit Service Manual
24
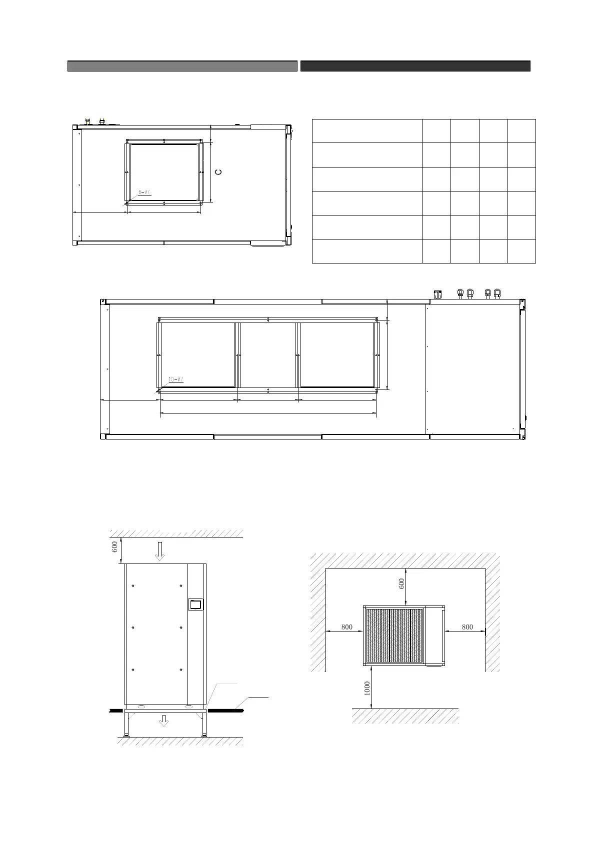
The Flange Size of Air Outlet on Top of the unit
Model A B C D
JKFD5QSR/Na-E(I) 246 318 286 131
JKFD7QSR/Na-M(I) 246 288 276 152
JKFD15QSR/Na-M(I) 306 368 363 140
JKFD20QSR/Na-M(I) 260 461 405 108
JKFD25QS2/Na-M(I) 384 459 403 117
361451 451
1263
347
125398
JKFD40QS2/Na-M(I)
Top Air Intake and Bottom Air Discharge
Ground
Bracket
Dischange Air
Return Air
Ceiling
Wall Face
Facade
>
6
0
0
Separator
>
8
0
0
>
6
0
0
>
8
0
0
>
1
0
0
0
Wall Face
Wall Face
Wall Face
B
A
D
正面

Table of Contents

Related product manuals